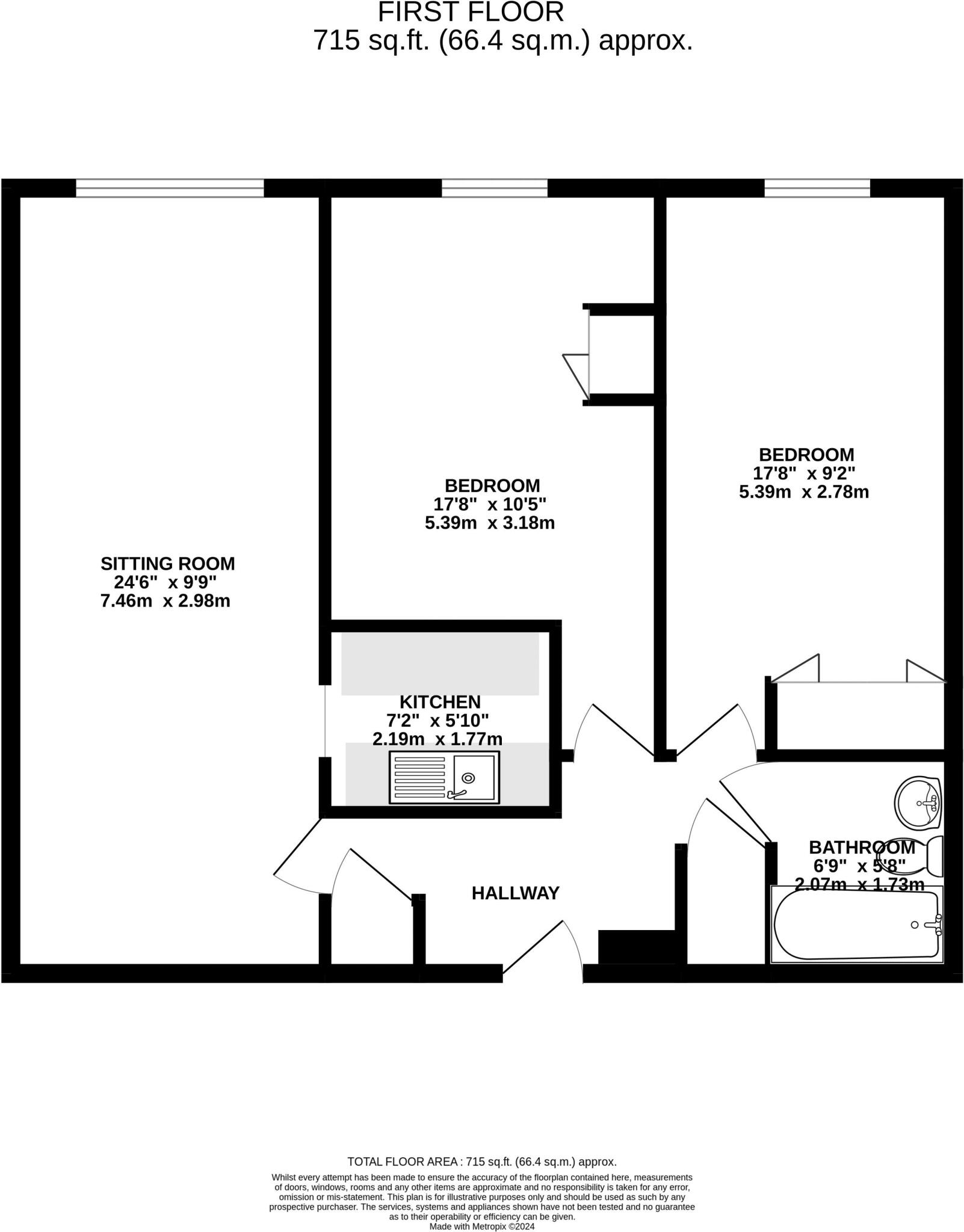
**Standout Features:**
- Spacious 2-bedroom first-floor retirement apartment
- Located in a popular area close to the city center and Quay
- Stunning communal gardens
- Off-road parking available
- Leasehold tenure
- Fast broadband and excellent mobile signal
**Potential Concerns:**
- Bathroom requires modernization (1980s vintage style)
- Above-average crime rate in local area
- Electric storage heaters may need updating
This inviting two-bedroom retirement apartment on Alphington Street offers a comfortable living space for those over 60, coupled with accessibility to vibrant local amenities. With generous room sizes and an abundance of natural light, the apartment features a spacious lounge, a practical kitchen, and two double bedrooms, perfect for relaxation or hosting guests. The delightful communal gardens provide a serene setting for outdoor enjoyment, while off-road parking ensures convenience.
Situated near the bustling city center, you’ll have quick access to shopping at nearby stores and leisure facilities, fostering a lively community spirit. However, potential buyers should note that the bathroom could benefit from modernization for a more contemporary feel. Overall, this property, with its promising proximity to essential amenities and a cozy atmosphere, represents an excellent opportunity for retirement living. Act quickly—properties like this, in such a vibrant area, are in high demand!
2 bedroom flat for sale in Home Clyst House, Williams Avenue, Exeter, EX2 — £80,000 • 2 bed • 1 bath • 737 ft²
1 bedroom flat for sale in Cowick Street, St.Thomas, EX4 — £135,000 • 1 bed • 1 bath • 492 ft²
2 bedroom apartment for sale in Homeclyst House, Alphington Street, EX2 — £80,000 • 2 bed • 1 bath • 608 ft²
1 bedroom flat for sale in Flat , Homeclyst House, Alphington Street, Exeter, EX2 — £60,000 • 1 bed • 1 bath • 452 ft²
2 bedroom apartment for sale in Alphington Street, Exeter, Devon, EX2 — £75,000 • 2 bed • 1 bath • 476 ft²
1 bedroom retirement property for sale in Pennsylvania Road, Pennsylvania, Exeter, EX4 — £60,000 • 1 bed • 1 bath • 439 ft²


























