SG15 6TB - 3 bed extended semi detached home in High Street, SG15 6TB

View on Property Piper

3 bedroom semi-detached house for sale in High Street, Arlesey, SG15

Summary - 180 HIGH STREET ARLESEY SG15 6TB

3 bed 1 bath Semi-Detached

Renovated three-bed with large garden and direct rail to London in 38 minutes.
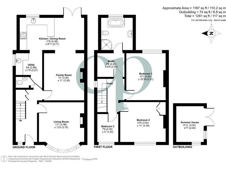
- Double-storey extension opened to a bright kitchen/diner (2018)
- New combi boiler, radiators and full re-wire completed 2018
- Spacious approx. 150ft rear garden with summer house (electrics/plumbing)
- Two reception rooms, both with log burners
- One family bathroom (four-piece suite); only a single bathroom upstairs
- Driveway parking with gated side access; front garden small
- Average room sizes typical of post-war semi-detached homes
- Excellent commuter link: Arlesey station ~38 mins to London St Pancras
This tastefully updated three-bedroom semi-detached house combines practical family living with commuter convenience. A 2018 double-storey extension created a bright kitchen/diner and a flowing ground-floor layout that includes two reception rooms with log burners, a utility room and a downstairs WC. The property was comprehensively improved in 2018 — rewiring, new combi boiler and radiators, and a new four-piece bathroom with Jacuzzi bath and separate shower.

Set on a large plot with an approximately 150ft rear garden and a summer house (electrics and plumbing added), the home suits families who value outdoor space and flexible rooms for a home office or playroom. Off-street parking is provided by a driveway with gated side access and scope to park multiple cars. Arlesey mainline station is nearby, with fast services to London St Pancras in around 38 minutes — a strong benefit for commuters.

Practical points to note: the house offers one family bathroom only and room proportions are average rather than generous. The front garden is small and the property retains a traditional post‑war layout; while recently renovated, older elements (original glazing install dates unknown) remain. Overall this is a well-updated, comfortable family home with generous garden potential and strong commuter links.

Property Details

Brochure Descriptions

Image Descriptions

Floorplan Description

Rooms

Textual Property Features

Target Audience

AI Tags

Detected Visual Features

EPC Details

Nearby Schools

Nearest Bars And Restaurants

,,,,}

Nearest General Shops

,,}

Nearest Grocery shops

,,}

Nearest Supermarkets

,,}

Nearest Religious buildings

,,}

Nearest Medical buildings

,,,}

Nearest Airports

,}

Nearest Leisure Facilities

,,,,}

Nearest Tourist attractions

,,}

Nearest Train stations

,,,,}

Nearest Bus stations and stops

,,,,}

Nearest Hotels

,,}

Tags

Local Market Stats

Similar Properties

Meta

High Res Images

Compatible Images

Low res Images

Thumbnails

Raw Images

High Res Floorplan Images

Compatible Floorplan Images

Low res Floorplan Images

FloorplanImages Thumbnail

Raw Floorplan Images