Bright kitchen-diner, large south-east garden and parking for two.
Five double bedrooms across three floors, versatile family layout
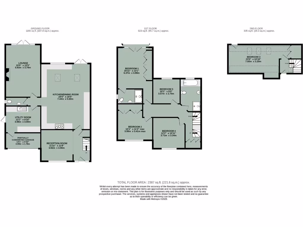
This well-presented five-bedroom semi-detached home is arranged over three floors and suits a growing family seeking space and village life. The heart of the house is the 24ft kitchen/dining room with Velux windows, underfloor heating and direct garden access — a bright, flexible space for daily life and entertaining.
Upstairs offers four double bedrooms (one with en-suite and Juliet balcony) and a large top-floor bedroom with Velux windows and fitted storage. The lounge with a log burner and the additional reception room provide separate living zones for children and adults. Practical ground-floor features include a utility, cloakroom and a partially converted garage with power and lighting.
Outside, the large L-shaped rear garden faces south-east, is mainly lawned with a patio and side access — ideal for play and summer gatherings. The shared driveway provides off-street parking for two cars. Village conveniences are close by, including the primary school within a two-minute walk, bus links and local pubs.
Notable points to consider: the house dates from the 1950s–60s and has cavity walls assumed without insulation, which may benefit from upgrading. The garage is only partially converted and the main fuel is electricity, with heating provided by an air-source heat pump and underfloor systems — energy-efficient but different to traditional gas heating.
5 bedroom house for sale in Newbury Hill View, Stadhampton, OX44 — £550,000 • 5 bed • 2 bath • 1565 ft²
5 bedroom detached house for sale in The Laurels, Stadhampton, OX44 — £800,000 • 5 bed • 3 bath • 1922 ft²
4 bedroom detached house for sale in Newells Close, Stadhampton, OX44 — £625,000 • 4 bed • 2 bath • 1553 ft²
4 bedroom detached house for sale in Bloomfields, Chinnor Road, Towersey, Thame, Oxfordshire, OX9 — £1,000,000 • 4 bed • 3 bath • 2019 ft²
3 bedroom semi-detached house for sale in Ford Lane, Drayton St Leonard, OX10 — £580,000 • 3 bed • 2 bath • 1268 ft²
4 bedroom detached house for sale in Cratlands Close, Stadhampton, OX44 — £685,000 • 4 bed • 2 bath • 1691 ft²


































































































