**Standout Features:**
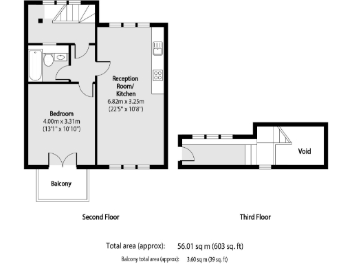
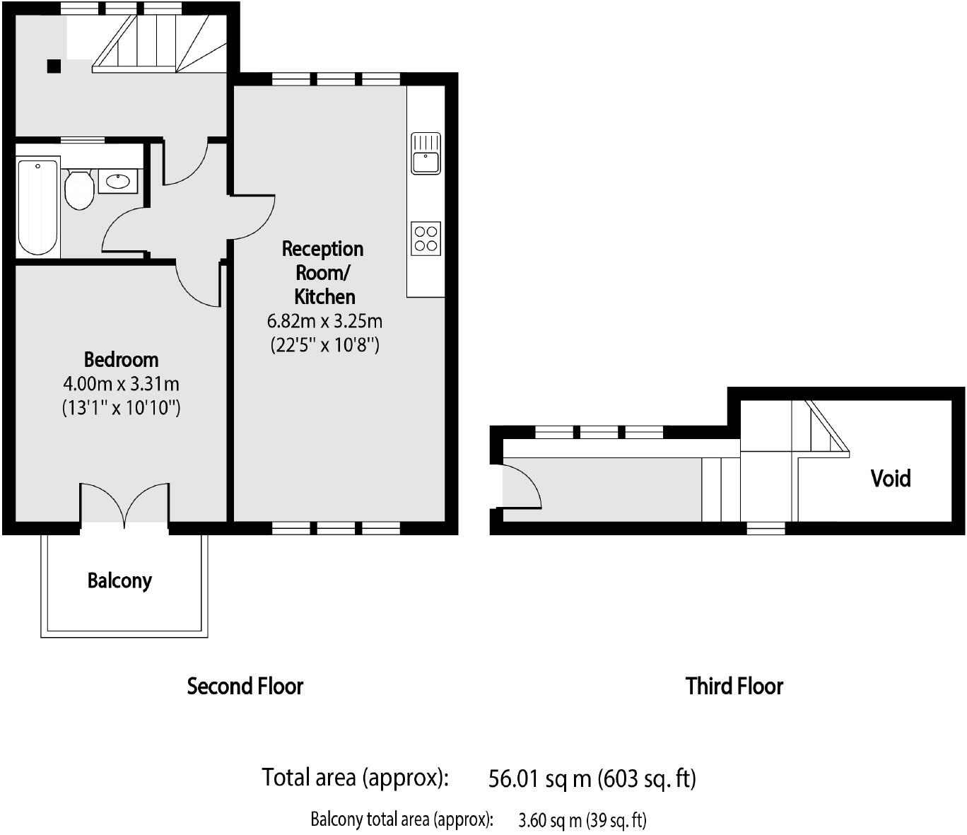
- Cozy one-bedroom, top-floor flat with spacious 603 sq. ft. layout
- Open-plan living area with modern kitchen and laminate flooring
- Private balcony for outdoor relaxation
- Allocated off-street parking
- Chain-free sale for quick transaction
- Excellent transport links, close to Neasden station (Jubilee Line)
**Notable Concerns:**
- Leasehold with 116 years remaining
- Average service charge of £1,773 and ground rent of £400
- Broadband speeds categorized as slow
This charming one-bedroom flat on Neasden Lane presents an ideal opportunity for first-time buyers or those seeking a cozy urban retreat. Featuring an open-plan living area that seamlessly integrates the contemporary kitchen, this space is designed for modern living. Enjoy relaxation on your private balcony or take advantage of the allocated parking—an asset in a bustling area.
Located in proximity to a variety of local amenities, including schools rated 'Good' by Ofsted, this property is not only convenient but also family-friendly. With the Neasden station just a short walk away, the connectivity to Central London is a significant draw for commuters. While broadband speeds may be slow, the surrounding neighborhood offers a vibrant urban lifestyle alongside tranquility. This chain-free property is ready for you to move in and start creating cherished memories. Act quickly—homes like this in Neasden don’t stay on the market for long!
1 bedroom flat for sale in Crispian Close, Neasden Lane, London, NW10 — £265,000 • 1 bed • 1 bath • 484 ft²
1 bedroom flat for sale in Ebony Court. Neasden, NW10 — £295,000 • 1 bed • 1 bath • 562 ft²
2 bedroom flat for sale in Neasden Lane, London, NW10 — £385,000 • 2 bed • 1 bath • 646 ft²
2 bedroom flat for sale in Neasden Lane, Neasden, NW10 — £350,000 • 2 bed • 1 bath • 588 ft²
2 bedroom flat for sale in Leeland Way, London, NW10 — £399,950 • 2 bed • 2 bath • 617 ft²
2 bedroom flat for sale in Neasden Lane, London, NW10 — £375,000 • 2 bed • 1 bath • 660 ft²


























