Spacious, gated riverside home with allocated underground parking and concierge.
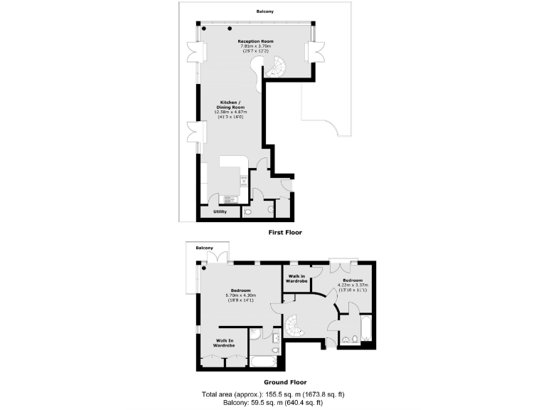
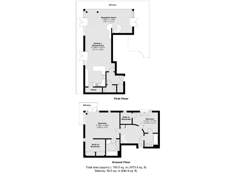
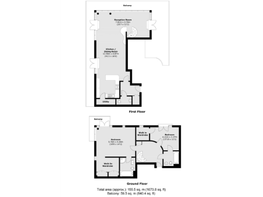
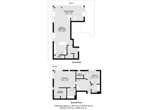
Exceptional 1,673 sq ft split-level penthouse
Set on the award-winning Island at Brentford Lock, this split-level penthouse occupies an exceptionally large 1,673 sq ft footprint with panoramic river and marina views. The gated development includes allocated underground parking/garage, concierge, lift access and secure entry — a rare combination for a riverside home close to local shops and Brentford station.
Internally the apartment offers two double bedrooms, two bathrooms and expansive open-plan living with a large balcony off the reception/dining area. High-spec touches include a modern kitchen, underfloor heating and double glazing. The layout’s generous proportions and dual balconies make this a comfortable family home or a high-appeal investment unit for long-term rental.
Practical matters: the property is leasehold with 957 years remaining and an annual ground rent of £400. Council tax sits in Band G and is described as quite expensive. The split-level arrangement involves internal stairs and may not suit restricted mobility. The immediate area is an inner-city, cosmopolitan mix with good transport links but pockets of local deprivation nearby — buyers should view the location to confirm it meets their needs.
2 bedroom apartment for sale in Point Wharf Lane, Brentford, TW8 — £650,000 • 2 bed • 2 bath • 1121 ft²
3 bedroom flat for sale in Barnes Quarter,
Tallow Road, TW8 — £1,750,000 • 3 bed • 4 bath • 2018 ft²
3 bedroom apartment for sale in Dorey House, High Street, Brentford Lock, TW8 — £600,000 • 3 bed • 3 bath • 973 ft²
3 bedroom penthouse for sale in Halyard Court, Durham Wharf Drive, Brentford, TW8 — £825,000 • 3 bed • 2 bath • 1193 ft²
3 bedroom apartment for sale in High Street, Brentford, Middlesex, TW8 — £950,000 • 3 bed • 3 bath • 1419 ft²
3 bedroom flat for sale in Ferry Lane, Brentford, TW8 — £900,000 • 3 bed • 2 bath • 1701 ft²


































































