YO22 4LH - 5 bedroom character property for sale in Old Blacksmith Arm…

View on Property Piper

5 bedroom character property for sale in Old Blacksmith Arms + Two 1 Bed Cottages, High Hawsker, Whitby, YO22 4LH, YO22

Summary - Anvil Cottage, High Hawsker YO22 4LH

5 bed 1 bath Character Property

---
**Standout Features:**
- Spacious 5-bedroom family house
- Two modern 1-bedroom cottages ideal for holiday letting or permanent rental
- Planning permission granted for two additional semi-detached houses
- Large garden with greenhouse and allotment area
- Ample off-street parking and garage/storage facilities
- Prime location just 3 miles from Whitby, close to the beautiful Heritage Coast

**Positive Aspects:**
Discover an exciting lifestyle opportunity with this charming character property, previously a beloved B&B, nestled in High Hawsker. This mid-terraced home retains rich features, including deep stone walls and beamed ceilings, offering a unique blend of historic charm and modern comforts. The spacious interior encompasses three inviting reception rooms, a well-appointed kitchen with utility room, and five generous bedrooms, catering perfectly for family living.

Additionally, the two adjoining one-bedroom cottages provide excellent income potential, as they can be operated as holiday rentals or rented long-term, benefitting from updated planning permissions.

**Potential Downsides:**
While the property offers abundant outdoor space, potential buyers should be aware of the need for maintained upkeep and the unique character features that may require additional care.

**Investment Potential:**
With planning permission already in place for new semi-detached dwellings, this property not only serves as a lovely family home but also holds remarkable investment prospects. The extensive garden and outbuildings add to the versatility of this substantial property, making it a rare find in this picturesque village.

The serene rural setting, combined with close proximity to Whitby and local amenities, positions this property as a perfect choice for families seeking comfort, security, and an exceptional lifestyle change. Don't miss this fantastic opportunity to secure a unique property that offers a blend of living space and rental income—schedule your viewing today before it's gone!
---

Property Details

Brochure Descriptions

Image Descriptions

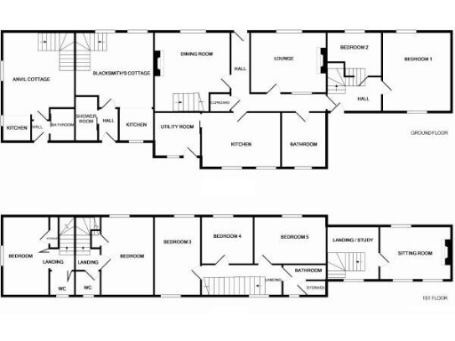
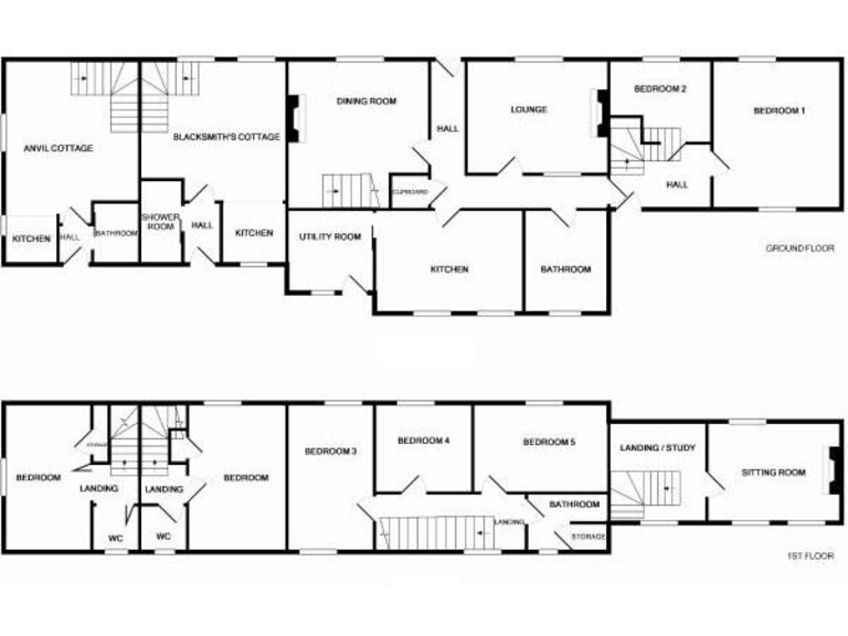
Floorplan Description

Rooms

Textual Property Features

Detected Visual Features

EPC Details

Nearby Schools

Nearest Bars And Restaurants

,,,,}

Nearest General Shops

,,}

Nearest Grocery shops

,,}

Nearest Supermarkets

,,}

Nearest Religious buildings

,,}

Nearest Medical buildings

,,,}

Nearest Leisure Facilities

,,,,}

Nearest Tourist attractions

,,}

Nearest Train stations

,,,,}

Nearest Bus stations and stops

,,,,}

Nearest Hotels

,,}

Tags

Local Market Stats

AirBnB Data

Similar Properties

Meta

High Res Images

Compatible Images

Low res Images

Thumbnails

Raw Images

High Res Floorplan Images

Compatible Floorplan Images

Low res Floorplan Images

FloorplanImages Thumbnail

Raw Floorplan Images