DG11 1SS - 6 bedroom detached house for sale in Lockerbie, Dumfries an…

View on Property Piper

6 bedroom detached house for sale in Lockerbie, Dumfries and Galloway, DG11

Summary - WEST BECKTON, JOHNSFIELD DG11 1SS

6 bed 3 bath Detached

Large single‑storey home with stables, huge plot and approved development permissions.
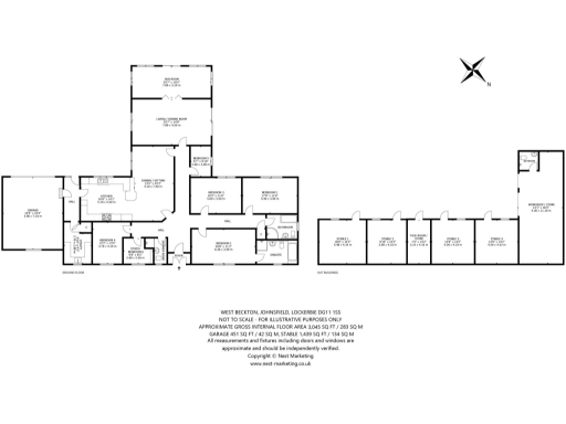
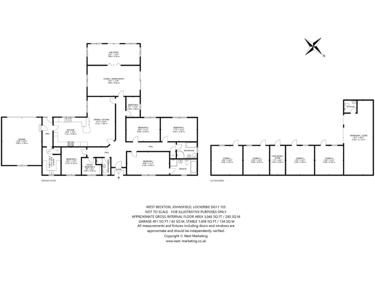
6 bedrooms and multiple reception rooms across one level (approx. 3,045 sq ft)
About 1.52 acres total; huge plot with paddocks and fenced fields
Equestrian facilities: stables, workshop, mains water and electricity
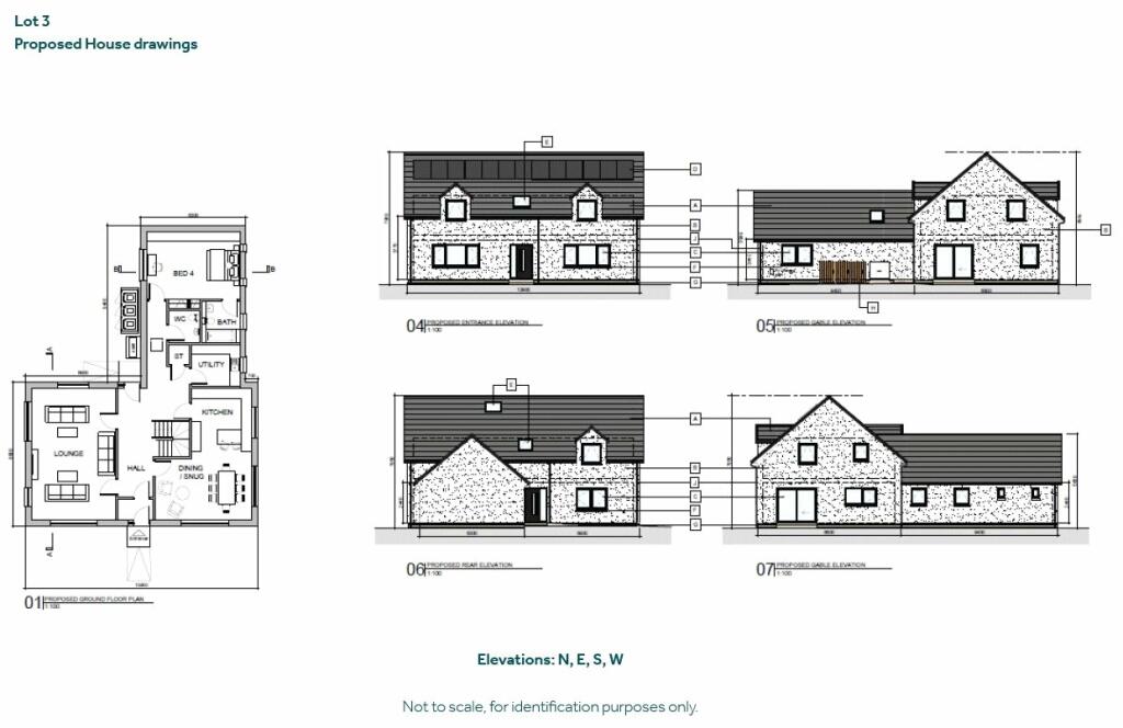
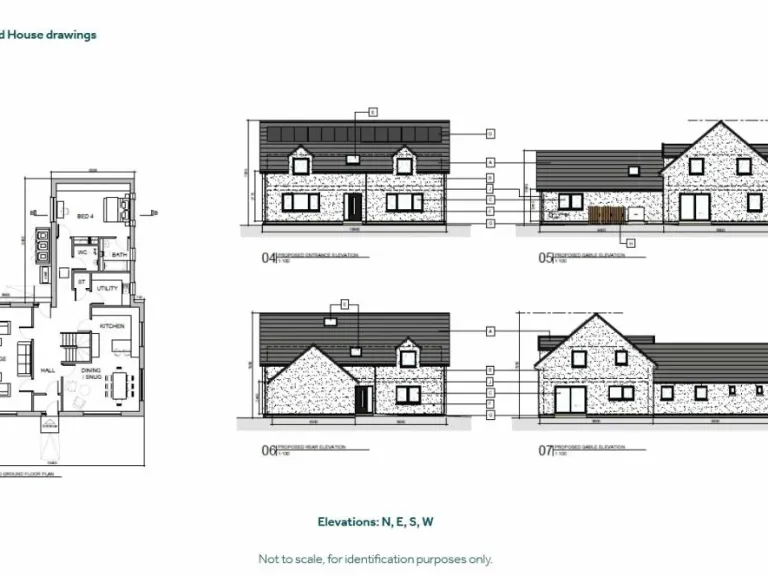
Planning permission: Lot 2 (3‑bed) and Lot 3 (4‑bed) already approved
Private driveway, large forecourt and double garage for extensive parking
EPC Band D and Council Tax Band G — higher running and tax costs
Remote, very deprived local area; limited nearby services and schools
Available as whole or in separate lots — development/investment potential
Set in the peaceful countryside near Lockerbie, West Beckton is a substantial single‑storey home arranged across about 1.52 acres. The bungalow offers generous living space (approx. 3,045 sq ft) with six bedrooms, multiple reception rooms, a sunroom, utility room and a large double garage — suitable for a family wanting ground‑floor living or buyers seeking an equestrian base. Mains water and electricity serve the stables and outbuildings, and the long driveway with forecourt provides extensive parking.

A major value driver is the site’s flexibility: the property can be sold as a whole or split into three lots. Lot 2 (stables and workshop) has planning permission for a three‑bed house and Lot 3 (paddock) has permission for a four‑bed house, offering development potential or an opportunity to downsize while retaining income or land. Broadband and mobile signals are strong and there is convenient access to the M74 for regional travel.

Be clear about the trade‑offs: the home sits in a remote, very deprived area which may affect resale timelines and local services. The energy rating is EPC D and council tax is Band G, so running costs are likely above average. The property is presented as a modern bungalow with equestrian facilities but its rural location means day‑to‑day amenities and schools are not nearby and buyers should inspect services and access in person.

Overall this is a rare rural parcel combining a spacious single‑storey family home, extensive grounds and separate development plots. It will suit buyers who value privacy, equestrian use or the potential to create additional homes on site, while willing to accept the higher tax band and the realities of a remote location.

Property Details

Brochure Descriptions

Image Descriptions

Floorplan Description

Rooms

Textual Property Features

Target Audience

AI Tags

Detected Visual Features

Nearest Bars And Restaurants

,,,,}

Nearest General Shops

,,}

Nearest Grocery shops

,,}

Nearest Supermarkets

,,}

Nearest Religious buildings

,,}

Nearest Medical buildings

,,,}

Nearest Leisure Facilities

,,,,}

Nearest Tourist attractions

,,}

Nearest Train stations

,,,,}

Nearest Bus stations and stops

,,,,}

Nearest Hotels

,,}

Tags

Local Market Stats

Similar Properties

Meta

High Res Images

Compatible Images

Low res Images

Thumbnails

Raw Images

High Res Floorplan Images

Compatible Floorplan Images

Low res Floorplan Images

FloorplanImages Thumbnail

Raw Floorplan Images