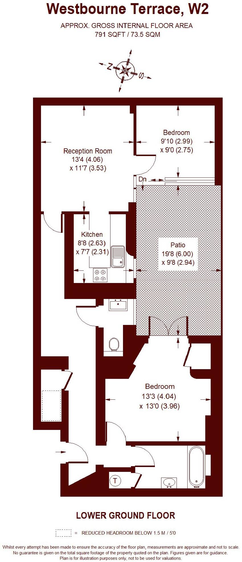
Moments from Hyde Park, newly renovated two-bedroom with substantial outdoor space and long lease.
- Two double bedrooms, both with direct garden access
- Generous private garden rare for central London
- Newly renovated kitchen and bathroom with Smeg appliances
- Excellent lateral space and period high ceilings in reception
- 791 sq ft; 172 years remaining on lease
- Above-average service charge £5,600 pa; ground rent £150 pa
- Timber-frame walls likely uninsulated; consider thermal upgrades
- Local crime levels recorded as high; check security arrangements
A spacious two-bedroom garden apartment set within a handsome stucco-fronted Victorian terrace, just steps from Hyde Park. The flat benefits from excellent lateral space and period details such as high ceilings and large windows in the principal reception/dining area, while a separate recently renovated kitchen includes Smeg appliances. Two double bedrooms both open directly onto a generous private garden, creating rare outdoor space for central London.
The property has been newly renovated throughout, including a refurbished bathroom and a separate WC, and presents as move-in ready. With 791 sq ft and 172 years remaining on the lease, the home suits buyers seeking central location, good school catchment options and strong transport links via Paddington and Lancaster Gate.
Buyers should note material costs of ownership: an above-average annual service charge of £5,600 and a small ground rent of £150. The building’s construction pre-dates 1900 and walls are timber-frame with no recorded insulation, which may mean future upgrade work to improve thermal efficiency. Heating runs off an electric boiler and radiators, which can be more expensive to run than gas alternatives.
The area is affluent and cosmopolitan with excellent mobile reception and many local amenities, but local crime levels are recorded as high—an important consideration for buyers prioritising security. Broadband speeds are average. Overall this is a characterful, centrally located home with private outdoor space and long lease length, best suited to families or buyers wanting a central base with garden access.
2 bedroom flat for sale in Craven Hill, Hyde Park, W2 — £775,000 • 2 bed • 1 bath • 654 ft²
2 bedroom flat for sale in Westbourne Terrace, London, W2 — £700,000 • 2 bed • 1 bath • 710 ft²
3 bedroom flat for sale in Lancaster Gate, Bayswater, London, W2 — £1,750,000 • 3 bed • 3 bath • 1670 ft²
2 bedroom flat for sale in Westbourne Terrace, London, W2 — £850,000 • 2 bed • 2 bath • 1160 ft²
2 bedroom flat for sale in Westbourne Terrace, London, W2 — £1,150,000 • 2 bed • 2 bath • 1102 ft²
2 bedroom flat for sale in Hyde Park Gardens,
Hyde Park, W2 — £895,000 • 2 bed • 2 bath • 807 ft²






































