**Standout Features:**
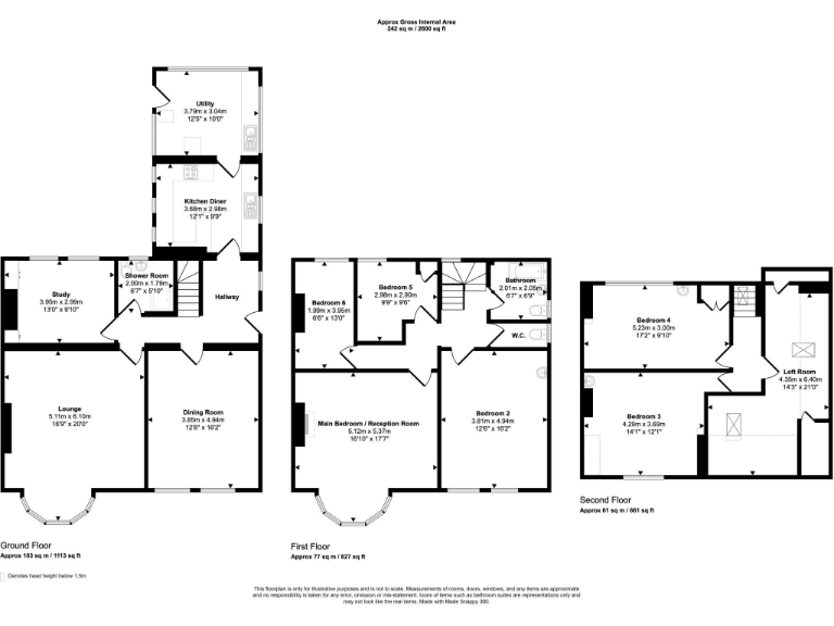
- **Spacious Living**: 6 bedrooms, 3 reception rooms
- **Charm and Character**: Original Edwardian features throughout
- **Prime Location**: Sought-after area in Porthcawl, walking distance to beach and town center
- **Outdoor Space**: Good-sized front and rear gardens, ample off-street parking
- **Potential for Customization**: Generous space for renovations and personal design touches
- **Convenient Access**: Close proximity to J37 of the M4 for commuters
This exquisite Edwardian semi-detached home presents an incredible opportunity for families looking for space and character in a premium Porthcawl location. Boasting six well-appointed bedrooms and three reception rooms, the property offers a wealth of features including high ceilings, elegant fireplaces, and stunning bay windows that amplify the natural light throughout. With original parquet flooring and various nooks for personal touches, the interiors are both charming and functional.
Situated just a stroll from the seafront and Porthcawl Town Centre, you’ll enjoy the vibrant lifestyle complemented by beautiful Rest Bay and Newton beaches nearby. The large front and rear gardens are perfect for outdoor activities or entertaining, while the ample off-street parking and easy commuter access via the M4 adds a layer of convenience.
Although this property is chain-free, buyers will notice it may require some modernization to fully unleash its potential, offering an attractive canvas for those looking to invest in a family home. Don't miss the chance to own this substantial residence in a sought-after area—properties like this don't stay on the market for long!
5 bedroom detached house for sale in Victoria Avenue, Porthcawl, CF36 3HD, CF36 — £795,000 • 5 bed • 4 bath • 3200 ft²
3 bedroom semi-detached house for sale in Wellfield Avenue, Porthcawl, CF36 — £290,000 • 3 bed • 1 bath • 1327 ft²
4 bedroom semi-detached house for sale in Victoria Avenue, Porthcawl, CF36 3HA, CF36 — £620,000 • 4 bed • 1 bath
4 bedroom semi-detached house for sale in 17 Bridgend Road Porthcawl CF36 5RL, CF36 — £408,000 • 4 bed • 1 bath • 1519 ft²
4 bedroom semi-detached house for sale in Victoria Avenue, Porthcawl, CF36 3HA, CF36 — £565,000 • 4 bed • 2 bath • 1785 ft²
4 bedroom detached house for sale in Blundell Avenue, Porthcawl, CF36 — £500,000 • 4 bed • 3 bath • 1975 ft²






























































































































