Chain-free two-bedroom semi with decent plot and strong local amenities—ideal for first-time buyers or investors..
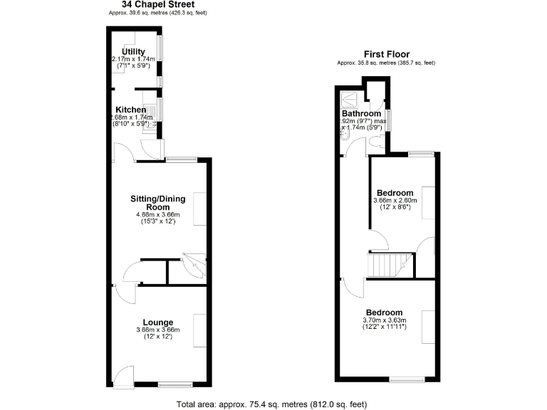
- Two double bedrooms with generous proportions
- Lounge and separate dining room, bay-front feature
- Compact kitchen plus separate utility room
- Rear courtyard garden; low-maintenance outdoor space
- On-street parking only, no off-street parking
- EPC rating D; solid brick walls likely uninsulated
- Chain free; immediate vacant possession
- Suitable for first-time buyers or buy-to-let investors
This two-bedroom semi-detached house on Chapel Street offers an affordable, chain-free entry into Heath Hayes. Well-proportioned rooms include a bay-front lounge and separate dining room, and the property benefits from gas central heating and double glazing. A rear courtyard garden provides low-maintenance outdoor space and the plot is described as decent for the area.
The layout suits first-time buyers or investors looking for a straightforward let: two good-sized bedrooms and a family bathroom across an average-sized 812 sq ft footprint. Local amenities, bus links and several well-rated primary schools are close by, while broadband and mobile coverage are strong. Council tax is low (Band A), helping running costs.
Buyers should note the property dates from the early 20th century with solid brick walls likely without cavity insulation and an EPC rating of D. The kitchen and utility are compact and the home will suit those prepared to refresh finishes rather than expect a turnkey refurbishment. Parking is on-street only.
Overall this is a practical, budget-friendly option with clear upside for modest updating or rental use. The no-onward-chain sale and central location make early viewing advisable for buyers prioritising value and convenience.
2 bedroom semi-detached house for sale in Primrose Meadow, Heath Hayes, WS11 — £169,000 • 2 bed • 1 bath • 603 ft²
2 bedroom terraced house for sale in Hednesford Road, Heath Hayes, WS12 — £187,500 • 2 bed • 2 bath • 1023 ft²
2 bedroom semi-detached house for sale in Chapel Street, Heath Hayes, WS12 — £159,995 • 2 bed • 1 bath • 935 ft²
2 bedroom semi-detached house for sale in Ansty Drive, Heath Hayes , WS12 — £240,000 • 2 bed • 1 bath • 707 ft²
2 bedroom semi-detached house for sale in Redbrook Close, Cannock, WS12 — £200,000 • 2 bed • 1 bath • 625 ft²
3 bedroom semi-detached house for sale in Hednesford Road, Heath Hayes, Cannock, WS12 — £185,000 • 3 bed • 2 bath • 664 ft²










































