**Standout Features:**
- Charming Victorian terraced house in Herne Bay
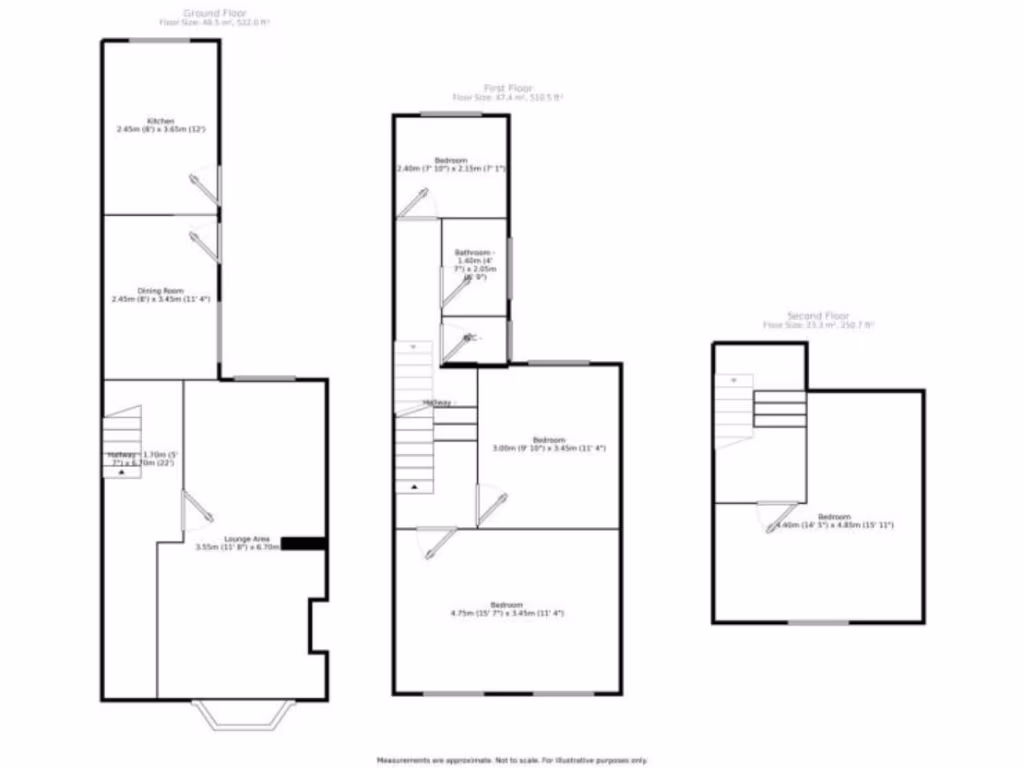
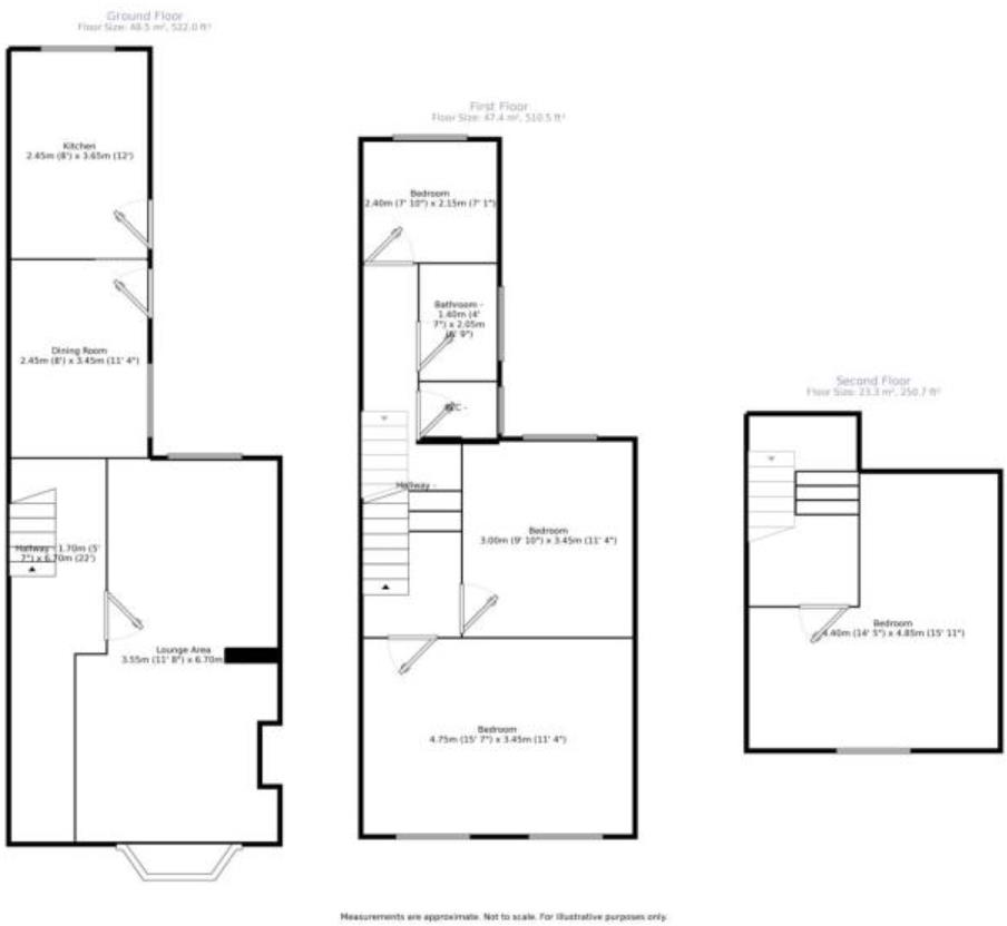
- Four spacious bedrooms across three floors
- Two inviting reception rooms 
- Period features including original wood doors and fireplace surrounds
- Double glazing installed 
- Small rear garden for outdoor enjoyment
- Excellent mobile signal and fast broadband speeds
**Potential Concerns:**
- Requires some modernization
- Solid brick walls with assumed lack of insulation
- Above-average crime rate in the area
This beautifully presented Victorian terraced home, located on the picturesque South Road in Herne Bay, strikes a perfect balance between classic charm and family-friendly functionality. With four generously sized bedrooms and two versatile reception rooms, there’s plenty of space to accommodate a growing family or create inviting spots for entertaining. The property showcases delightful period features, enhancing its character with a warm and welcoming atmosphere, ideal for those looking for comfort in a peaceful coastal setting. 
While the home is well-maintained, it offers additional potential for modernization to fit your personal style, making it an exciting opportunity for buyers seeking to add value. The small rear garden provides a cozy outdoor retreat, and the property benefits from a convenient layout that ensures ease of living for all. Situated close to a vibrant community with a variety of local amenities, schools, and recreational activities, this property presents a solid choice for both families and investors. Take advantage of this unique opportunity to make this period beauty your own, as homes of this quality in Herne Bay are in demand and won't last long.
 3 bedroom terraced house for sale in Kings Road, Herne Bay, CT6 — £340,000 • 3 bed • 2 bath • 1253 ft²
 3 bedroom terraced house for sale in Kings Road, Herne Bay, CT6 — £340,000 • 3 bed • 2 bath • 1253 ft² 4 bedroom terraced house for sale in South Road, Herne Bay, CT6 — £340,000 • 4 bed • 2 bath • 1251 ft²
 4 bedroom terraced house for sale in South Road, Herne Bay, CT6 — £340,000 • 4 bed • 2 bath • 1251 ft² 4 bedroom end of terrace house for sale in Queens Gardens, Herne Bay, CT6 5BS, CT6 — £475,000 • 4 bed • 2 bath • 1509 ft²
 4 bedroom end of terrace house for sale in Queens Gardens, Herne Bay, CT6 5BS, CT6 — £475,000 • 4 bed • 2 bath • 1509 ft² 4 bedroom end of terrace house for sale in Gosfield Road, Herne Bay, Kent, CT6 — £450,000 • 4 bed • 2 bath • 1793 ft²
 4 bedroom end of terrace house for sale in Gosfield Road, Herne Bay, Kent, CT6 — £450,000 • 4 bed • 2 bath • 1793 ft² 3 bedroom semi-detached house for sale in Mickleburgh Hill, Herne Bay, CT6 — £425,000 • 3 bed • 2 bath • 1337 ft²
 3 bedroom semi-detached house for sale in Mickleburgh Hill, Herne Bay, CT6 — £425,000 • 3 bed • 2 bath • 1337 ft² 5 bedroom end of terrace house for sale in Beltinge Road, Herne Bay, Kent, CT6 — £495,000 • 5 bed • 2 bath • 2102 ft²
 5 bedroom end of terrace house for sale in Beltinge Road, Herne Bay, Kent, CT6 — £495,000 • 5 bed • 2 bath • 2102 ft²


































































































































