Bright two‑bedroom with private terrace and rare garage space.
Sea views and private terrace
Set on the second floor of the Grade II listed San Remo Towers, this unusually large two-bedroom apartment brings genuine coastal character with panoramic sea sightlines and a private terrace. The open-plan living area has large sash windows, high ceilings and modern fitted kitchen — a comfortable, low-effort living space suitable for year-round use or holiday letting.
Practical strengths include a dedicated garage (rare in this development), gated parking, double glazing and access to residents’ amenities: rooftop terrace, communal gardens, lift and on-site caretaker. The property is sold as a share of freehold, giving long-term upside for an owner-occupier or investor.
Important considerations: the building’s listed status will create additional consent requirements and can complicate alterations and insurance. The property sits on solid brick walls likely without insulation and uses a community heating scheme, which may affect heating control and running costs. The annual service charge of £5,320 is above average and reflects communal services and maintenance responsibilities.
This apartment suits buyers seeking a substantial, characterful coastal home or a lettable asset close to Boscombe Pier and beaches. It offers immediate enjoyment with scope for sensitive improvement where permitted by listing constraints.
2 bedroom flat for sale in San Remo Towers, Sea Road, Bournemouth, BH5 1JS, BH5 — £240,000 • 2 bed • 1 bath • 775 ft²
1 bedroom flat for sale in Boscombe Spa, Bournemouth, large balcony flat, BH5 — £179,950 • 1 bed • 1 bath • 753 ft²
2 bedroom flat for sale in Sea Road, BOURNEMOUTH, Dorset, BH5 — £240,000 • 2 bed • 2 bath • 1029 ft²
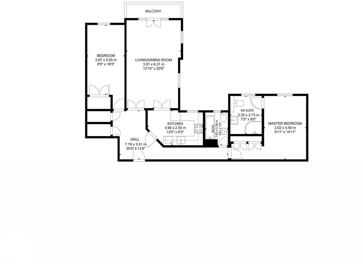
2 bedroom flat for sale in Sea Road, Bournemouth, Dorset, BH5 — £264,500 • 2 bed • 1 bath • 764 ft²
2 bedroom flat for sale in San Remo Towers, Sea Road, Bournemouth, BH5 — £200,000 • 2 bed • 1 bath • 782 ft²
1 bedroom apartment for sale in San Remo Towers, Dorset, Sea Road, Boscombe Spa, Bournemouth, BH5 — £175,000 • 1 bed • 1 bath • 659 ft²


































































