Annexe-ready layout with garden and two-car parking near St Stephen’s schools.
Nearly 2,000 sqft of accommodation, generous room proportions
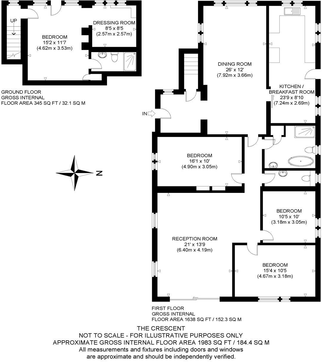
An exceptionally spacious detached property in St Stephen’s, Canterbury, offering nearly 2,000 sq ft of well-proportioned accommodation and useful annex potential. The home is arranged largely on one level with a self-contained lower-ground bedroom and dressing area accessed via its own front door — ideal for guests, multi-generational living or conversion into a private annex. Presented in good order, the house benefits from full double glazing and gas central heating.
Living spaces include a 26' dining room, a dual-aspect living room with garden views, and a fitted kitchen/breakfast room. Three large double bedrooms plus the lower-ground ensuite make the layout flexible for families or professionals who need study/guest space. The rear garden is a manageable, mostly level lawn approximately 45'x45' with mature borders; the front offers a blocked paved driveway for two cars and steps up to the entrance.
Practical considerations: broadband speeds in the area are reported slow, council tax is band E (above average), and local crime statistics are above average. The front exterior and carport would benefit from landscaping and updating to maximise kerb appeal. Offered with no onward chain, this property suits buyers seeking generous single-storey living close to schools, the city centre and Canterbury West station.
3 bedroom detached house for sale in St Stephens Hill, Canterbury, CT2 — £625,000 • 3 bed • 1 bath • 1702 ft²
4 bedroom detached house for sale in Abbey Gardens, Canterbury, CT2 — £450,000 • 4 bed • 2 bath • 1276 ft²
4 bedroom detached bungalow for sale in Fairview Gardens, Sturry, Canterbury, CT2 — £325,000 • 4 bed • 1 bath • 1091 ft²
5 bedroom semi-detached house for sale in Brockenhurst Close, Canterbury, CT2 — £375,000 • 5 bed • 2 bath • 1011 ft²
4 bedroom bungalow for sale in St. Lawrence Close, Canterbury, CT1 — £625,000 • 4 bed • 2 bath • 2115 ft²
3 bedroom detached house for sale in St. Stephens Hill, Canterbury, CT2 — £455,000 • 3 bed • 1 bath • 1023 ft²










































































































