A renovator’s opportunity near good schools and local amenities.
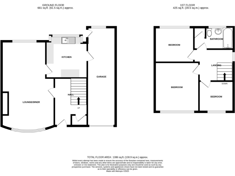
Three bedrooms, lounge/dining room, one family bathroom
A three-bedroom semi-detached home in Chapel House, NE5, offering straightforward family accommodation and strong local amenities. The property sits on an average-sized plot with a private garden and single garage, and benefits from double glazing, mains gas central heating and fast broadband — practical features for everyday living.
The house requires a full cosmetic modernisation throughout, presenting an opportunity to create contemporary living spaces and add value. The layout includes a lounge/dining room and a single family bathroom; ceiling heights and internal fittings are typical of mid-20th-century build and some elements are dated.
Leasehold tenure has 934 years remaining, effectively long lease security. Local schools include several ‘Good’ and one ‘Outstanding’ primary option, and transport links, shops and community facilities are within easy reach — appealing for families and buy-to-let investors targeting steady rental demand.
Known specifics: EPC rating E and council tax band C (approx. £2,145/year). No flooding risk recorded. Buyers should allow budget for full modernisation and check the age/condition of glazing and services during survey and conveyancing.
3 bedroom semi-detached house for sale in Ashdale Crescent, Newcastle upon Tyne, Tyne and Wear, NE5 — £210,000 • 3 bed • 1 bath • 848 ft²
3 bedroom semi-detached house for sale in Chadderton Drive, Newcastle upon Tyne, Tyne and Wear, NE5 — £230,000 • 3 bed • 2 bath • 1194 ft²
3 bedroom semi-detached house for sale in Glendale Close, Chapel House, , NE5 — £199,950 • 3 bed • 1 bath • 980 ft²
3 bedroom semi-detached house for sale in Ashdale Crescent, Chapel House, Newcastle Upon Tyne, NE5 — £230,000 • 3 bed • 1 bath • 1249 ft²
3 bedroom semi-detached house for sale in Kenmoor Way, Chapel House, Newcastle upon Tyne, Tyne and Wear, NE5 1UB, NE5 — £240,000 • 3 bed • 1 bath • 1193 ft²
3 bedroom semi-detached house for sale in Broadstone Grove, Chapel House, NE5 — £220,000 • 3 bed • 1 bath • 1281 ft²


























































