Spacious three-bedroom mid-terrace with parking and good transport links — ideal for first-time buyers..
- Deceptively spacious three double bedrooms including loft room
- Modern fitted kitchen and bathroom, EPC rating C71
- Off-street parking for one vehicle via private driveway
- Low-maintenance front courtyard and split-level rear garden
- Solid brick terrace (likely no cavity insulation) may need upgrading
- Single bathroom only; families may need to adapt layout
- Small plot size and standard ceiling heights
- Freehold tenure; council tax Band A (very cheap)
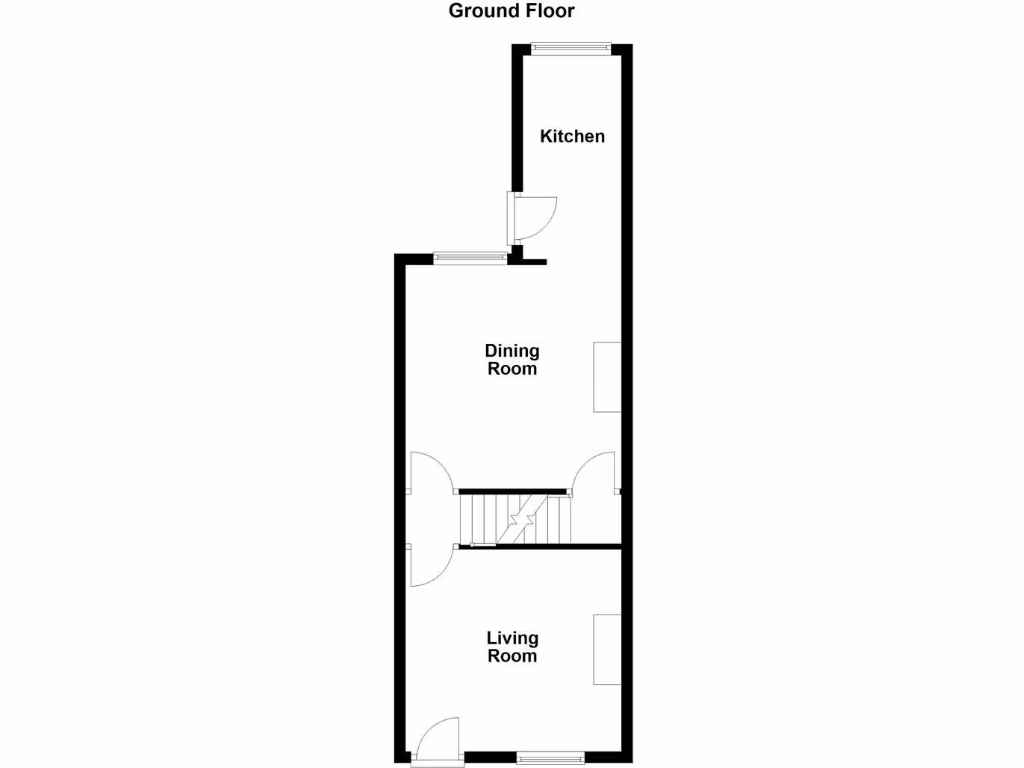
A deceptively spacious mid-terrace offering three double bedrooms across three floors — ideal for first-time buyers wanting room to grow. The property combines modern fitted kitchen and bathroom with useful loft-space and cellar, giving adaptable accommodation for a young family or professionals sharing.
Outside is low-maintenance frontage, a paved courtyard and a raised lawned area, plus a block-paved driveway providing off-street parking for one vehicle. The home benefits from an EPC C71, mains gas central heating and double glazing, and sits within easy walking distance of Featherstone train station and local bus routes — convenient for commuters to Wakefield, Leeds and surrounding towns.
Practical considerations are clear and factual: the plot is small, the house is a traditional solid-brick terrace (likely without cavity wall insulation) and there is only one bathroom. Some external elements and areas described in images may need cosmetic updating. Viewings are recommended to appreciate the space and layout in person.
With affordable council tax (Band A) and a Freehold title, this property is a straightforward purchase for a first-time buyer seeking spacious rooms, off-street parking and good local schools, while accepting modest renovation or energy-efficiency improvements over time.
3 bedroom terraced house for sale in Lea Lane, Featherstone, Pontefract, WF7 — £180,000 • 3 bed • 1 bath • 766 ft²
3 bedroom terraced house for sale in Mount Pleasant Street, Featherstone, Pontefract, WF7 — £130,000 • 3 bed • 1 bath • 862 ft²
3 bedroom semi-detached house for sale in Stoborough Crescent, Featherstone, Pontefract, WF7 — £220,000 • 3 bed • 2 bath • 1152 ft²
3 bedroom semi-detached house for sale in Featherstone Lane, North Featherstone, WF7 — £230,000 • 3 bed • 1 bath • 755 ft²
3 bedroom terraced house for sale in Willow Lane, Featherstone, Pontefract, West Yorkshire, WF7 — £180,000 • 3 bed • 1 bath • 1020 ft²
3 bedroom semi-detached house for sale in Hillcrest Avenue, Featherstone, WF7 — £120,000 • 3 bed • 1 bath • 968 ft²


































































