Large garden, big driveway and great schools — huge renovation potential.
- Detached three-bedroom chalet with flexible seven-room layout
- Impressive 100ft rear garden, strong family/garden potential
- Large driveway parking for up to five vehicles and garage
- Chain free sale for quicker completion
- Requires modernisation throughout; dated decor and fittings
- Solid brick construction; likely limited wall insulation as built
- Council tax band described as expensive; verify costs
- Built 1930–1949; upgrading heating/insulation may add value
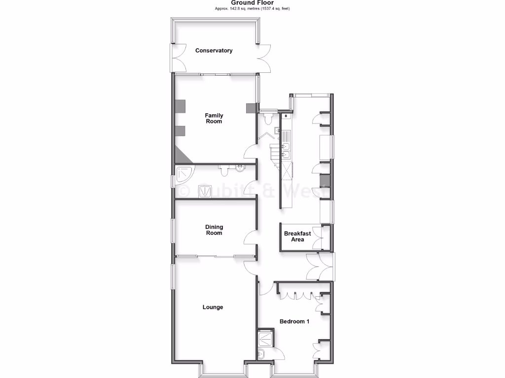
This detached three-bedroom chalet bungalow sits on a large plot in a desirable Shirley location, offered chain free and ready for immediate occupation. The house delivers generous room sizes throughout, including a 21ft living room, spacious kitchen, conservatory and an upstairs bedroom — ideal for families, home workers or buyers seeking flexible living space.
The standout feature is the impressive 100ft rear garden, excellent for children, entertaining or creating a landscaped retreat. A wide driveway provides off-street parking for up to five vehicles and a garage offers additional storage; there's scope (STPP) for further improvement to the frontage.
The property dates from the 1930s–1940s and has original solid-brick construction with double glazing; however it requires modernisation throughout. Expect dated decor, exposed beams and features that may need updating, with likely opportunities to improve insulation, heating efficiency and internal layouts to add value.
Local amenities, good primary and secondary schools rated ‘Good’, fast broadband and excellent mobile signal make this practical for commuters and families. Council tax is described as expensive; buyers should verify every detail, and viewings are recommended to appreciate the size and potential on offer.
3 bedroom chalet for sale in The Glade, Shirley, Croydon, Surrey, CR0 — £495,500 • 3 bed • 2 bath • 1335 ft²
6 bedroom bungalow for sale in The Glade, Shirley, Croydon, CR0 — £650,000 • 6 bed • 4 bath • 2218 ft²
2 bedroom bungalow for sale in Worcester Close, Shirley, Croydon, CR0 — £625,000 • 2 bed • 1 bath • 861 ft²
4 bedroom semi-detached house for sale in Tower View, Shirley, CR0 — £675,000 • 4 bed • 2 bath • 1634 ft²
5 bedroom semi-detached house for sale in Woodmere Avenue, Shirley, CR0 — £685,000 • 5 bed • 2 bath • 1430 ft²
4 bedroom chalet for sale in Binfield Road, South Croydon, Surrey, CR2 — £650,000 • 4 bed • 2 bath • 1454 ft²


























































































