Allocated parking and roof terrace near mainline stations.
Allocated off-street parking space included
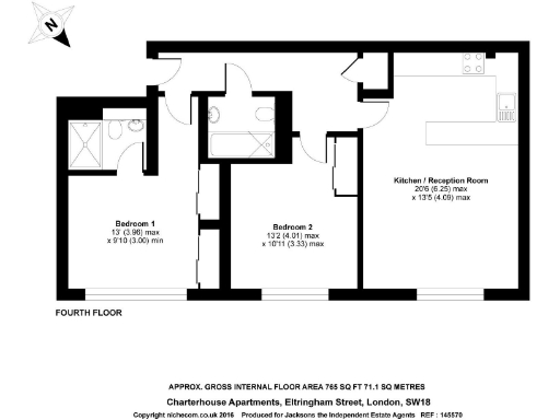
Two double bedrooms, approximately 765 sq ft
Communal roof terrace provides outdoor space
Modern kitchen with integrated appliances
No onward chain — immediate completion possible
Leasehold tenure — check lease length and charges
Council Tax Band E — above-average running cost
Local area classified as deprived — consider local impact
A well-presented, modern two-double-bedroom apartment offering practical living in central Wandsworth. The layout provides comfortable, average-sized rooms, a sleek integrated kitchen and a bright living space with large windows. Benefitting from an allocated off-street parking space and a communal roof terrace, the flat suits buyers wanting low-move-in friction — it comes with no onward chain and good digital connectivity (fast broadband, excellent mobile signal).
The property is leasehold and was built after 2007, with double glazing and gas central heating via boiler and radiators. Energy performance is a C rating. At about 765 sq ft the apartment is roomy for a first home or city-based couple wanting space for working from home and occasional guests.
Buyers should note this is in Council Tax Band E (above average) and the local area is classified as deprived, which may affect local services and perceptions. The tenure is leasehold; prospective purchasers should confirm remaining years and service charges. Overall the home offers straightforward, contemporary living close to Wandsworth Town and Clapham Junction stations, with easy access to riverside amenities and local shops.
2 bedroom flat for sale in Eltringham Street, Wandsworth Town, London, SW18 — £500,000 • 2 bed • 2 bath • 735 ft²
1 bedroom apartment for sale in Berisford Mews, London, SW18 — £335,000 • 1 bed • 1 bath • 346 ft²
2 bedroom flat for sale in Garratt Lane, Wandsworth Town, London, SW18 — £475,000 • 2 bed • 2 bath • 654 ft²
2 bedroom apartment for sale in Eltringham Street, London, SW18 — £474,950 • 2 bed • 2 bath • 625 ft²
2 bedroom flat for sale in Garratt Lane, London, SW18 — £450,000 • 2 bed • 2 bath • 613 ft²
2 bedroom apartment for sale in Charterhouse Apartments, London, SW18 — £495,000 • 2 bed • 2 bath • 681 ft²


























