Affordable three-bed terrace with garden and scope to personalise for new buyers.
- No onward chain; freehold tenure
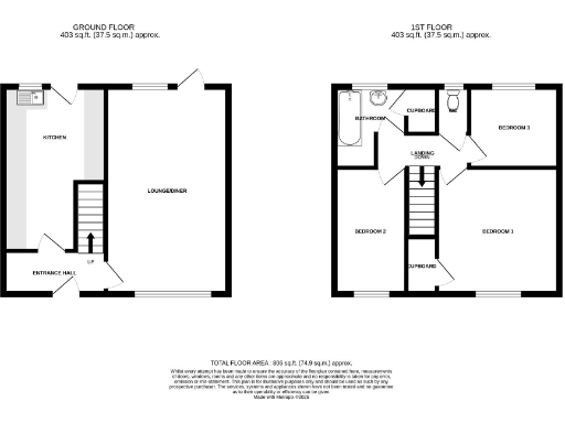
- Three good-size bedrooms; single bathroom plus separate WC
- Generous lounge and a large kitchen (approx. 806 sq ft total)
- Small plot with private front and sunny rear garden
- Combination boiler and uPVC double glazing installed
- Area classified as very deprived; neighbourhood described as challenged
- Purchasers should verify gas, electrical and heating systems
- Council Tax Band A; overall running costs likely low
A chain-free three-bedroom mid-terrace offered at an accessible price, this freehold home suits first-time buyers seeking space and scope. The lounge is generous and the kitchen is a superb size for the house, while both front and rear gardens give outdoor space for children or plants.
Practical features include a combination boiler and uPVC double glazing. Accommodation is arranged over two storeys with one bathroom and a separate WC. Room sizes are shown for clarity — the overall internal area is modest at about 806 sq ft, so living spaces are comfortable rather than large.
Buyers should note the property sits in a very deprived local area and the immediate neighbourhood is described as 'challenged'; crime is average. Services and heating have not been tested — purchasers are advised to confirm gas, electrics and central heating are in working order before committing.
This house offers sensible value: low Council Tax (Band A), clear title with no onward chain, and straightforward layout that could be improved cosmetically or adapted to increase value. It will particularly suit buyers wanting a ready-to-move-in home with potential to personalise rather than a turnkey luxury finish.
3 bedroom terraced house for sale in Beverley Road, New Ferry, Wirral, CH62 — £115,000 • 3 bed • 1 bath • 898 ft²
3 bedroom terraced house for sale in Woodland Road, Upton, Wirral, CH49 — £185,000 • 3 bed • 1 bath • 977 ft²
3 bedroom terraced house for sale in Clee Hill Road, Birkenhead, CH42 — £175,000 • 3 bed • 2 bath • 786 ft²
3 bedroom terraced house for sale in Ashford Road, Birkenhead, Wirral, CH41 — £150,000 • 3 bed • 1 bath • 930 ft²
3 bedroom terraced house for sale in Hoole Road, Woodchurch, Wirral, CH49 — £155,000 • 3 bed • 1 bath • 1063 ft²
3 bedroom terraced house for sale in Lower Green, Woodchurch, Wirral, CH49 — £170,000 • 3 bed • 1 bath • 930 ft²


































































