Spacious three-bed cottage with castle views and flexible basement space.
Victorian stone mid-terrace with attractive period features
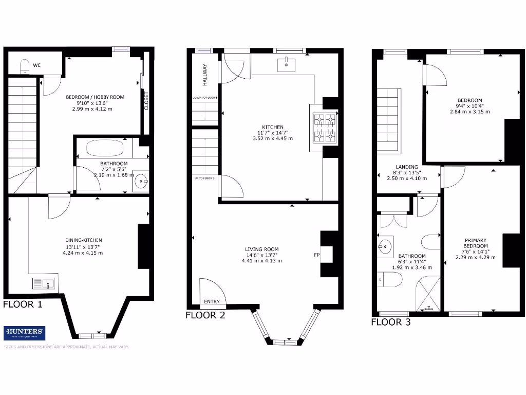
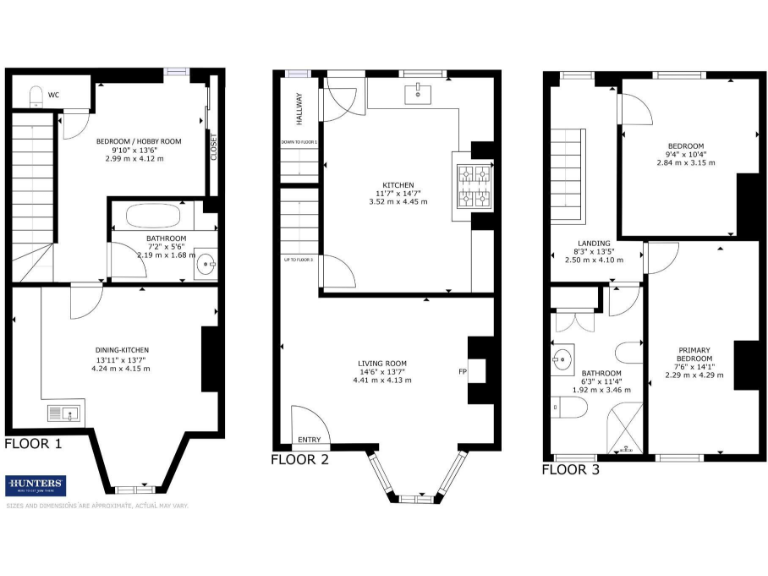
Set on Castle View Terrace, this stone-built Victorian terrace delivers period charm, elevated outlooks and surprisingly spacious family accommodation across three floors. The bay-fronted living room looks over the cottage garden, while the main dining-kitchen comfortably fits a farmhouse table—ideal for everyday family life and casual entertaining.
A useful basement level provides flexible extra space: a second dining-kitchen, a bedroom or hobby room, plus a WC and bathroom. First-floor accommodation includes two double bedrooms with views toward the castle and church, complemented by a sizable Mediterranean-style bathroom. The property is chain free, so a swift move is possible for a buyer seeking convenience.
Outside, the small front garden is an attractive private retreat with potential for improved views after light pruning. On-street parking is available directly outside. The house is well-located for Skipton High Street amenities and is under a mile from the train station, making schools, shops and transport easy to reach.
Buyers should note material points: the property dates from before 1900 and external stone walls are assumed uninsulated; the glazing installation date is unknown. The range cooker may need upgrading in time. The immediate area records higher-than-average crime rates, and the plot is modest in size. These factors make the house most suitable for buyers wanting characterful accommodation who accept some retrofit or security improvements.
3 bedroom terraced house for sale in 15 Primrose Hill, Skipton, BD23 1NR, BD23 — £289,950 • 3 bed • 1 bath
3 bedroom terraced house for sale in Raikes Road, Skipton, North Yorkshire, BD23 — £249,950 • 3 bed • 1 bath • 936 ft²
2 bedroom terraced house for sale in Firth Street, Skipton, BD23 — £220,000 • 2 bed • 1 bath • 929 ft²
3 bedroom terraced house for sale in 3 Brougham Street, Skipton, North Yorkshire, BD23 2EN, BD23 — £289,950 • 3 bed • 2 bath • 863 ft²
3 bedroom terraced house for sale in 5 Castle Street, Skipton, North Yorkshire, BD23 2DH, BD23 — £165,000 • 3 bed • 1 bath • 657 ft²
3 bedroom terraced house for sale in 11 Castle Street, Skipton, BD23 2DH, BD23 — £184,000 • 3 bed • 1 bath • 731 ft²






























































