Spacious rooms and renovation potential near good local schools.
Three bedrooms plus rear extension increases ground-floor space
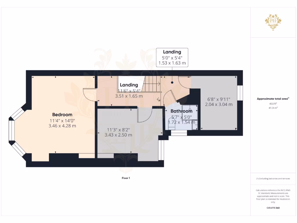
A three-bedroom mid-terrace Victorian home with a sizeable rear extension, offered freehold and ready for a new owner to personalise. The property has two shower rooms, generous reception rooms with bay windows and high ceilings, and a large kitchen that opens to the rear extension and private yard. Practical features include double glazing (install date unknown), mains gas central heating and fast broadband—useful for remote working or multi-occupancy lets.
This house will suit first-time buyers looking for space and character or investors seeking rental income in an area with strong private renting activity. The plot is small with on-street parking only, but proximity to good local schools, shops and public transport keeps daily life convenient. Council tax is very cheap, which helps running costs.
Buyers should factor in refurbishment work: the property is dated and will benefit from modernisation throughout, with patterned wallpaper and signs of possible mould in places. The walls are solid brick with assumed no insulation, so upgrading insulation and windows or undertaking a full heating service are likely costs. Surrounding area indicators include high crime levels and very deprived local statistics, important for occupation, resale and lettings planning.
At the asking price of £125,000 the house offers clear potential for added value through renovation and cosmetic improvement. Viewings are available for those who want to inspect the layout and condition in person and to assess whether the property fits their plans for a family home or a rental investment.
3 bedroom end of terrace house for sale in Eton Road, Middlesbrough, TS5 — £185,000 • 3 bed • 1 bath • 1017 ft²
3 bedroom terraced house for sale in Ayresome Park Road, Linthorpe, TS5 — £114,950 • 3 bed • 1 bath
3 bedroom end of terrace house for sale in Sadberge Street, Middlesbrough, TS3 — £68,000 • 3 bed • 1 bath • 750 ft²
3 bedroom terraced house for sale in Crescent Road, Middlesbrough, TS1 — £135,000 • 3 bed • 2 bath • 1227 ft²
3 bedroom terraced house for sale in Addison Road, Middlesbrough, North Yorkshire, TS5 — £130,000 • 3 bed • 2 bath • 1012 ft²
3 bedroom terraced house for sale in Chester Street, Middlesbrough, TS1 — £70,000 • 3 bed • 1 bath • 905 ft²


























































