Stylish family living with garden and loft space in a quiet town-fringe location.
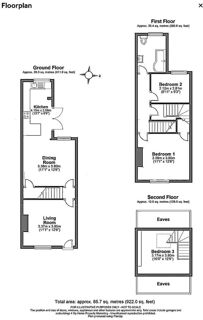
Three bedroom end-of-terrace cottage, newly refurbished and extended
Open-plan kitchen/dining/family room with integrated appliances
Converted loft bedroom with Velux and eaves storage
Landscaped rear garden with raised decking and new lawn
No allocated parking; on-street or nearby parking only
Solid brick walls; assumed no wall insulation (may affect energy costs)
One family bathroom only; suited to small families or couples
Average broadband speeds; excellent mobile signal
This refurbished three-bedroom end-of-terrace cottage combines period character with contemporary living across three floors. The ground floor offers a cosy living room with a feature fireplace leading to an extended open-plan kitchen/dining/family area that opens onto a raised deck and newly laid lawn — an inviting space for family life and entertaining. The bespoke fitted kitchen includes integrated appliances and thoughtful storage.
Upstairs are two comfortable bedrooms and a fully tiled, high-quality family bathroom. A converted loft provides a third bedroom with a Velux window and eaves storage, useful as a bedroom, guest room or home office. The house is freehold, mains-gas heated with a modern boiler and double glazing fitted since 2002.
Practical considerations: the property sits on a small plot with no allocated parking and terraced neighbours close by. The building is solid-brick as originally constructed and insulation in the walls is assumed absent, which may affect energy performance and running costs. Broadband speeds are average and council tax is moderate. Overall this is a well-finished town-fringe home suited to families or professionals seeking move-in condition with period charm and contemporary living space.
3 bedroom terraced house for sale in Hollybush Hill, Stoke Poges, Buckinghamshire, SL2 — £475,000 • 3 bed • 1 bath • 722 ft²
3 bedroom end of terrace house for sale in Chequers Bridge Cottages, Market Lane, Iver, SL0 — £450,000 • 3 bed • 1 bath • 758 ft²
3 bedroom semi-detached house for sale in Newell Green, Warfield, Bracknell, Berkshire, RG42 — £695,000 • 3 bed • 2 bath • 1300 ft²
2 bedroom cottage for sale in Fifield Road, Bray, Maidenhead, SL6 — £440,000 • 2 bed • 1 bath • 521 ft²
3 bedroom terraced house for sale in Thorney Mill Road, Iver, SL0 — £525,000 • 3 bed • 2 bath • 1031 ft²
2 bedroom detached house for sale in Gore Road, Burnham, SL1 — £635,000 • 2 bed • 2 bath • 1223 ft²






























































