Spacious four-bedroom detached home with garage and balcony in desirable Larkfield..
Four double bedrooms with fitted wardrobes
Master bedroom with en‑suite and sit‑out balcony
High-spec kitchen island, skylight, marble worktops
Open-plan reception, conservatory and study
Driveway, garage and decent private garden
Newly renovated; move-in condition throughout
EPC Grade C; energy efficiency reasonable
Medium local flood risk; council tax class expensive
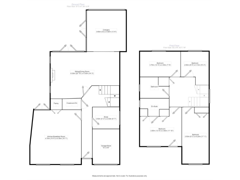
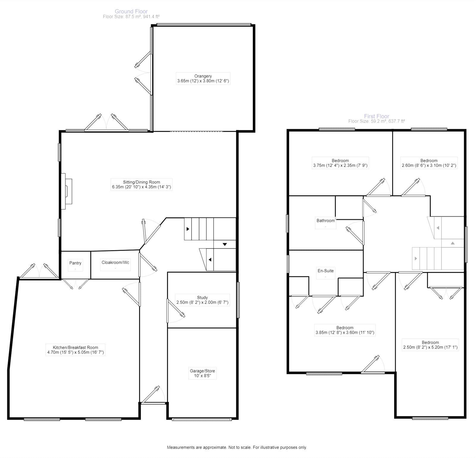
This well-presented four-double-bedroom detached house in sought-after Larkfield offers family-focused living across an intelligently arranged 1579 sq ft. Recently renovated, the property combines a high-spec kitchen/breakfast room with island and skylight, an open-plan reception with a fitted log-burner, plus a conservatory and study — ideal for home working and family life.
The master bedroom includes built-in wardrobes, an en-suite and a sit-out balcony, while a second double also has fitted storage. Practical features include a driveway, integral garage, double glazing, mains gas central heating and fast broadband; the home is Freehold and EPC rated C.
Buyers should note a medium local flood risk and that council tax is expensive. The location suits families: green spaces, walking and cycling routes nearby, good primary schools locally and Aylesford secondary provision within reach (one nearby secondary rated 'Requires improvement'). Overall this is a modern, comfortable family home with strong everyday conveniences and scope to personalise further.
5 bedroom detached house for sale in Willow Road, Larkfield, Kent, ME20 — £600,000 • 5 bed • 3 bath • 1192 ft²
5 bedroom detached house for sale in Brook Road, Larkfield, Aylesford, ME20 — £500,000 • 5 bed • 1 bath • 1345 ft²
4 bedroom detached house for sale in Swallow Road, Larkfield, ME20 — £480,000 • 4 bed • 3 bath • 1411 ft²
4 bedroom detached house for sale in Carmelite Road, AYLESFORD, Kent, ME20 — £500,000 • 4 bed • 3 bath • 1595 ft²
4 bedroom detached house for sale in Reed Close, The Lakes, Larkfield, ME20 — £750,000 • 4 bed • 2 bath • 1923 ft²
3 bedroom semi-detached house for sale in Lunsford Lane, Aylesford, ME20 — £400,000 • 3 bed • 1 bath • 1214 ft²






















































