**Standout Features:**
- Beautifully renovated double-fronted character cottage
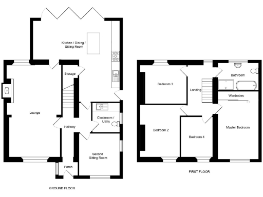
- 4 spacious bedrooms and 1 family bathroom
- Tasteful open-plan living area with stunning rear views
- Quality fitted composite windows and doors throughout
- Generous front garden with driveway parking
- Maintenance-free landscaped rear garden ideal for relaxation
- Appealing village location just minutes from Bridgend and major commuter routes
**Potential Downsides:**
- Listed status may complicate renovations or extensions
- Walls lack insulation
Discover the perfect blend of charm and modern living in this captivating four-bedroom semi-detached cottage steeped in history dating back to the 17th century. With its newly extended open-plan living space at the rear, the cottage welcomes an abundance of natural light and stunning views of the surrounding landscape, making it a fantastic choice for families seeking comfort and space in a semi-rural setting. The property boasts quality finishes, including double-glazed windows in a stylish two-tone design, ensuring both aesthetic appeal and energy efficiency.
Nestled in a highly sought-after village location, enjoy easy access to nearby amenities and schools as well as a short drive to Bridgend Town Centre. The maintenance-free rear garden offers the perfect oasis for relaxation, while the front garden and driveway add to the overall convenience. As a freehold property, it presents exciting potential for future renovations despite being listed. This stunning home is a rare find—don’t miss the opportunity to view it and appreciate all it has to offer!
4 bedroom cottage for sale in Wind Street, Laleston, Bridgend County Borough, CF32 0HS, CF32 — £500,000 • 4 bed • 2 bath • 1727 ft²
3 bedroom detached house for sale in Pandy Road, Bedwas, CF83 — £400,000 • 3 bed • 2 bath • 1378 ft²
2 bedroom terraced house for sale in 19 Westgate, Cowbridge, The Vale of Glamorgan CF71 7AQ, CF71 — £499,000 • 2 bed • 1 bath • 935 ft²
4 bedroom detached house for sale in Pen-yr-heol, Pen-y-fai, Bridgend County. CF31 4ND, CF31 — £399,950 • 4 bed • 1 bath • 1432 ft²
2 bedroom cottage for sale in 130 Bridgend Road Aberkenfig Bridgend CF32 9AE, CF32 — £175,950 • 2 bed • 1 bath • 963 ft²
4 bedroom semi-detached house for sale in Dehewydd Lane, Llantwit Fardre, Pontypridd, Rhondda Cynon Taff. CF38 2EN, CF38 — £450,000 • 4 bed • 1 bath • 2013 ft²


































































































































