BL1 1LL - Leisure facility for sale in 23 Mawdsley Street, Bolton, BL…

View on Property Piper

Leisure facility for sale in 23 Mawdsley Street, Bolton, BL1 1LL, BL1

Summary - 23 - 25 MAWDSLEY STREET BOLTON BL1 1LL

1 bed 1 bath Leisure Facility

**Standout Features:**
- Prominent town center location on Mawdsley Street
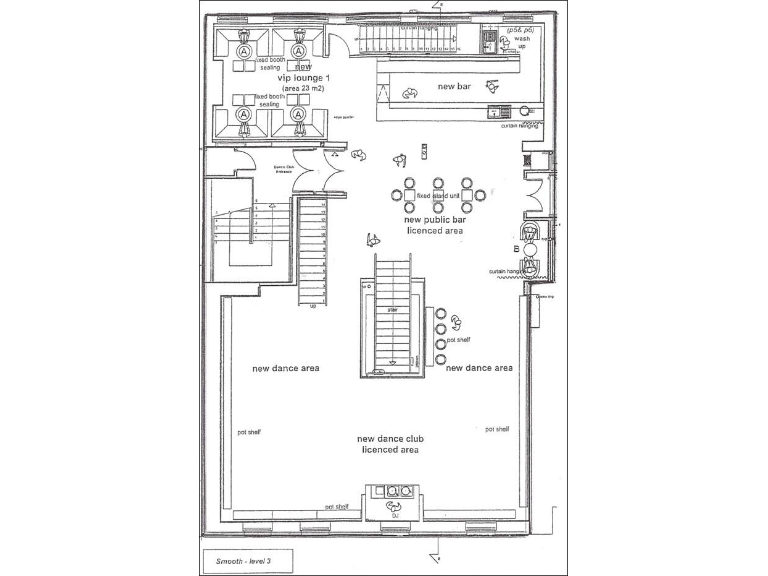
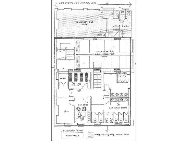
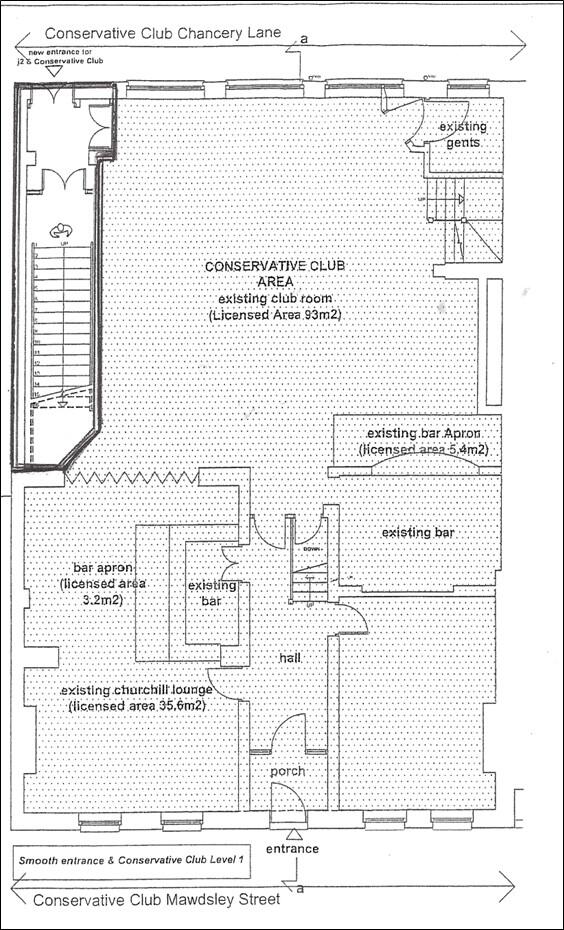
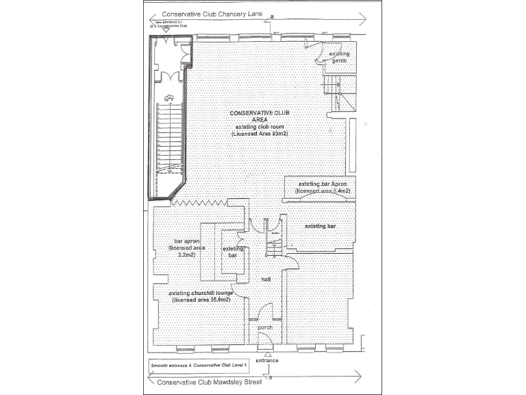
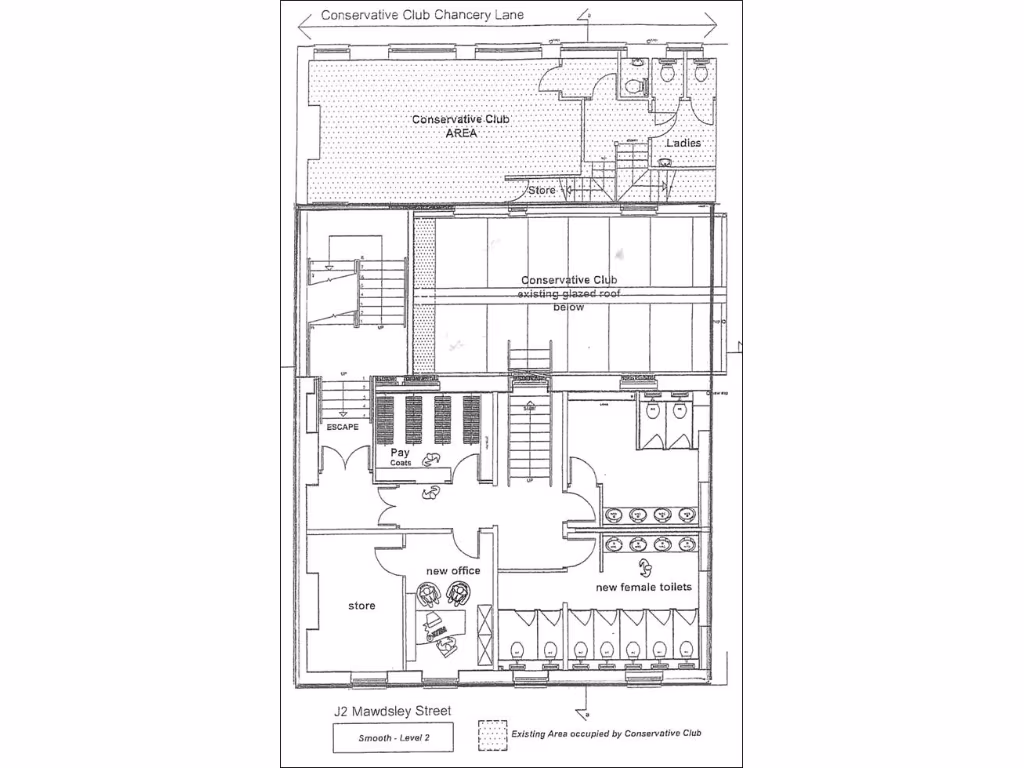
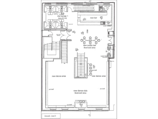
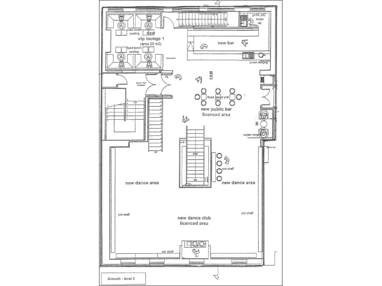
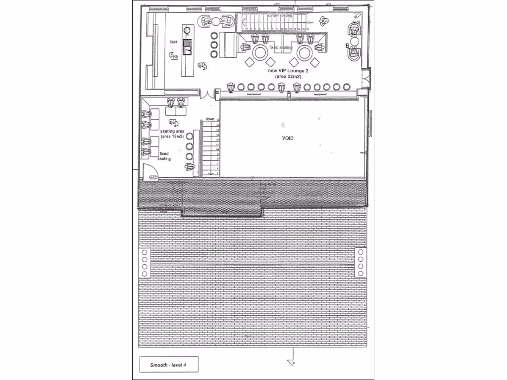
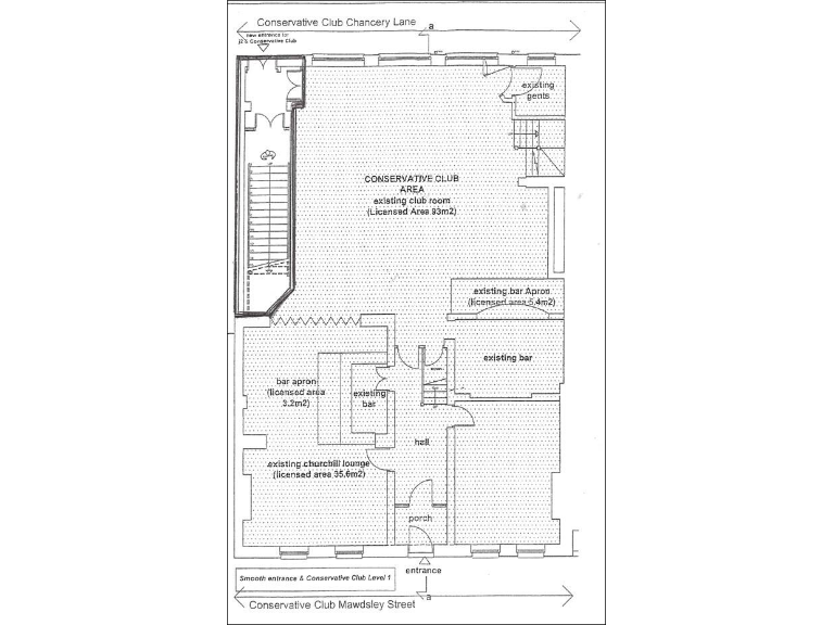
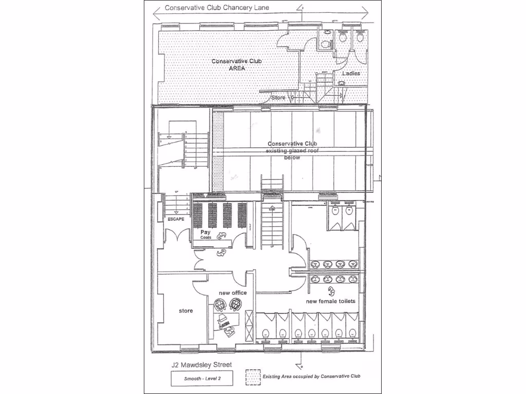
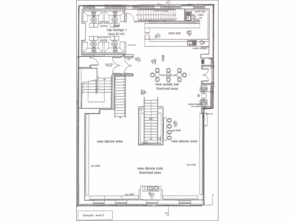
- Former nightclub premise, spacious layout of approximately 8,288 square feet over three to four levels
- Potential for diverse uses (nightclub, cocktail bar, karaoke venue) or conversion to residential space, subject to planning permission
- Close proximity to major transportation links and residential developments, including student housing
- Competitive pricing with sale offers starting at £450,000 and rental at £37,500 per annum, exclusive

**Summary:**
Positioned in the vibrant heart of Bolton's nightlife and leisure district, this substantial three to four-storey property presents a unique investment opportunity. Currently functioning as a former nightclub, the expansive interior offers versatile space that can be adapted for various entertainment uses, including bars or mixed venues, or potentially converted into residential units with the necessary permissions. The property’s Victorian brick facade and industrial-style interiors create a compelling canvas ripe for modernization or redevelopment.

In a strategically established location, just a stone’s throw from Bolton Interchange, you’ll find this area bustling with bars, cafes, and restaurants, appealing to both locals and visitors alike. With a decent plot size and a low crime rate, it provides a secure environment for business or living, while nearby new residential developments promise a growing customer base. Don't miss the chance to invest in this prime property with substantial potential—this opportunity won't last long!

Property Details

Brochure Descriptions

Image Descriptions

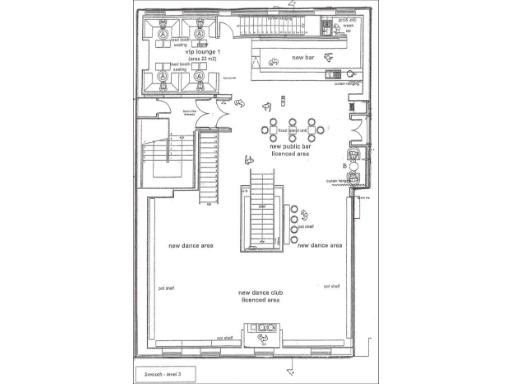
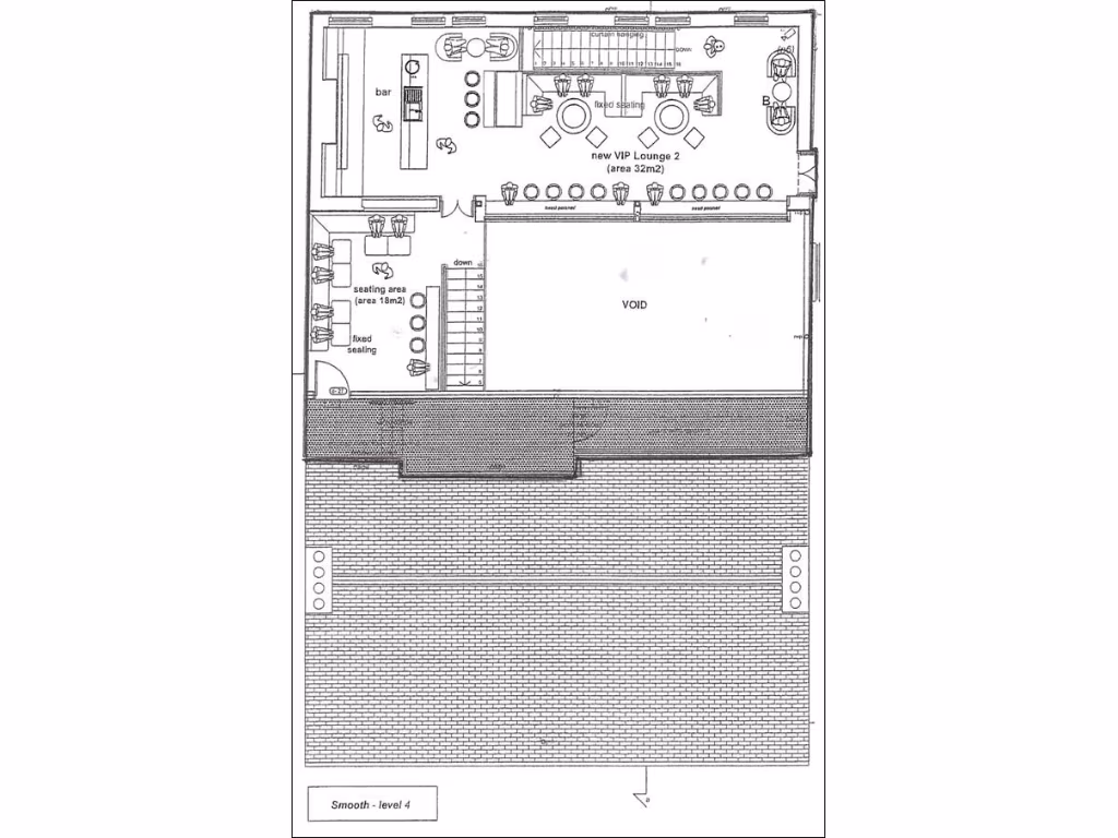
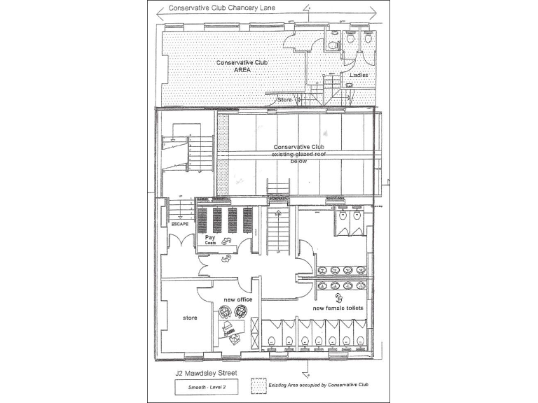
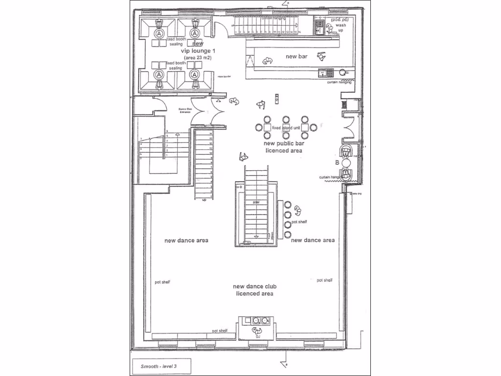
Floorplan Description

Rooms

Textual Property Features

Detected Visual Features

Nearby Schools

Nearest Bars And Restaurants

,,,,}

Nearest General Shops

,,}

Nearest Grocery shops

,,}

Nearest Supermarkets

,,}

Nearest Religious buildings

,,}

Nearest Medical buildings

,,,}

Nearest Airports

}

Nearest Leisure Facilities

,,,,}

Nearest Tourist attractions

,,}

Nearest Train stations

,,,,}

Nearest Bus stations and stops

,,,,}

Nearest Hotels

,,}

Tags

Local Market Stats

AirBnB Data

Similar Properties

Meta

High Res Images

Compatible Images

Low res Images

Thumbnails

Raw Images

High Res Floorplan Images

Compatible Floorplan Images

Low res Floorplan Images

FloorplanImages Thumbnail

Raw Floorplan Images