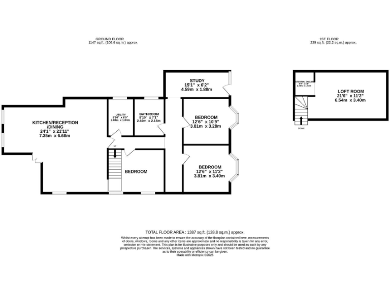
**Standout Features:**
- Spacious three-bedroom detached bungalow
- Modern open-plan kitchen/diner with vaulted ceilings and Velux windows
- Newly fitted four-piece family bathroom and separate utility room
- Expansive rear garden, perfect for children and entertaining
- Versatile entrance/study room
- Loft room with natural light and WC
- Driveway parking
**Description:**
Discover this impressive three-bedroom detached bungalow, perfectly designed for families seeking both comfort and style. The property features a modern open-plan kitchen and dining area with lofty ceilings, bathed in natural light from Velux windows, making it an ideal space for hosting. Three generously sized bedrooms reside on the ground floor alongside a recently renovated four-piece family bathroom and a convenient utility room.
The large loft room presents additional living potential, perfect for a guest suite, workspace, or playroom. Outside, the vast rear garden offers abundant space for recreation, ensuring a safe environment for children and ample room for outdoor gatherings. The bungalow also includes driveway parking for your convenience.
While the neighborhood exhibits above-average crime rates and is categorized as a hampered neighborhood, the excellent mobile signal and fast broadband speeds enhance the property’s appeal for modern living. Given its renovated condition and spacious layout, this home invites you to imagine a comfortable lifestyle with incredible flexibility, but with a price point of £325,000, this gem won't be available for long!
3 bedroom bungalow for sale in Cricklade Road, Swindon, SN2 — £350,000 • 3 bed • 1 bath • 1292 ft²
3 bedroom detached bungalow for sale in Lechlade Road, Highworth, SN6 7HQ, SN6 — £475,000 • 3 bed • 2 bath • 1061 ft²
2 bedroom detached bungalow for sale in Cheney Manor Road, Swindon, SN2 — £325,000 • 2 bed • 1 bath • 993 ft²
3 bedroom semi-detached bungalow for sale in Derwent Drive, Swindon, SN2 — £350,000 • 3 bed • 2 bath • 898 ft²
2 bedroom semi-detached bungalow for sale in Hill View Road, Swindon, Wiltshire, SN3 4HZ, SN3 — £325,000 • 2 bed • 1 bath • 1003 ft²
3 bedroom bungalow for sale in Derwent Drive, Upper Stratton, Swindon, SN2 — £400,000 • 3 bed • 2 bath • 1498 ft²






















































