Large modern two-bed near beach with underground parking and good schools.
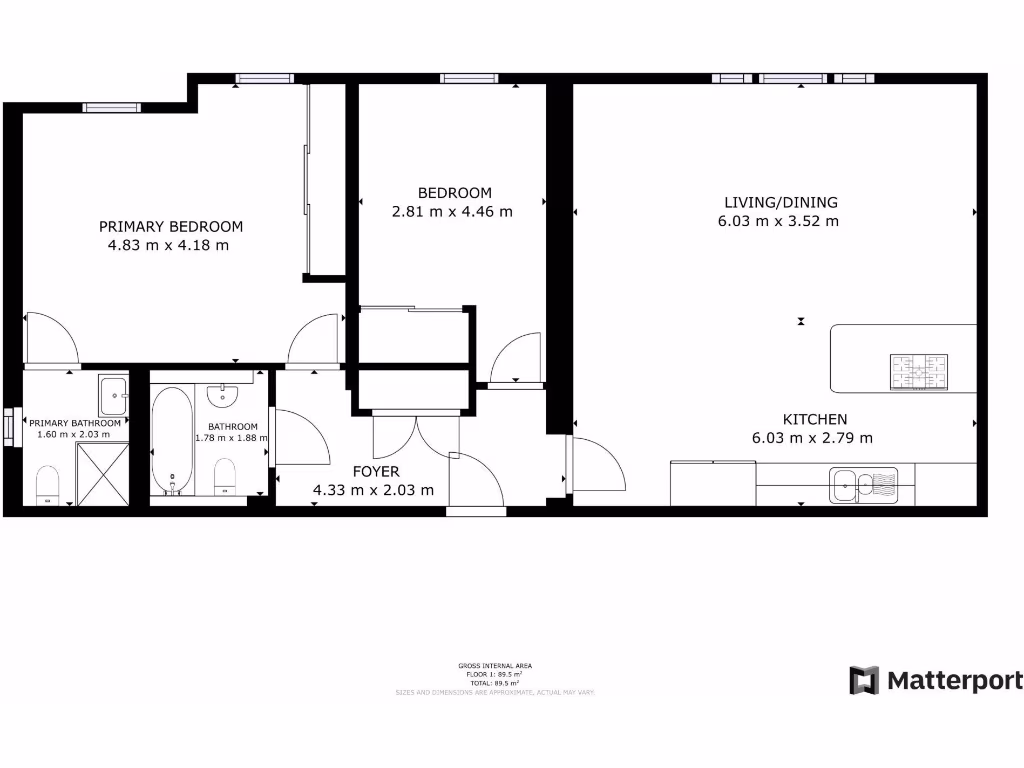
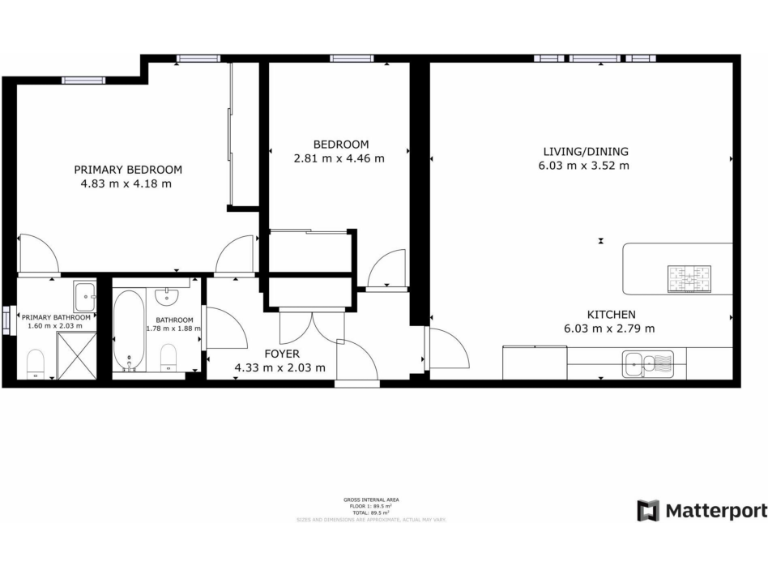
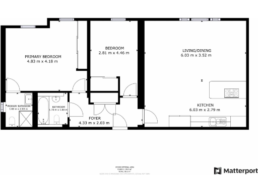
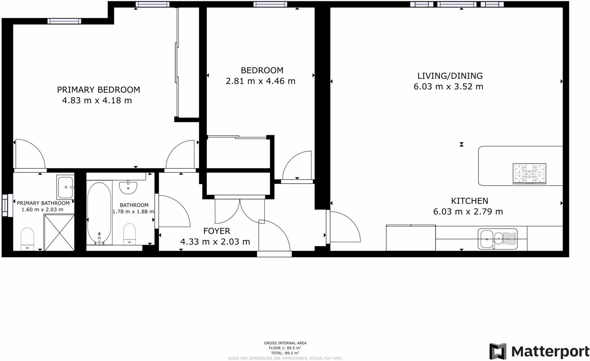
Large 963 sq ft two-bedroom flat with two bathrooms
Allocated underground garage parking included
Open-plan kitchen/living/dining with breakfast bar
EPC rating B; double glazing; mains gas central heating
Central Broadstairs location — shops, station, beach nearby
Leasehold — check lease length, service charges and ground rent
Council tax band D (moderate); area records higher crime levels
No flooding risk; fast broadband and excellent mobile signal
Set in the heart of Broadstairs, this roomy two-bedroom flat offers contemporary open-plan living just a short walk from the beach, shops and transport links. The layout includes a generous living/kitchen/dining area with breakfast bar, two bedrooms (one with en-suite) and a separate family bathroom — comfortable accommodation for first-time buyers or couples wanting easy seaside access.
Practical benefits include an allocated underground garage space and double glazing; the property is a large 963 sq ft flat with an EPC rating of B and mains gas central heating. The central location puts a wide range of amenities and highly rated primary and secondary schools within easy reach, while fast broadband and excellent mobile signal support home working and connectivity.
Important considerations: the flat is leasehold (buyers should check remaining lease length, service charges and ground rent) and the area records higher-than-average crime levels, which may affect running costs such as security or insurance. Council tax sits in band D. Overall this is a modern, well-sized apartment with seaside convenience and clear potential for buyers who prioritise location and space.
2 bedroom flat for sale in St. Peters Road, Broadstairs, CT10 2AP, CT10 — £210,000 • 2 bed • 1 bath • 455 ft²
2 bedroom flat for sale in Nash Gardens, Broadstairs, Kent, CT10 — £325,000 • 2 bed • 2 bath • 562 ft²
2 bedroom flat for sale in Carlton Avenue, Broadstairs, Kent, CT10 — £300,000 • 2 bed • 2 bath • 901 ft²
2 bedroom flat for sale in York Street, Broadstairs, CT10 — £419,995 • 2 bed • 1 bath • 706 ft²
2 bedroom flat for sale in Nash Gardens, Broadstairs, CT10 — £310,000 • 2 bed • 1 bath • 603 ft²
2 bedroom flat for sale in High Street, Broadstairs, CT10 — £205,000 • 2 bed • 1 bath • 477 ft²


















































































































