Large family home near Saltaire with modern kitchen and converted basement.
Four double bedrooms across multiple levels
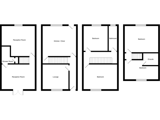
This well-presented four-bedroom mid-terrace in Saltaire offers generous family accommodation across multiple levels. The house has four double bedrooms, three reception rooms, a modern kitchen with central island, and three bathrooms (one in the converted basement), making it suitable for larger households.
Set close to the Saltaire World Heritage area, the home benefits from excellent local schools, frequent public transport and a wide range of shops and amenities. Practical features include gas central heating, fast broadband, excellent mobile signal and no flood risk. The property is freehold with council tax band B.
Practical considerations are straightforward: the rear outdoor space is a small enclosed yard rather than a garden, and parking is by on-street permit only. The basement has been converted to living space and contains a bathroom—buyers should check natural light, ventilation and any legal approvals. The building dates from the early 20th century and walls are likely uninsulated, so buyers may wish to budget for thermal upgrades or period maintenance.
Overall this home suits families seeking spacious rooms, period character and a convenient Saltaire location. Early viewing is recommended to assess basement conversion details and potential retrofit works.
3 bedroom end of terrace house for sale in Dove Street, Saltaire, BD18 — £250,000 • 3 bed • 1 bath • 713 ft²
4 bedroom terraced house for sale in Bradford Road, Shipley, BD18 — £240,000 • 4 bed • 1 bath • 1393 ft²
2 bedroom end of terrace house for sale in Whitlam Street, Saltaire, BD18 — £175,000 • 2 bed • 1 bath • 549 ft²
4 bedroom terraced house for sale in Selborne Terrace, Shipley, West Yorkshire, BD18 — £230,000 • 4 bed • 1 bath • 1572 ft²
2 bedroom terraced house for sale in Mary Street, Saltaire, BD18 — £175,000 • 2 bed • 1 bath
4 bedroom end of terrace house for sale in Kirkgate, Shipley, BD18 — £350,000 • 4 bed • 2 bath • 2330 ft²










































































