Spacious three-bedroom house with garage, garden and off-street parking.
Chain free with vacant possession
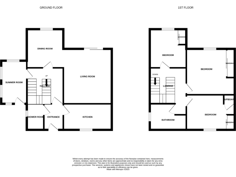
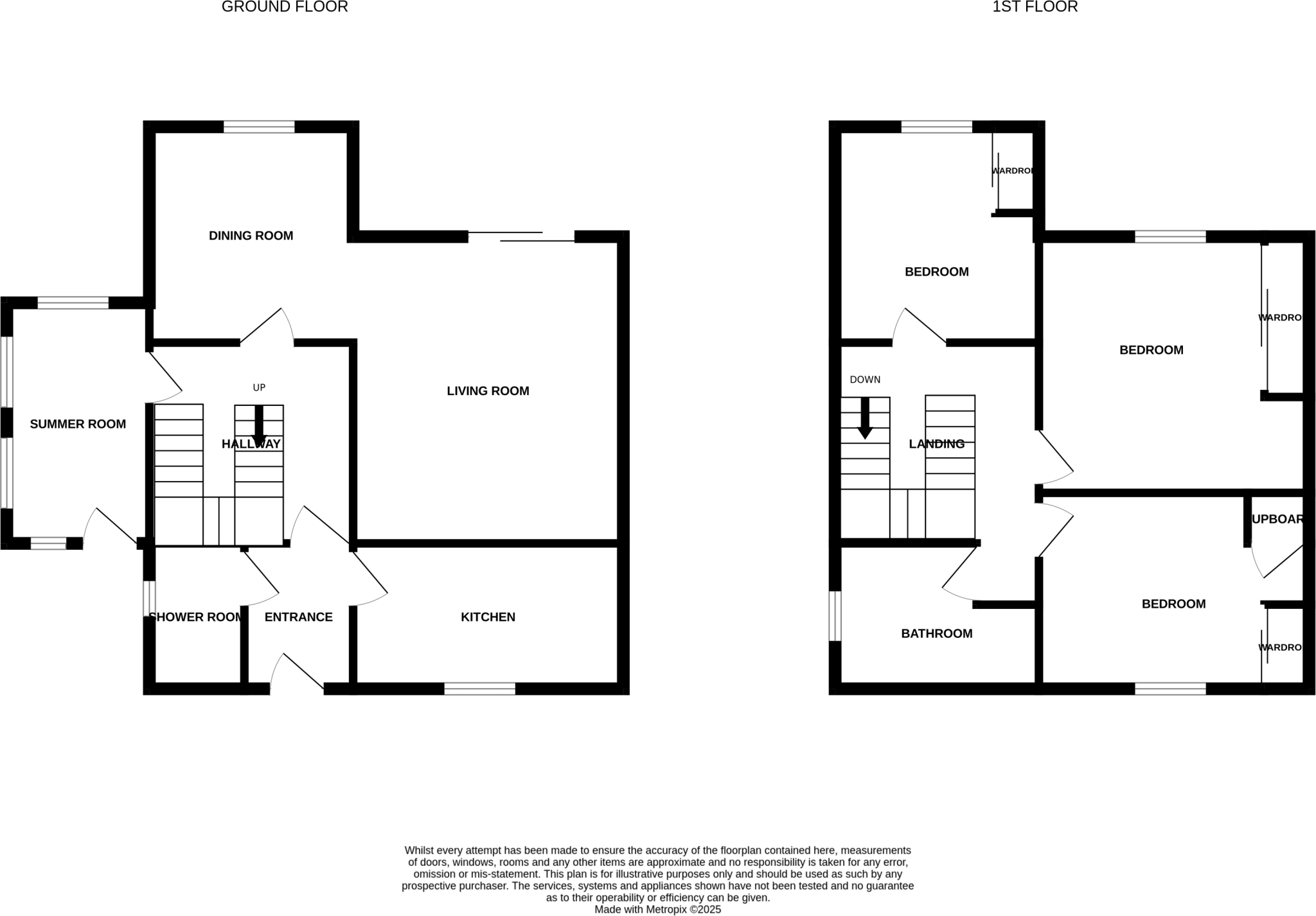
This three-bedroom semi-detached house on Rose Lea offers a roomy family layout across approximately 1,228 sq ft, positioned on a pleasant elevated plot with front and rear gardens. The property is chain free and offered with vacant possession, making it straightforward to move quickly. Practical features include gas central heating, double glazing fitted after 2002 and off-street parking for multiple vehicles plus a detached garage with a workshop.
The ground floor provides flexible living space — entrance porch, shower room, dining room, living room, summer room and kitchen — while three double bedrooms and a family bathroom occupy the first floor. For families, local primary schools are rated Good and Durham city centre is about four miles away for wider shopping and leisure options. Nearby road links (A691) make commuting manageable.
Buyers should note the home dates from the 1930s–1940s and will suit those wanting to refresh rather than a fully new build. The kitchen is dated (1980s cabinets and fittings) and the house would benefit from cosmetic updating in places to maximise its potential. The surrounding area shows higher levels of deprivation than average, and some secondary schools nearby are rated as requiring improvement.
Overall this is a practical, well-located family property with immediate usability and clear scope to add value through modernisation of the kitchen and internal finishes. Council tax is very low, broadband is average and mobile signal is excellent, supporting everyday family life and home working when needed.
3 bedroom semi-detached house for sale in Lawnswood, Houghton Le Spring, Sunderland, DH5 — £125,000 • 3 bed • 1 bath • 1350 ft²
3 bedroom semi-detached house for sale in Rose Avenue, Houghton Le Spring, Tyne and Wear, DH4 — £74,950 • 3 bed • 1 bath • 905 ft²
3 bedroom semi-detached house for sale in Palm Road, West Cornforth, DL17 — £114,950 • 3 bed • 2 bath • 1135 ft²
3 bedroom semi-detached house for sale in Cuthbert Road, West Cornforth, DL17 — £79,950 • 3 bed • 1 bath • 668 ft²
2 bedroom semi-detached house for sale in Raisby Terrace, West Cornforth, Ferryhill, Durham, DL17 — £89,950 • 2 bed • 1 bath • 798 ft²
2 bedroom semi-detached house for sale in Lilac Avenue, Sacriston, Durham, DH7 — £55,000 • 2 bed • 1 bath • 603 ft²


























































