LN12 1JL - 4 bedroom detached bungalow for sale in Orchard Way, Mablet…

View on Property Piper

4 bedroom detached bungalow for sale in Orchard Way, Mablethorpe, LN12

Summary - 4 Orchard Way LN12 1JL

4 bed 2 bath Detached Bungalow

Large single‑storey home near Mablethorpe beaches — room to modernise and excellent parking.
Detached four-bedroom bungalow with en-suite WC
A spacious, detached four-bedroom bungalow offering single-floor, easily managed living with generous room proportions and a private garden. The property includes a sunroom, driveway, detached garage with power, and a low-maintenance rear garden — practical for family life or as a holiday base close to Mablethorpe’s sandy beaches.

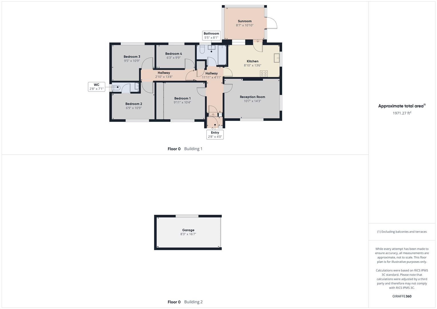
Internally the layout works well: a light reception room with feature fireplace, kitchen with room for appliances and the Worcester gas boiler, four bedrooms (one with an en-suite WC) and a main bathroom. The bungalow benefits from mains gas central heating, double glazing and an L-shaped hallway with loft access; the footprint is large (c. 1,971 sq ft) and feels roomy throughout.

There is scope to modernise the decor and kitchen fittings to suit contemporary tastes — some rooms show dated finishes — making this an attractive purchase for buyers prepared to update. Practical positives include fast broadband, excellent mobile signal and a driveway plus garage for off-street parking.

Be candid about the location: the property sits in an area with higher-than-average crime and significant local deprivation, which may concern some buyers. Flood risk is low and tenure is freehold; purchasers should verify all services and appliances, as fixtures and systems have not been tested. Early viewing is advised to appreciate the size and potential on offer.

Property Details

Brochure Descriptions

Image Descriptions

Floorplan Description

Rooms

Textual Property Features

Target Audience

AI Tags

Detected Visual Features

EPC Details

Nearby Schools

Nearest Bars And Restaurants

,,,,}

Nearest General Shops

,,}

Nearest Grocery shops

,,}

Nearest Supermarkets

,,}

Nearest Religious buildings

,,}

Nearest Medical buildings

,,,}

Nearest Leisure Facilities

,,,,}

Nearest Tourist attractions

,,}

Nearest Train stations

,,,,}

Nearest Bus stations and stops

,,,,}

Nearest Hotels

,,}

Tags

Local Market Stats

AirBnB Data

Similar Properties

Meta

High Res Images

Compatible Images

Low res Images

Thumbnails

Raw Images

High Res Floorplan Images

Compatible Floorplan Images

Low res Floorplan Images

FloorplanImages Thumbnail

Raw Floorplan Images