Adaptable three/four bedroom house with parking and southwest garden.
Chain free detached family home, approx 1,100 sq ft
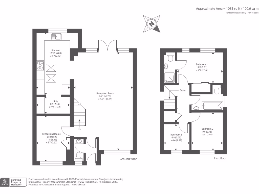
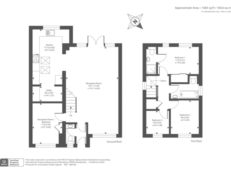
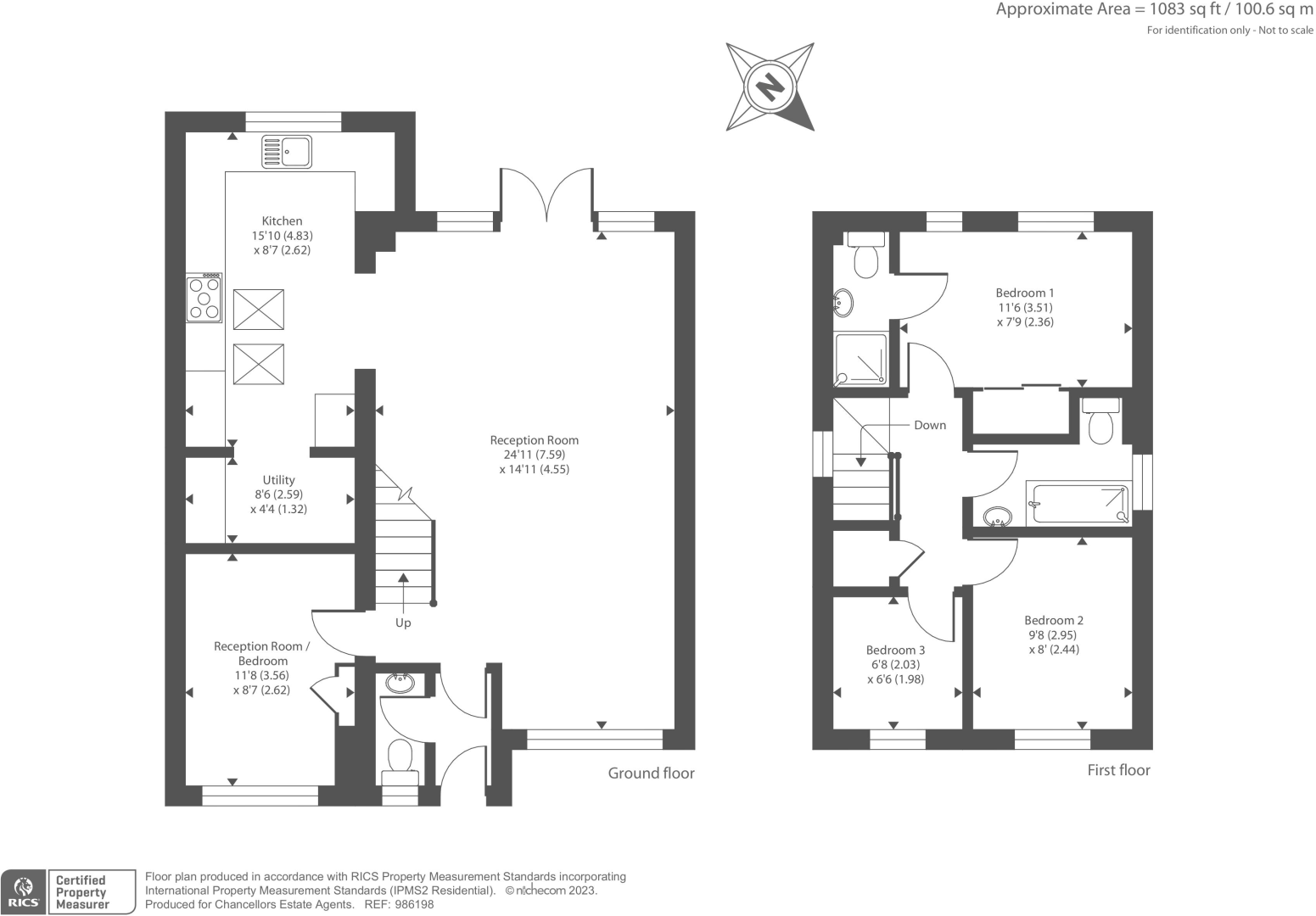
This sympathetically extended three/four-bedroom detached home in Botley offers adaptable family living across roughly 1,100 sq ft. Ground-floor living is arranged around a double-aspect open-plan reception room with French doors to a south-west facing garden, plus a separate reception that can serve as a bedroom or playroom. The fitted kitchen, utility room and cloakroom add practical daily convenience.
Upstairs provides a principal bedroom with a contemporary ensuite, a second double bedroom, a single bedroom and a modern family bathroom. Recent double glazing and gas central heating with a boiler and radiators create a comfortable, energy-conscious home. Off-street parking for two and a lawned front and rear garden complete the package.
The property dates from the late 1970s–early 1980s and is listed as timber-frame construction (assumed). That age and construction type mean buyers should allow for typical mid-life maintenance and confirm details with a survey. Council tax is above average for the area.
Set in a well-connected part of Oxford, the house is close to local shops, good schools and convenient road and rail links into the city and London. Offered freehold and chain free, it suits growing families seeking spacious, adaptable accommodation with outdoor space and parking.
4 bedroom detached house for sale in Bushy Close, Oxford, OX2 — £550,000 • 4 bed • 2 bath • 975 ft²
4 bedroom detached house for sale in Bushy Close, Oxford, OX2 — £525,000 • 4 bed • 2 bath • 1157 ft²
4 bedroom detached house for sale in Botley, Oxford, OX2 — £1,000,000 • 4 bed • 3 bath • 2275 ft²
4 bedroom detached house for sale in Botley, Oxford, OX2 — £580,000 • 4 bed • 2 bath • 1260 ft²
4 bedroom detached house for sale in Fogwell Road, Oxford, OX2 — £500,000 • 4 bed • 2 bath • 1173 ft²
5 bedroom detached house for sale in Fogwell Road, Botley, Oxford, OX2 — £525,000 • 5 bed • 3 bath • 1085 ft²










































