RH20 3NU - 3 bedroom semidetached house for sale in Snapes Road, Storr…

View on Property Piper

3 bedroom semi-detached house for sale in Snapes Road, Storrington, West Sussex, RH20

Summary - 6 SNAPES ROAD STORRINGTON PULBOROUGH RH20 3NU

3 bed 1 bath Semi-Detached

Low-maintenance 3-bed home with generous garden and Lifetime Lease option for over-60s.
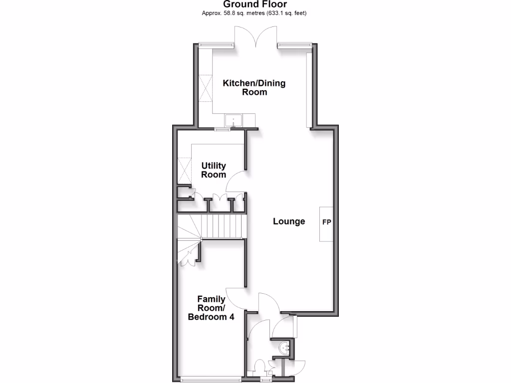
- Freehold three-bedroom semi-detached home, approx. 844 sq ft
- Converted garage used as family room; flexible as 4th bedroom
- Kitchen/dining extension and separate modern utility room
- Rear garden with two patios, raised tiled area and summer house
- Off-street parking for three vehicles and external storage unit
- Homewise Lifetime Lease example price £264,500 for over-60s
- Full market price £399,950; Lifetime Lease eligibility limited to 60+
- Single family bathroom; verify garage conversion consents
Light, practical and low-maintenance, this three-bedroom semi-detached home in Storrington suits buyers seeking comfortable retirement living with outdoor space. The back of the house has been extended to create a bright kitchen/dining area with an adjacent modern utility room and direct garden access — ideal for easy indoor-outdoor living and entertaining.

The converted garage provides a flexible family room or potential fourth bedroom, while off-street parking for three cars adds convenience for visitors. The rear garden features two patio areas, a raised tiled patio with gazebo and a summer house — a pleasant, private space for gardening or relaxing.

Important practical points: the property is offered freehold and constructed in the 1980s, with double glazing installed before 2002 and gas central heating. The home is being marketed with a Home for Life Lifetime Lease example price (guide: £264,500 for eligible over-60s), compared with the full market price of £399,950. Only buyers aged 60+ can access the Homewise Lifetime Lease; the final price depends on age and personal circumstances and up to a 50% share may be purchased to safeguard value.

Note the house is a modest overall size (approx. 844 sq ft) with a single family bathroom. The garage conversion should have verified planning/building-regulation consent. This is a practical, low-deprivation location with excellent mobile and fast broadband, making it suitable for retirees who want a comfortable home with good connectivity and outdoor space.

Property Details

Image Descriptions

Rooms

Textual Property Features

Target Audience

AI Tags

Detected Visual Features

EPC Details

Nearby Schools

Nearest Bars And Restaurants

,,,,}

Nearest General Shops

,,}

Nearest Grocery shops

,,}

Nearest Supermarkets

,,}

Nearest Religious buildings

,,}

Nearest Medical buildings

,,,}

Nearest Leisure Facilities

,,,,}

Nearest Tourist attractions

,,}

Nearest Train stations

,,,,}

Nearest Bus stations and stops

,,,,}

Nearest Hotels

,,}

Tags

Local Market Stats

AirBnB Data

Similar Properties

Meta

High Res Images

Compatible Images

Low res Images

Thumbnails

Raw Images

High Res Floorplan Images

Compatible Floorplan Images

Low res Floorplan Images

FloorplanImages Thumbnail

Raw Floorplan Images