Newly renovated three-bed terrace with garden and two parking spaces, close to Heywood town centre.
Three generously sized bedrooms, newly renovated downstairs
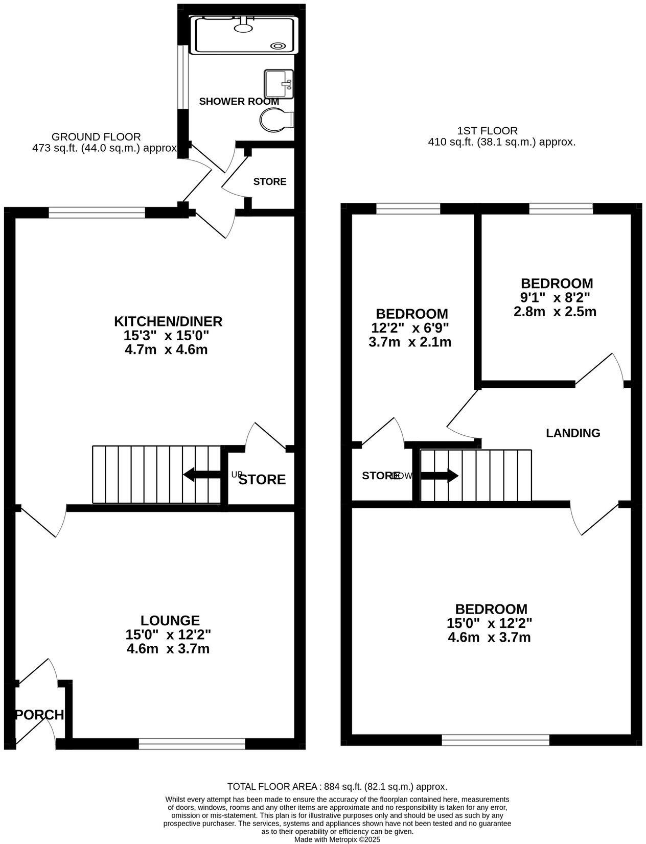
Property reference JH887: a newly renovated three-bedroom terraced home on Abbey Crescent, a short walk from Heywood town centre and Queens Park. The ground floor delivers a contemporary kitchen/diner with granite worktops and integrated appliances, plus a tastefully decorated living room with a working gas fire and solid oak internal doors. High-quality flooring and a fully tiled shower room complete the recent upgrades.
Upstairs provides three generously sized bedrooms that could benefit from light cosmetic updating to suit your style. The house sits on a small plot with enclosed front and rear gardens designed for low maintenance, including artificial turf and a paved seating area. Practical extras include a garden shed and two dedicated off-road parking spaces to the rear.
This freehold property offers family-focused convenience: very low local crime, nearby well-regarded primary and secondary schools, and easy access to Heywood Sports Village and local amenities. Transport links are straightforward with quick routes to the M62, M66 and A58.
Be aware of the material considerations: the plot is small and there is a single bathroom serving three bedrooms, which may be limiting for larger families. The wider area records higher deprivation statistics despite low crime, so buyers wanting strong local socioeconomic indicators should note this. Overall, the home is move-in ready downstairs with clear potential upstairs to personalise and add value.
3 bedroom end of terrace house for sale in Tamar Way, Heywood, Greater Manchester, OL10 — £210,000 • 3 bed • 1 bath • 754 ft²
3 bedroom terraced house for sale in Fisher Drive, Heywood, OL10 — £279,950 • 3 bed • 2 bath • 1118 ft²
2 bedroom terraced house for sale in Clifton Close, Heywood, Greater Manchester, OL10 — £125,000 • 2 bed • 1 bath • 754 ft²
3 bedroom semi-detached house for sale in Cherwell Avenue, Heywood, Greater Manchester, OL10 — £260,000 • 3 bed • 1 bath • 689 ft²
3 bedroom town house for sale in Omrod Road, Heywood, Greater Manchester, OL10 — £285,000 • 3 bed • 1 bath • 1014 ft²
3 bedroom semi-detached house for sale in MELBOURNE CLOSE, Buersil, Rochdale OL11 2EJ, OL11 — £195,000 • 3 bed • 1 bath • 691 ft²






































































