Quiet Chickerell retreat with parking, garden and easy town access.
Chain free freehold park home with off-street parking
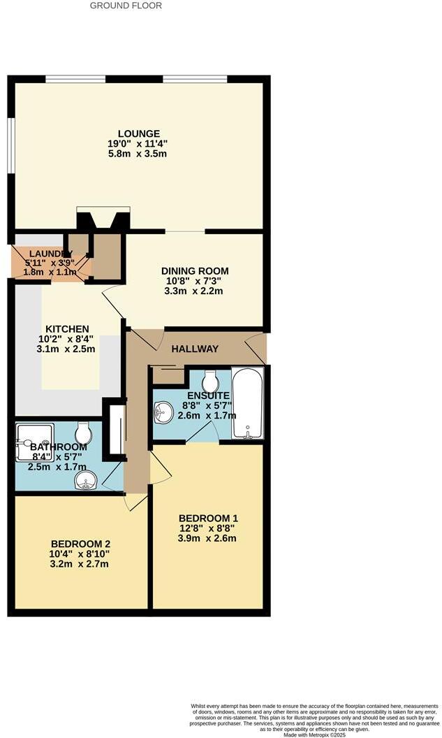
Large lounge with bay windows and separate dining room
Two bedrooms and two bathrooms — useful for guests or ensuite
Requires renovation: kitchen, bathrooms and internal finishes dated
Site fee approx £220 pcm (c. £2,640pa) to budget for
Modest plot with wrap-around garden and external storage shed
Walking distance to Link Park shops and regular bus routes
No flooding risk; area low crime and affluent setting
Set on Rowlands Caravan Park in Chickerell, this two-bedroom park home offers single‑storey living with practical outdoor space and parking. The large lounge and separate dining room give genuinely usable entertaining space uncommon in many park homes, while two bathrooms add everyday convenience for couples or guests. The property is chain free and sold freehold, simplifying purchase for a buyer seeking a quick move or a straightforward project.
The home requires renovation and modernisation: kitchens, bathrooms and internal finishes are dated and will benefit from updating. The plot is modest with a wrap‑around garden and storage shed; overall the footprint is small-to-average for this property type. Buyers should budget for cosmetic works and possible upgrading of fixtures to achieve contemporary standards.
Running costs are clear: an approximate site fee of £220 pcm (around £2,640pa) is payable, council tax is very low, and there is off‑street parking. The setting is a residential caravan park close to Link Park shops and regular bus routes into Weymouth, making daily errands and town centre access straightforward. This property will suit first-time buyers, downsizers or investors prepared to refurbish and personalise a compact home.
2 bedroom park home for sale in Chickerell Road, Weymouth, DT4 — £175,000 • 2 bed • 2 bath • 760 ft²
2 bedroom park home for sale in Hardy's country park, Dorchester, DT2 — £220,000 • 2 bed • 1 bath • 511 ft²
2 bedroom park home for sale in Chickerell Road, Chickerell, Weymouth, DT3 — £150,000 • 2 bed • 1 bath • 386 ft²
2 bedroom park home for sale in London Road, Dorchester, DT1 — £140,000 • 2 bed • 1 bath • 425 ft²
3 bedroom park home for sale in Bridport Road, Dorchester, DT2 — £70,000 • 3 bed • 1 bath • 740 ft²
2 bedroom park home for sale in London Road, Dorchester, DT1 — £140,000 • 2 bed • 1 bath • 348 ft²


































































