**Standout Features:**
- **Location**: Sought-after Lysander Place development adjacent to Royal Arsenal
- **Space**: Spacious 2-bedroom, 2-bathroom apartment with allocated parking
- **Connectivity**: Short walk to Elizabeth Line offering quick commutes
- **Investment Potential**: Estimated rental income of approximately £1,650 pcm
- **Amenities**: Security entry phone system and landscaped complex
- **Community**: Family-friendly area with multiple well-rated schools nearby
**Summary:**
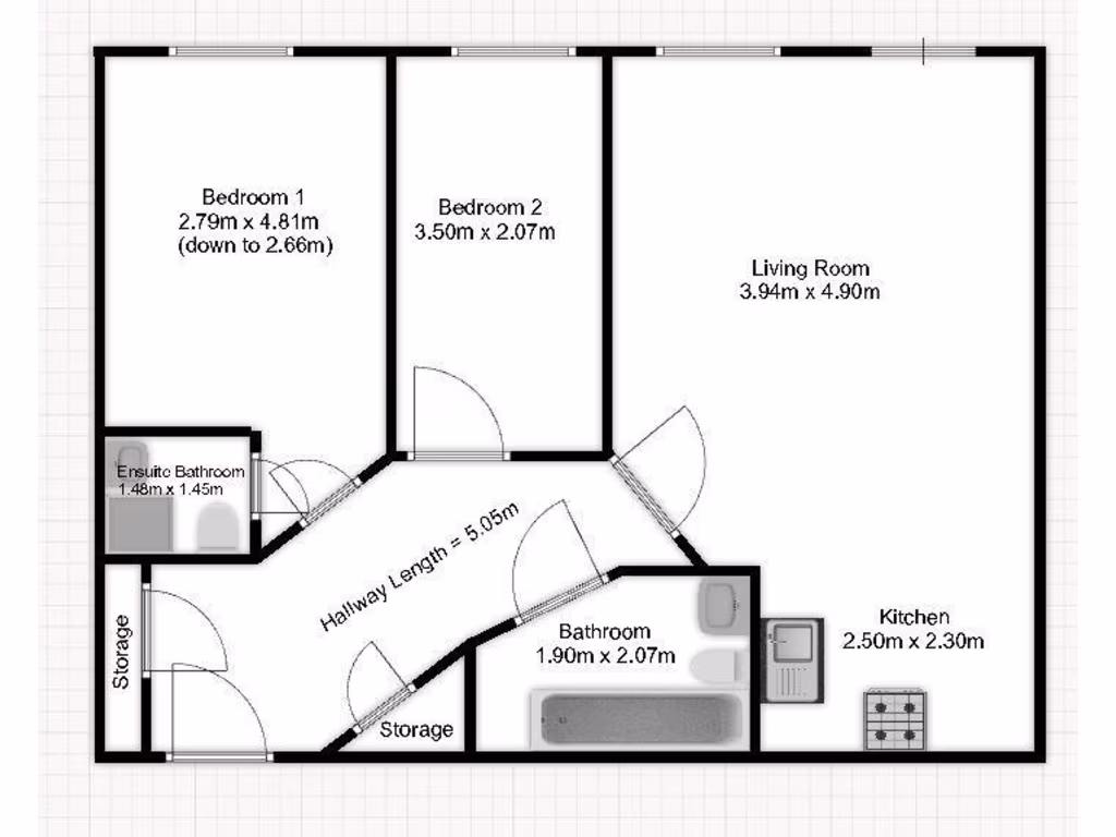
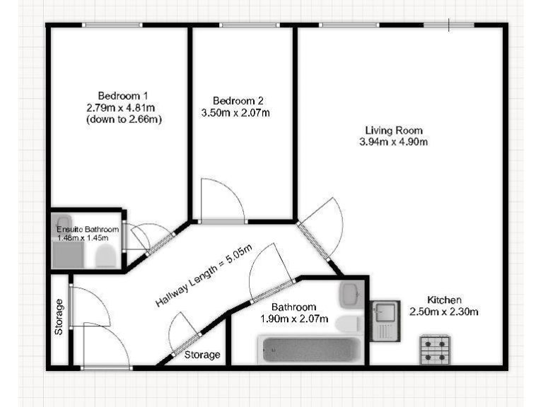
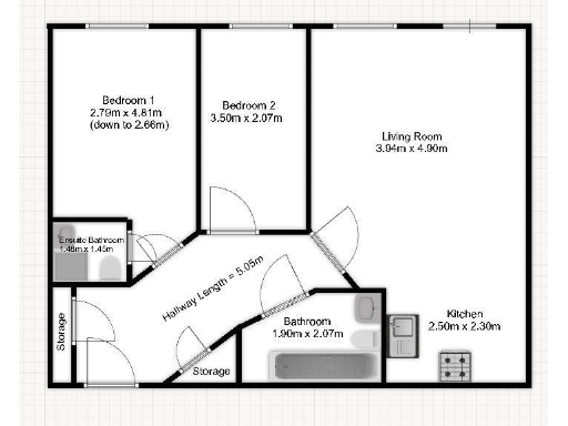
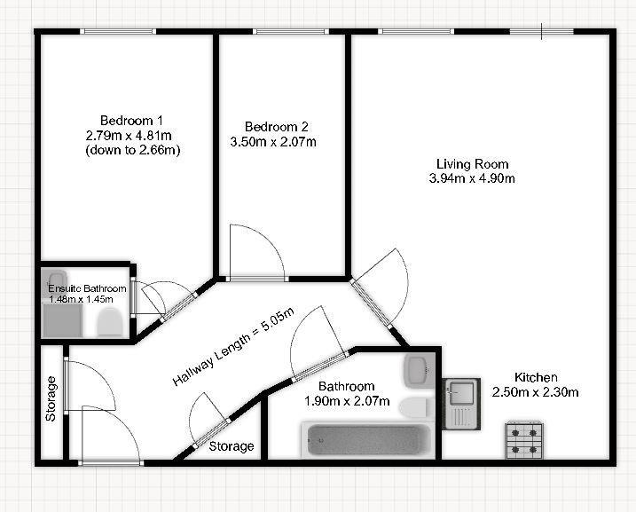
Discover modern living in this attractive 2-bedroom, 2-bathroom apartment located in the desirable Lysander Place development near the Royal Arsenal, SE28. With an inviting layout that includes an entrance hall, a light-filled reception room with a fitted kitchen, and two well-appointed bedrooms (including an en suite), this property offers comfort and convenience. The allocated off-street parking and security entry system enhance the appeal, making it a perfect home for families or savvy investors.
Step outside to find excellent transport links, with the Elizabeth Line just a short walk away, connecting you to Central London. This chain-free property is ready for immediate occupancy, backed by a reasonable service charge of £1,743.12 pa and affordable council tax. While the vibrant urban setting might present an above-average crime rate, the nearby landscaped community and acclaimed schools, including Heronsgate Primary, add to its family-friendly charm. With an attractive asking price of £310,000, this apartment presents an exceptional opportunity that won’t last long—vision your future here in a thriving cultural hub. Don’t miss out!
2 bedroom apartment for sale in Thamesmead West, SE28 0PD, SE28 — £315,000 • 2 bed • 2 bath • 624 ft²
2 bedroom apartment for sale in 5 Long Acre, Pettacre Close, Thamesmead West, SE28 0PA, SE28 — £305,000 • 2 bed • 2 bath • 710 ft²
2 bedroom apartment for sale in East Lodge, Pettacre Close, Thamesmead West, SE28 0PB, SE28 — £315,000 • 2 bed • 1 bath • 678 ft²
2 bedroom apartment for sale in Wilson Court, Allenby Road, SE28 0AL, SE28 — £305,000 • 2 bed • 1 bath • 614 ft²
2 bedroom apartment for sale in Erebus Drive, Thamesmead West, SE28 0GB, SE28 — £285,000 • 2 bed • 1 bath • 506 ft²
1 bedroom apartment for sale in Pettacre Close, Thamesmead West, SE28 0PB, SE28 — £260,000 • 1 bed • 1 bath • 667 ft²






















































