Move-in ready family house with garage and private garden near good schools.
- Detached three-bedroom family home on a generous plot
- Contemporary kitchen diner with integrated appliances
- Bright lounge with sliding doors into conservatory
- Private enclosed rear garden with patio and lawn
- Block-paved driveway plus detached garage for parking
- Move-in ready with neutral décor and quality finishes
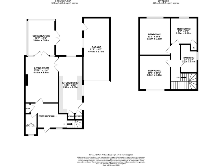
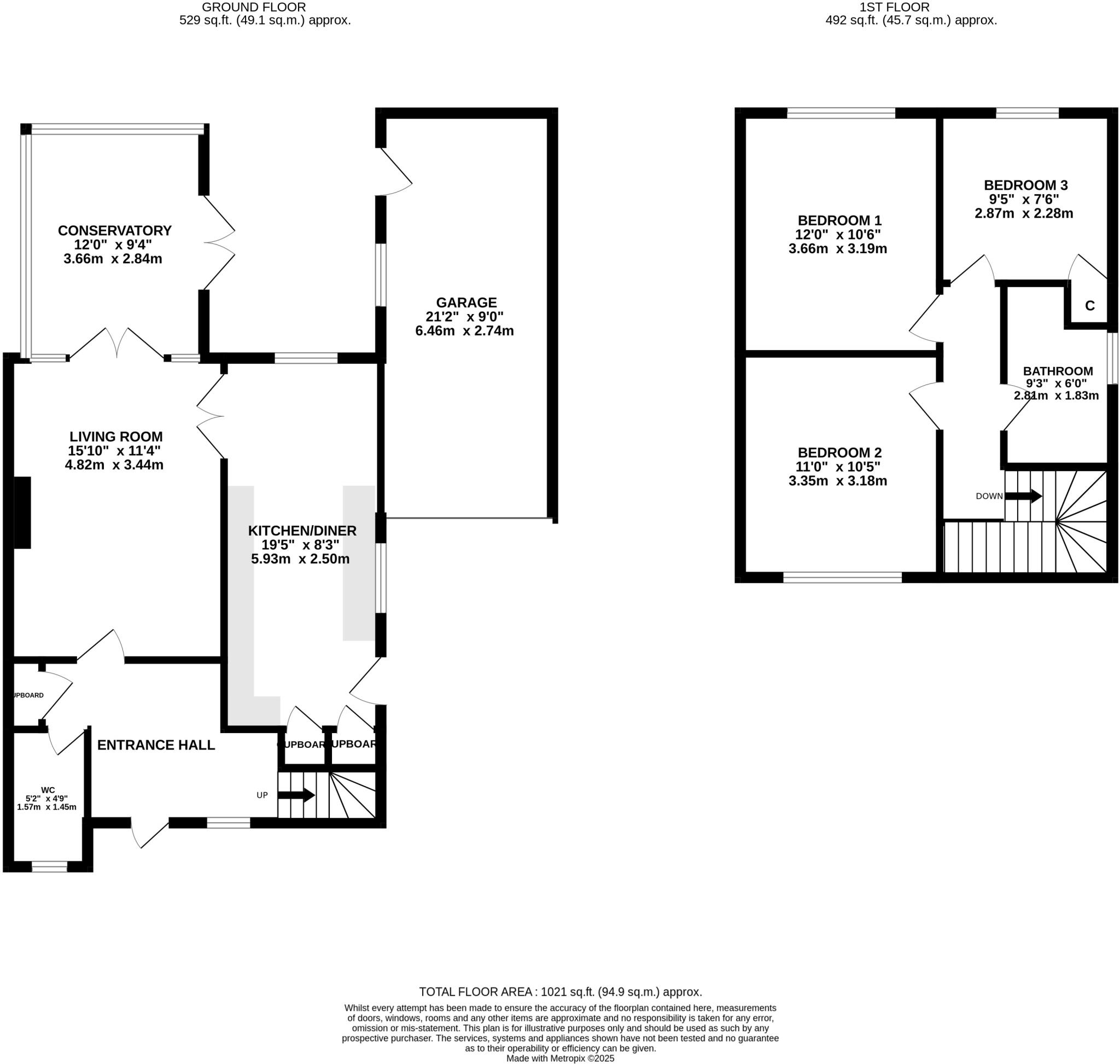
- Single family bathroom; one WC only on ground floor
- Local area records higher-than-average crime rate
This three-bedroom detached house on a generous plot offers a well-presented, move-in-ready family home close to local schools and green spaces. The contemporary kitchen diner and bright lounge flow through to a versatile conservatory, creating practical living and entertaining space for everyday family life.
Upstairs provides two double bedrooms and a generous single, with a stylish family bathroom. Neutral décor and quality finishes mean little immediate work is required, while the layout and plot give scope to personalise or extend subject to planning. The property is freehold and totals about 843 sq ft.
Outside, the private rear garden has a patio and lawn for children and outdoor dining. A block-paved driveway and detached garage offer useful off-street parking and storage. The home dates from the late 1960s–1970s and has double glazing, mains gas central heating, and a boiler with radiators.
Practical considerations: the area records a higher-than-average local crime rate, and the property has a single family bathroom and a moderate council tax band. The glazing installation date is unknown. Buyers seeking a well-appointed family home with flexible living space and outdoor privacy will find much to like here.
3 bedroom detached house for sale in Lawns Avenue, Leeds, LS12 — £290,000 • 3 bed • 1 bath • 807 ft²
3 bedroom detached house for sale in Cliffe Park Close, Leeds, LS12 — £299,950 • 3 bed • 1 bath • 1063 ft²
3 bedroom detached house for sale in Beechfield, Leeds, West Yorkshire, LS12 — £265,000 • 3 bed • 1 bath • 980 ft²
3 bedroom detached house for sale in Fieldway Rise, Leeds, West Yorkshire, LS13 — £300,000 • 3 bed • 1 bath • 861 ft²
3 bedroom semi-detached house for sale in Whitehall Road, Leeds, LS12 — £244,500 • 3 bed • 1 bath • 804 ft²
3 bedroom detached house for sale in Hazel Avenue, Leeds, West Yorkshire, LS14 — £299,999 • 3 bed • 2 bath • 940 ft²














































































