Chain-free renovation opportunity with large gardens and garage parking.
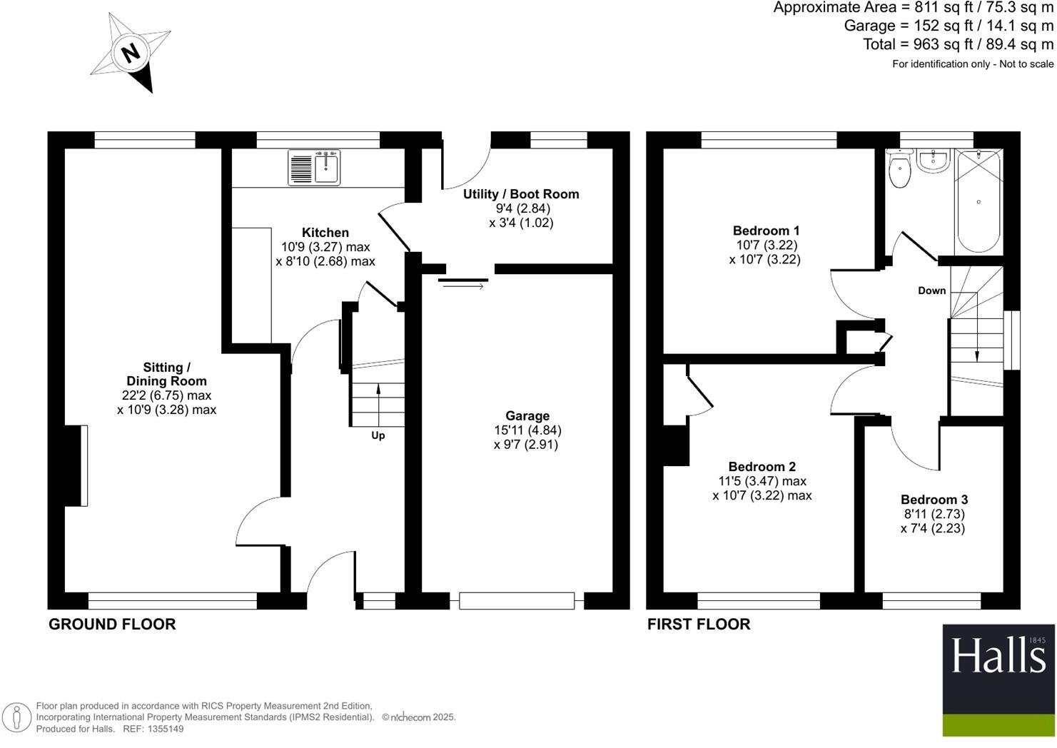
- Three bedrooms and one family bathroom, suitable for a small family
- Chain free sale, freehold tenure
- Generous south-westerly rear garden with mature trees
- Driveway parking and attached garage included
- Modest internal size (approx. 811 sq ft) for this plot
- Requires modernisation throughout and potential redecoration
- Heating/electrical details inconsistent; independent inspection advised
- No flood risk; very low local crime rate
This three-bedroom semi-detached house sits in popular Bayston Hill and is offered chain free — an attractive blank canvas for a family seeking to personalise a home. The plot is a real strength: driveway parking, an attached garage and generous front and rear gardens with a south-westerly aspect for afternoon and evening sun.
Internally the rooms are well proportioned but modest in overall floor area (approximately 811 sq ft). Ground floor rooms include a living room, separate dining room, kitchen and a practical utility/boot room; upstairs are three bedrooms and a single family bathroom. The property dates from the mid-20th century and retains period character but requires comprehensive modernisation to realise its potential.
Practical points to note: tenure is freehold and the sale is chain free, which simplifies a swift purchase. Services are understood to be connected and the council tax band is C. Heating and electrical details in the sales information are inconsistent, so buyers should budget for a full inspection and likely upgrade of heating and electrics.
This is a sensible choice for families or buyers looking to refurbish and add value: the location is convenient for local schools, shops and commuter routes into Shrewsbury and beyond. Expect renovation work to be needed to bring fittings and services up to current standards, but the generous garden and garage provide useful scope for extension or landscaping subject to consent.
2 bedroom semi-detached house for sale in 39 Lythwood Road, Bayston Hill, Shrewsbury, SY3 0LY, SY3 — £240,000 • 2 bed • 1 bath • 864 ft²
3 bedroom semi-detached house for sale in 12 Sussex Drive, Shrewsbury, SY3 7NG, SY3 — £275,000 • 3 bed • 2 bath • 1081 ft²
3 bedroom semi-detached house for sale in Lythwood Road, Bayston Hill, Shrewsbury, SY3 — £230,000 • 3 bed • 1 bath • 1162 ft²
3 bedroom semi-detached house for sale in 143 Sutton Road, Shrewsbury, SY2 6RA, SY2 — £275,000 • 3 bed • 1 bath • 1267 ft²
3 bedroom semi-detached house for sale in 8 Broad Oak Crescent, Bayston Hill, Shrewsbury, SY3 0ND, SY3 — £290,000 • 3 bed • 1 bath • 1100 ft²
3 bedroom semi-detached house for sale in Sundorne Avenue, Shrewsbury, SY1 — £200,000 • 3 bed • 2 bath • 867 ft²


























































