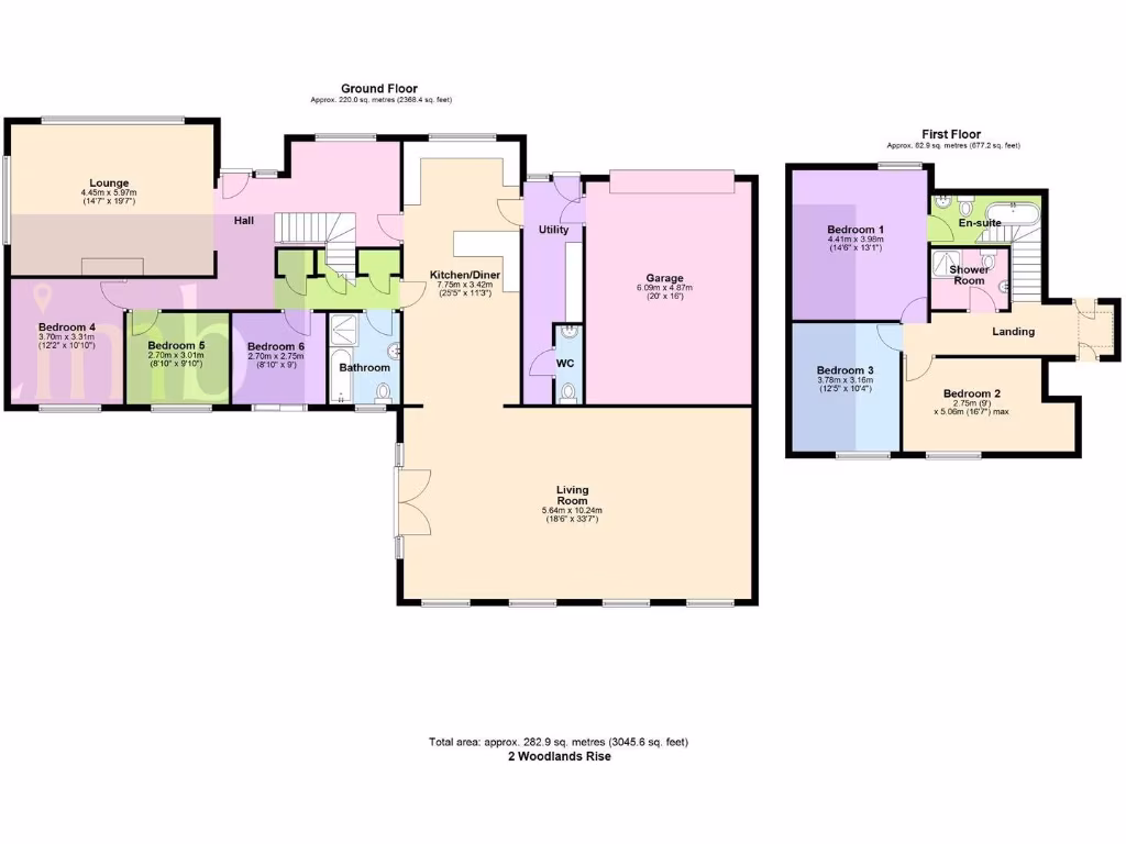
Large private plot with versatile layout and extension potential.
Approximately 2,700–2,850 sqft across multi-level accommodation
Set in an exclusive North Ferriby cul-de-sac, this substantial detached house sits on about a third of an acre of mature, mostly private gardens. The home delivers large, flexible living areas across ground and first floors, including a spectacular 33'7" x 18'5" living room, a generous dining kitchen, and an attached double garage with driveway parking.
Accommodation can be arranged as up to six bedrooms — three with vaulted ceilings upstairs and three ground-floor rooms currently used as reception spaces — giving genuine scope for family living or multi-generational arrangements. The plot, layout and location also present clear potential to extend or remodel, subject to the necessary planning consents.
Practical details: the property is freehold, built in the 1980s, heated by a mains gas boiler with radiators, and fitted with double glazing. Council Tax is in Band F and the EPC is D, so running costs should be considered. While the house appears well maintained, it offers scope for cosmetic updating and modernization to unlock full value.
This home will suit a growing family seeking space and garden privacy, or a buyer looking to enhance and extend a large plot in a highly regarded village setting. Interested purchasers should verify council tax and investigate any building or planning requirements before proceeding.
4 bedroom semi-detached house for sale in Ferriby High Road, North Ferriby, HU14 — £445,000 • 4 bed • 1 bath • 1197 ft²
4 bedroom detached house for sale in Ferriby High Road, North Ferriby, HU14 — £475,000 • 4 bed • 2 bath • 2021 ft²
3 bedroom semi-detached house for sale in Derwent Avenue, North Ferriby, HU14 — £315,000 • 3 bed • 1 bath • 1226 ft²
4 bedroom detached house for sale in Aston Hall Drive, North Ferriby, HU14 — £645,000 • 4 bed • 3 bath • 1130 ft²
3 bedroom semi-detached house for sale in Ferriby High Road, North Ferriby, HU14 — £370,000 • 3 bed • 1 bath • 1240 ft²
5 bedroom detached house for sale in The Paddock, North Ferriby, HU14 — £895,000 • 5 bed • 3 bath • 4564 ft²














































































































