Spacious Victorian family home with garage, garden room and roof terrace.
Outstanding sea views to Tynemouth and Longsands
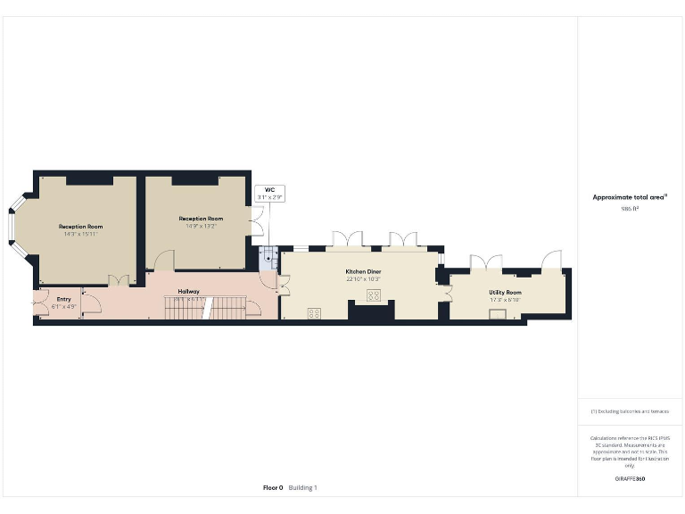
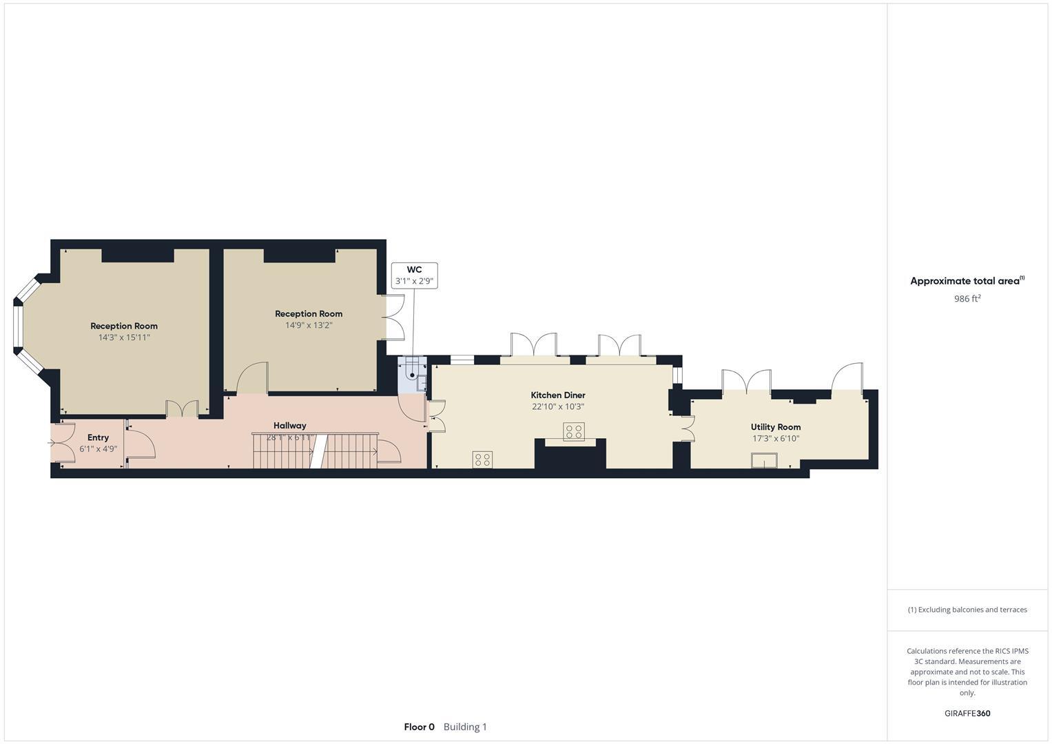
Set on a sought-after street in Cullercoats, this substantial six-bedroom Victorian mid-terrace delivers dramatic sea views and generous family accommodation across three floors. Period features — high ceilings, bay windows and stained glass — combine with a contemporary dining kitchen, utility and two reception rooms to create flexible living spaces for everyday family life and entertaining.
Practical outbuildings add real value: a detached garage with adjoining workshop plus a garden room sit beyond a west-facing courtyard and secluded rear garden. A roof terrace and several front- and rear-facing rooms take in the coast, making this house especially appealing to buyers who prize location and outlook. The footprint and room sizes (about 2,750 sq ft) suit multigenerational living or conversion to a rental/investment setup.
Buyers should note several material points before viewing. The property has an EPC rating of D and was constructed with solid brick walls that likely lack modern insulation — upgrades to thermal performance and heating efficiency are probable. The wider area records higher crime and deprivation indices and council tax is described as expensive; those factors affect running costs and should be weighed alongside the location benefits.
Overall this is a characterful, large family home in a coastal position with genuine upside from outbuildings and sea views, but it will reward buyers who are prepared to invest in energy improvements and to assess local-area considerations during inspection.
7 bedroom terraced house for sale in Beverley Terrace, Cullercoats, NE30 — £975,000 • 7 bed • 4 bath • 3171 ft²
5 bedroom terraced house for sale in Southcliff, Whitley Bay, NE26 — £725,000 • 5 bed • 3 bath • 1827 ft²
5 bedroom terraced house for sale in Windsor Crescent, Whitley Bay, NE26 — £645,000 • 5 bed • 2 bath • 1616 ft²
5 bedroom end of terrace house for sale in Beverley Terrace, North Shields, Tyne and Wear, NE30 — £550,000 • 5 bed • 3 bath
6 bedroom end of terrace house for sale in Windsor Crescent, Whitley Bay, NE26 — £895,000 • 6 bed • 2 bath • 2498 ft²
3 bedroom semi-detached house for sale in Foxton Avenue, North Shields, Tyne and Wear, NE30 — £415,000 • 3 bed • 1 bath


















































































































































































