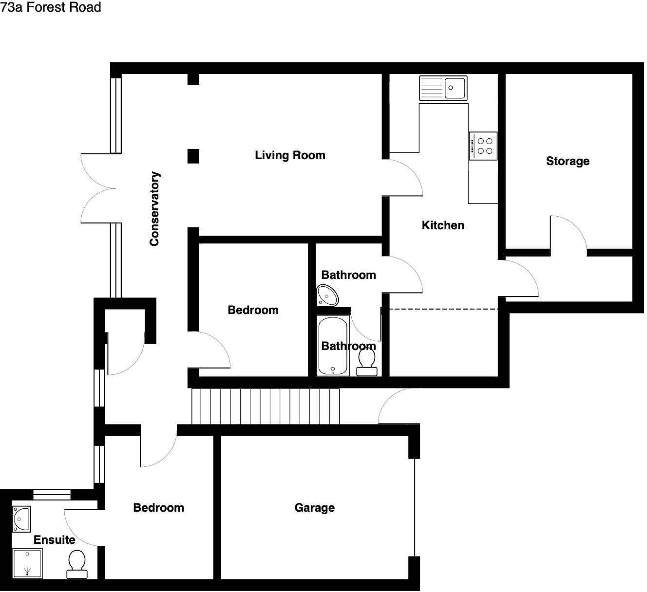
**Standout Features:**
- Prime West End location
- Spacious garden floor flat with private entrance
- Exclusive double-length garage
- Beautiful lounge with exposed stone wall
- Bright conservatory leading to a secluded garden
- Generous bedrooms with en suite in the master
- Modern dining kitchen with integrated appliances
- Move-in ready condition
**Property Summary:**
Discover this stunning two-bedroom garden flat in one of Aberdeen's most desirable West End neighborhoods. This newly renovated property maintains its classic charm with a striking exposed stone wall in the elegant lounge that effortlessly flows into a bright conservatory, creating a wonderful space for relaxation or entertaining. Step outside to find a beautifully secluded private garden, offering a peaceful retreat surrounded by lush greenery.
The modern layout features a fully fitted dining kitchen, ample storage, a spacious master bedroom with en suite shower room, and a second generous bedroom, ideal for families or professionals alike. With an exclusive double-length garage and secure entry into this period granite building, this home perfectly balances convenience and comfort.
Offered in move-in condition, this property is a rare find, and early viewing is highly recommended to experience all its exceptional features. Enjoy excellent connectivity to the city center and local amenities, making this the ideal choice for those seeking a vibrant yet tranquil lifestyle in the heart of the city. Don't miss out on this exclusive opportunity!
4 bedroom maisonette for sale in Burns Road, Aberdeen, AB15 — £340,000 • 4 bed • 3 bath • 1464 ft²
3 bedroom ground floor maisonette for sale in 70 Whitehall Road, Aberdeen AB25 2PR, AB25 — £270,000 • 3 bed • 2 bath • 1194 ft²
2 bedroom ground floor flat for sale in 107 Forest Avenue, Aberdeen, AB15 4TN, AB15 — £250,000 • 2 bed • 2 bath
2 bedroom flat for sale in Devonshire Road, Aberdeen, AB10 — £250,000 • 2 bed • 1 bath • 1076 ft²
3 bedroom apartment for sale in Flat 15, Royal Court, Queens Road, Aberdeen, AB15 4ZX, AB15 — £199,000 • 3 bed • 2 bath • 1141 ft²
3 bedroom ground floor flat for sale in 72 Broomhill Road, Aberdeen, AB10 6HU, AB10 — £200,000 • 3 bed • 1 bath • 1249 ft²










































































































