Chain-free family house near good primary school with garage and garden.
Guide price £375,000–£425,000
Three bedrooms and two bathrooms, ground-floor shower room
Large through lounge plus separate dining area
Low-maintenance rear garden with patio and astro turf
Detached garage and large brick shed/workshop to rear
Includes alarm system and Nest smart thermostat
Requires modernisation to some internal fixtures and décor
Area records above-average local crime — consider security needs
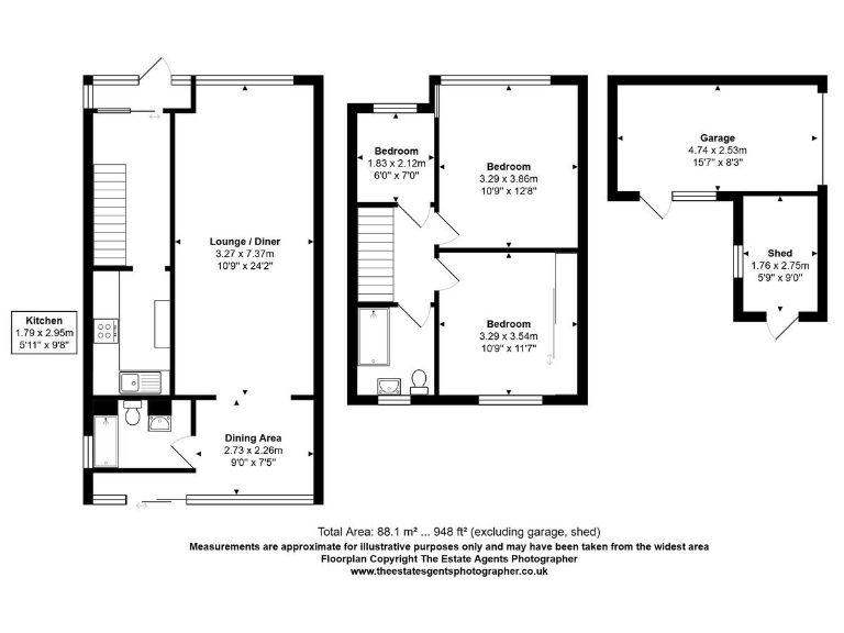
Guide price £375,000–£425,000. This three-bedroom end terrace delivers practical family living across two storeys, with a large through lounge, separate dining area and fitted kitchen. The plot includes a low-maintenance rear garden, detached garage and a brick workshop/shed — useful storage or a small home workshop.
The house is presented with two bathrooms (one on the ground floor) and built-in wardrobes to two double bedrooms, making mornings easier for a busy household. Modern conveniences such as an alarm and Nest smart thermostat are included, and the property is chain free for a quicker move. Aveley Primary School is a two-minute walk, and local shops and transport are nearby.
There is scope to add value by updating and modernising internal fixtures and external kerb appeal; the property shows typical mid-20th-century construction and will suit buyers willing to refresh elements to their taste. Note the area records above-average local crime and the home is offered as seen with some furniture and fixtures remaining.
2 bedroom terraced house for sale in Usk Road, Aveley, RM15 — £350,000 • 2 bed • 1 bath • 659 ft²
4 bedroom end of terrace house for sale in Usk Road, Aveley, South Ockendon, RM15 — £450,000 • 4 bed • 2 bath • 1271 ft²
3 bedroom semi-detached house for sale in Central Avenue, Aveley Essex, RM15 — £425,000 • 3 bed • 1 bath • 965 ft²
3 bedroom terraced house for sale in Grange Road, Aveley, RM15 — £425,000 • 3 bed • 1 bath • 977 ft²
4 bedroom semi-detached house for sale in Purfleet Road, South Ockendon, RM15 — £560,000 • 4 bed • 2 bath • 1164 ft²
3 bedroom terraced house for sale in Manor Close, Aveley, South Ockendon, RM15 — £375,000 • 3 bed • 1 bath • 737 ft²


































































































