**Standout Features:**
- Chain-free, newly renovated two-bedroom mid-terraced home
- Open-plan lounge/kitchen and two spacious reception rooms
- Brand-new bathroom and fresh carpets throughout
- Conveniently situated opposite a hospital
**Notable Concerns:**
- Located in an area with high crime rates
- Property has cavity walls with no insulation (assumed)
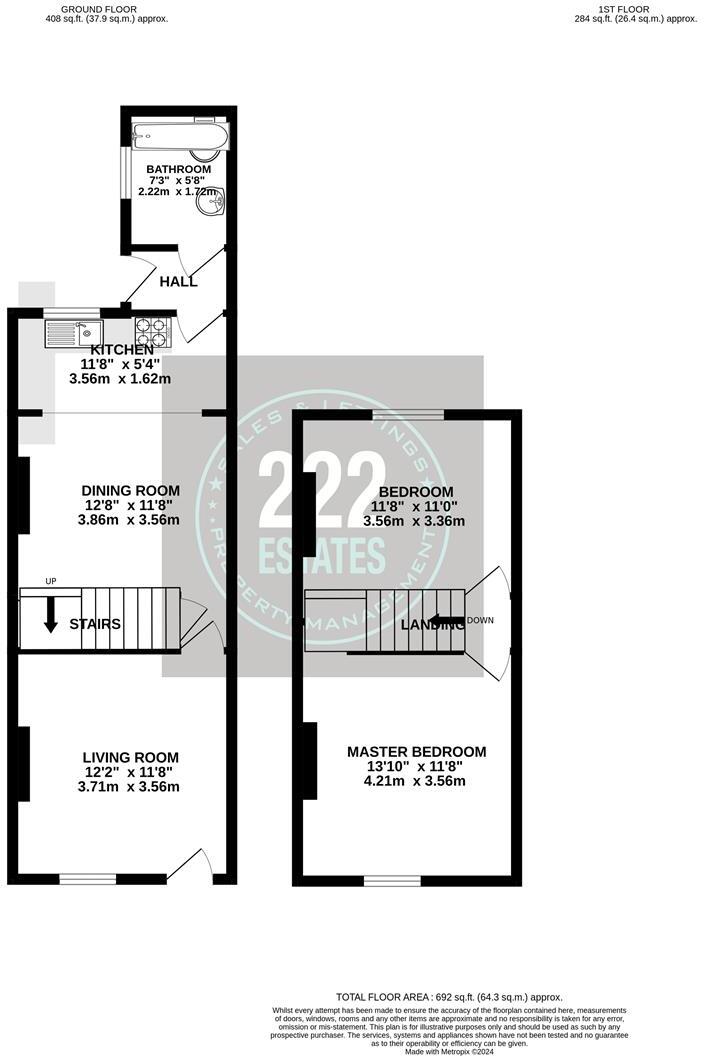
This newly renovated two-bedroom terraced home presents an excellent opportunity for first-time buyers or investors looking for a solid rental potential. With a fresh update that includes a brand-new bathroom and new carpeting, this property radiates comfort and style. The ground floor features an open-plan lounge and kitchen area, promoting a sociable environment perfect for entertaining. Upstairs, you'll find two generous double bedrooms that offer a peaceful retreat.
Located directly opposite a hospital, this home is not only ideal for those in the healthcare profession but also ensures easy access to medical facilities for families and individuals alike. Although situated in an area marked by higher crime rates, this property possesses significant appeal thanks to its modern renovations and practical layout. Don't miss out on this fantastic investment potential—schedule your viewing today to envision your future in this delightful space.
2 bedroom house for sale in Wellfield Street, Warrington, WA5 — £145,000 • 2 bed • 1 bath • 1193 ft²
2 bedroom terraced house for sale in Ford Street, Warrington, WA1 — £195,000 • 2 bed • 1 bath • 1026 ft²
2 bedroom terraced house for sale in Vale Avenue, Warrington, WA2 — £170,000 • 2 bed • 1 bath • 765 ft²
2 bedroom terraced house for sale in Fox Street, Warrington, WA5 , WA5 — £132,000 • 2 bed • 1 bath • 554 ft²
2 bedroom terraced house for sale in Amelia Street, Warrington, WA2 — £140,000 • 2 bed • 1 bath • 624 ft²
2 bedroom terraced house for sale in Leonard Street, Warrington, WA2 — £135,000 • 2 bed • 1 bath • 710 ft²






































