RM1 4DB - 4 bedroom detached house for sale in Oaklands Avenue, Romfo…

View on Property Piper

4 bedroom detached house for sale in Oaklands Avenue, Romford, RM1

Summary - 4 OAKLANDS AVENUE ROMFORD RM1 4DB

4 bed 2 bath Detached

**Standout Features:**
- Spacious four-bedroom detached family home
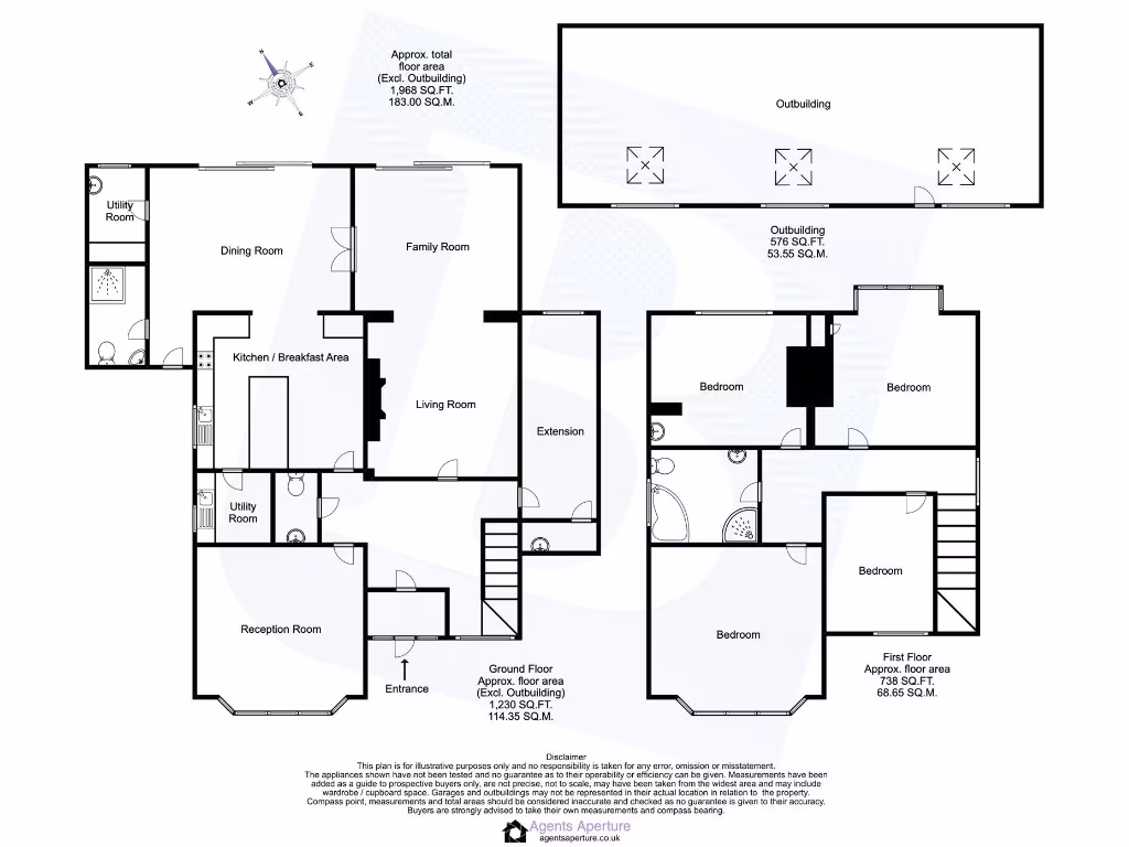
- Large plot size of 0.21 acres with a sizeable rear garden (119'x45') and outbuilding (41')
- Four reception rooms, providing ample living space for families
- Chain-free and freehold property
- Off-street parking for up to four vehicles
- Located in a sought-after affluent area with excellent mobile and broadband connections
- Close proximity to highly-rated schools

**Potential Concerns:**
- High council tax band (Band G)
- Very high local crime rate
- Solid brick walls without insulation (assumed)
- No specific views from the property

This charming 1930s detached home boasts an impressive footprint and unlimited renovation potential, making it a perfect choice for families looking to settle down in an affluent and multicultural suburbia. With four spacious bedrooms and multiple reception rooms, this residence encourages a comfortable lifestyle. Notably, the expansive rear garden and substantial outbuilding offer creative possibilities for future enhancements, subject to planning consents.

Enjoy the convenience of off-street parking and excellent local amenities, including schools rated 'Good' by Ofsted. However, be aware of higher council tax rates and the very high crime statistics in the area. This property presents an ideal opportunity for those wanting space and flexibility, so act quickly to seize a chance to create your dream family home in this desirable location.

Property Details

Brochure Descriptions

Image Descriptions

Floorplan Description

Rooms

Textual Property Features

Detected Visual Features

EPC Details

Nearby Schools

Nearest Bars And Restaurants

,,,,}

Nearest General Shops

,,}

Nearest Grocery shops

,,}

Nearest Supermarkets

,,}

Nearest Religious buildings

,,}

Nearest Medical buildings

,,,}

Nearest Airports

,}

Nearest Leisure Facilities

,,,,}

Nearest Tourist attractions

,,}

Nearest Train stations

,,,,}

Nearest Bus stations and stops

,,,,}

Nearest Hotels

,,}

Tags

Local Market Stats

AirBnB Data

Similar Properties

Meta

High Res Images

Compatible Images

Low res Images

Thumbnails

Raw Images

High Res Floorplan Images

Compatible Floorplan Images

Low res Floorplan Images

FloorplanImages Thumbnail

Raw Floorplan Images