Luxury finish and landscaped garden close to Eccleshall high street.
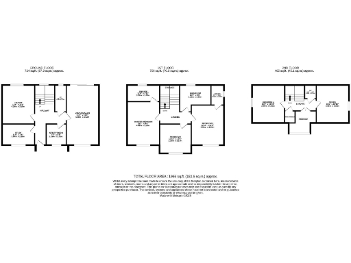
Four double bedrooms and four bathrooms across 1,966 sq ft
Set within a small exclusive development in Eccleshall, this newly built four-bedroom detached home combines generous living space with high-end finishes. Oak internal doors, glazed staircase details and polished tiled floors deliver a contemporary, durable interior ready for family life. The layout provides four double bedrooms and four bathrooms across approximately 1,966 sq ft, giving room for children, guests and home working.
Outside, the property sits on a large plot with a landscaped rear garden and off-street parking for two cars to the front. The location is convenient for village amenities — shops, pubs, restaurants and good primary schools are all within walking distance — while Stafford and the M6 are easily reached for longer commutes.
Buyers should note a couple of practical considerations: broadband speed in the area is reported as slow, and recorded local crime is above average. These are factual points to weigh alongside the home’s many positives. The developer offers some options to personalise finishes if reserved early, which will appeal if you want to customise floors and wall coverings prior to completion.
Built by an experienced local builder and sold freehold, this new home suits families seeking contemporary space in a thriving village setting, with the ability to tailor final interior choices and the convenience of nearby commuting links and local services.
5 bedroom detached house for sale in Saddler Grove, Eccleshall, ST21 6NY, ST21 — £520,000 • 5 bed • 4 bath • 1821 ft²
4 bedroom detached house for sale in Castle Meadows, Castle Street, ST21 — £400,000 • 4 bed • 2 bath • 1201 ft²
4 bedroom detached house for sale in Plot 2 Fair-Green Road, Baldwins Gate, Newcastle-under-Lyme, Staffordshire, ST5 — £750,000 • 4 bed • 1 bath • 2526 ft²
4 bedroom property for sale in Castle Meadows, Eccleshall, ST21 — £460,000 • 4 bed • 2 bath • 1354 ft²
4 bedroom detached house for sale in Off Stone Rd,
A34,
Stafford,
ST16 1GZ, ST16 — £399,995 • 4 bed • 1 bath • 1020 ft²
4 bedroom detached house for sale in Plot 176, Cornell, Olive Park, David Wilson Homes, Uttoxeter, ST14 — £450,000 • 4 bed • 2 bath










































































































































