Create a substantial contemporary family home close to local schools and rail links.
Freehold plot approx. 0.24 acres (994m2) with planning permission granted
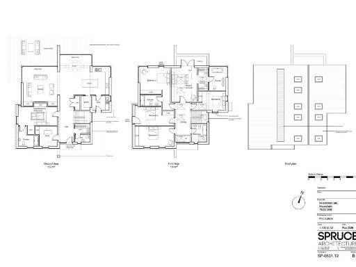
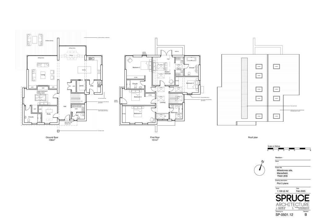
This is a rare freehold development plot (approx. 0.24 acres / 994m2) with planning permission granted for a contemporary detached house of about 3,300 sq ft. Proposed accommodation includes 5–6 bedrooms, four bath/shower rooms, generous living/kitchen space, study, and a detached double garage with a substantial driveway and parking area. The site sits between Maresfield and Uckfield, within walking distance of local village amenities and schools, with fast broadband and excellent mobile signal.
The plot offers clear build potential for a large family home with elevated rear outlook over mature trees and hedge boundaries. Designs show modern flat-roof architecture with large windows and landscaped gardens; planning consent reduces early risk for purchasers looking to progress quickly to construction. Access to A22, nearby rail services to London, and local schooling add practical value for commuting families.
Buyers should note this is a cleared building plot requiring full construction — all services, build costs, and planning conditions will be the buyer’s responsibility. Crime levels are described as average and the site is in an affluent, low-deprivation area. The sale price reflects the granted permission and plot size; any onward development will need contractor budgeting and compliance with the existing consent.
Land for sale in London Road, Maresfield, TN22 — £485,000 • 6 bed • 4 bath • 3300 ft²
5 bedroom detached house for sale in The Drive, Maresfield Park, Maresfield, Uckfield, TN22 — £1,390,000 • 5 bed • 3 bath • 2750 ft²
5 bedroom detached house for sale in Palehouse Common, Framfield, East Sussex, TN22 — £875,000 • 5 bed • 4 bath • 4628 ft²
5 bedroom detached house for sale in The Drive, Maresfield Park, Maresfield, Uckfield, TN22 — £495,000 • 5 bed • 3 bath • 2773 ft²
5 bedroom detached house for sale in The Drive, Maresfield Park, Maresfield, Uckfield, TN22 — £1,390,000 • 5 bed • 3 bath • 2773 ft²
Plot for sale in Snatts Road, Uckfield, East Sussex, TN22 — £2,500,000 • 1 bed • 1 bath










































