Move-in-ready terrace near Northwich station — ideal starter home or buy-to-let..
Newly renovated kitchen and bathroom throughout
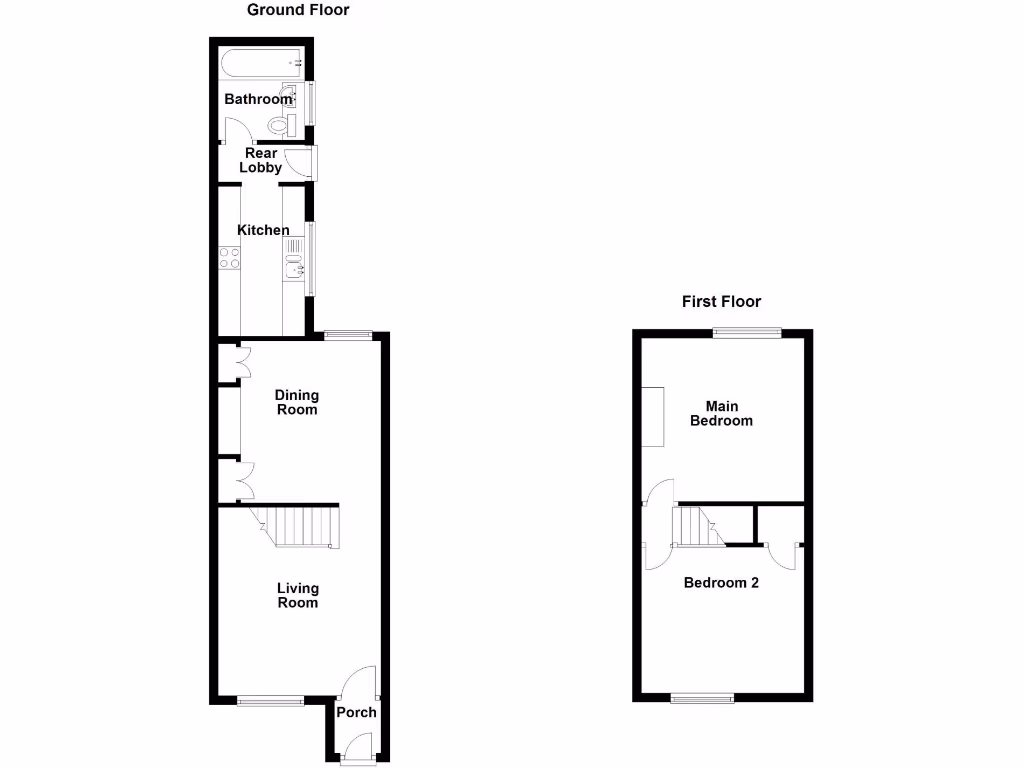
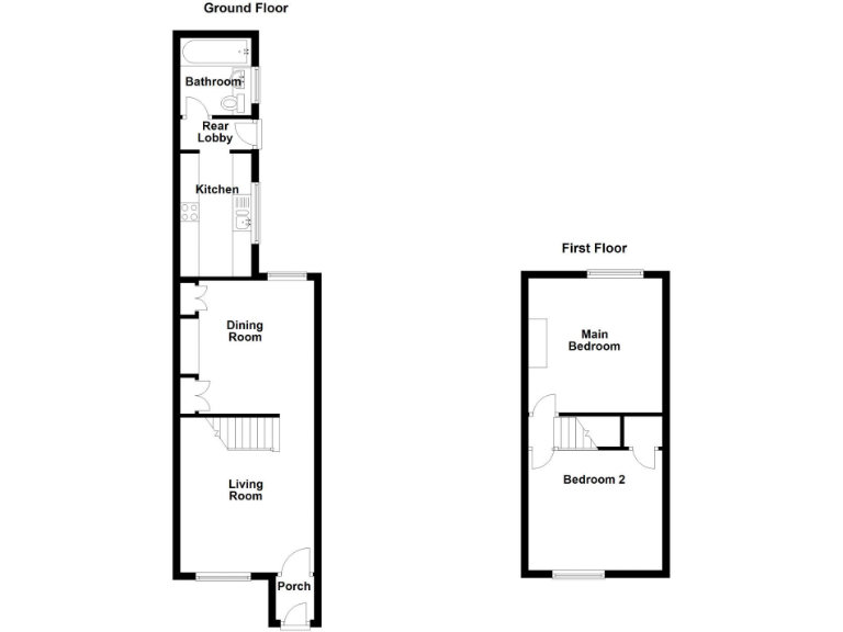
A newly refreshed two-bedroom mid-terrace in Northwich, ideal as a starter home or buy-to-let with an estimated 6.8% yield. The house has been updated with a new kitchen and bathroom, redecorated throughout and fitted with new floor coverings. Gas central heating and UPVc double glazing provide everyday comfort.
The ground floor offers a modern living room and a galley kitchen with built-in appliances, while two double bedrooms sit on the first floor. Outside there is an enclosed, south-facing, low-maintenance garden with artificial grass and a paved patio, and on-street parking at the front.
Important practical points: the property is leasehold (long lease from 1896) with a nominal ground rent of £2.14s.7d and very low council tax. The building is solid brick (original construction) with no known wall insulation and the double glazing installation date is not confirmed. The local area records above-average crime and is classified as a deprived neighbourhood, which buyers should weigh against the town-centre location and strong transport links.
This home suits first-time buyers seeking a move-in-ready city-edge property or investors after a straightforward rental with nearby rail links to Manchester and Chester. Viewing is recommended to assess internal condition, soundproofing and to form a view on the location's suitability for your needs.
2 bedroom terraced house for sale in Ash Street, Northwich, CW9 — £145,000 • 2 bed • 1 bath • 598 ft²
2 bedroom terraced house for sale in Boundary Street, Northwich, CW9 — £100,000 • 2 bed • 1 bath
2 bedroom terraced house for sale in Victoria Road, Northwich, CW9 — £145,000 • 2 bed • 1 bath • 1002 ft²
2 bedroom terraced house for sale in Queen Street, Northwich, CW9 — £150,000 • 2 bed • 1 bath • 1045 ft²
2 bedroom terraced house for sale in Navigation Road, Northwich, CW8 — £150,000 • 2 bed • 1 bath • 559 ft²
2 bedroom terraced house for sale in Solvay Road, Winnington, CW8 — £160,000 • 2 bed • 1 bath • 700 ft²


























































