Spacious three-bed family home with garden and garage near village amenities.
No upward chain — freehold tenure
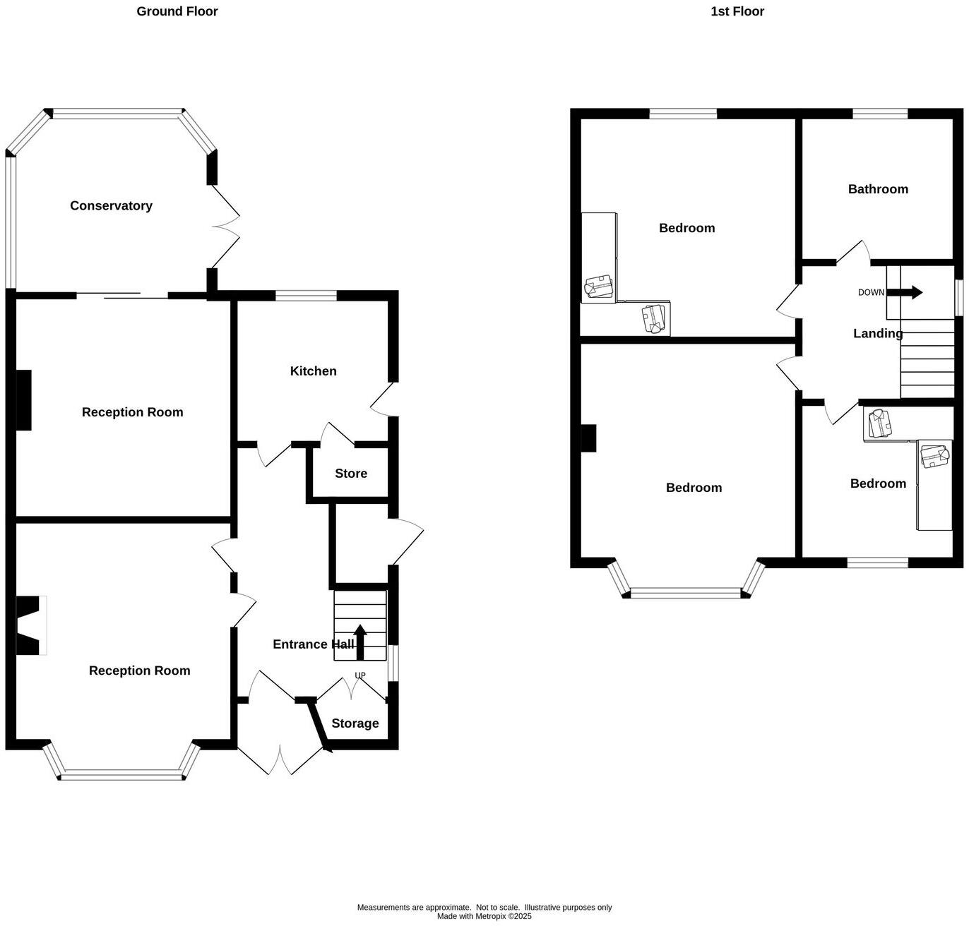
Set in the heart of Wollaston Village, this three-bedroom semi-detached home offers spacious family living and clear potential. The layout includes a welcoming entrance hall, separate living and dining rooms, and a bright conservatory that opens onto a well-proportioned rear garden — ideal for children and outdoor entertaining. Driveway parking and a long garage add practical storage and parking options.
The property is offered with no upward chain and is freehold, making it straightforward to progress. Two of the bedrooms have fitted wardrobes and the main bedroom is generous in size. Local amenities, good primary and secondary schools, and easy access to Stourbridge make this an appealing choice for families seeking community and convenience.
The house requires renovation and modernisation throughout: cosmetic updating, heating and energy-efficiency improvements, and potential internal reconfiguration are likely. The walls are cavity-built with no added insulation (assumed), and an official EPC is pending — buyers should budget for insulation and other improvements. The home has a single shower room on the first floor and a guest WC downstairs, which may not suit larger households without alteration.
This is a substantial post-war home (approx. 1,268 sq ft) on a decent plot, offering strong scope to personalise and add value. If you’re looking for a family home in a sought-after village with low crime, good connectivity and scope to modernise, this property is worth viewing.
3 bedroom semi-detached house for sale in Rugby Road, Wollaston, Stourbridge, DY8 4RJ, DY8 — £245,000 • 3 bed • 1 bath • 872 ft²
3 bedroom semi-detached house for sale in Bridgnorth Road, Wollaston, Stourbridge, DY8 — £259,500 • 3 bed • 1 bath • 708 ft²
3 bedroom semi-detached house for sale in Devon Road, Stourbridge, DY8 — £230,000 • 3 bed • 1 bath • 711 ft²
3 bedroom semi-detached house for sale in Kingsway, Wollaston, Stourbridge, DY8 4TG, DY8 — £260,000 • 3 bed • 1 bath • 809 ft²
3 bedroom semi-detached house for sale in WOLLASTON - High Street, DY8 — £390,000 • 3 bed • 1 bath • 980 ft²
3 bedroom semi-detached house for sale in Apley Road, Wollaston, Stourbridge, DY8 — £290,000 • 3 bed • 1 bath • 867 ft²


































































