Substantial plot, great parking and versatile living for growing families.
- Four bedrooms including main with en-suite shower room
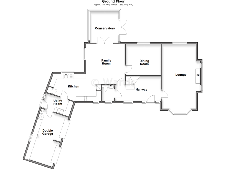
- Large lounge, separate dining room and conservatory
- Modern kitchen with integrated appliances plus utility room
- Sweeping driveway and double garage; very large plot
- Built 1983–1990; timber-frame walls assumed insulated (verify)
- Broadband speeds are slow; excellent mobile signal
- Council tax classed as expensive; area has some deprivation
- Local schools mixed Ofsted ratings; check school catchments
Set on a very large plot in Kingsborough Manor, this four-bedroom detached house offers generous family space and practical parking with a sweeping driveway and double garage. Ground floor living is flexible: a large lounge, separate dining room, family room and a rear conservatory all open onto well-established gardens. The modern kitchen with integrated appliances and a separate utility make everyday life straightforward, while the main bedroom benefits from an en-suite shower room.
Built in the 1980s with double glazing added after 2002 and gas central heating, the property is an average-sized, comfortable family home that will suit buyers seeking space and scope for personal updating. The timber-frame walls are assumed insulated but buyers should confirm construction details and any planning or building regulation consents if changes are intended.
Practical considerations: broadband speeds in the area are slow and council tax is described as expensive. The wider area classification indicates pockets of deprivation, and local primary school provision is mixed (one rated Good, another Requires Improvement). These factors are important for commuting, home working and family schooling decisions.
Overall this is a well-laid-out family house on a substantial plot, offering immediate liveability with straightforward further potential to modernise or personalise. Buyers wanting strong mobile signal, generous outdoor space and ample parking will find this property particularly appealing, but do verify technical details and local service levels before committing.
4 bedroom detached house for sale in Court Tree Drive, Eastchurch, Sheerness, Kent, ME12 — £413,000 • 4 bed • 2 bath • 1517 ft²
5 bedroom detached house for sale in Oak Tree Close, Eastchurch, Sheerness, Kent, ME12 — £825,000 • 5 bed • 4 bath • 3467 ft²
4 bedroom detached house for sale in Court Tree Drive, Eastchurch, Sheerness, Kent, ME12 — £500,000 • 4 bed • 2 bath • 1378 ft²
4 bedroom detached house for sale in Kingsborough Drive, Eastchurch, ME12 — £580,000 • 4 bed • 3 bath • 1606 ft²
4 bedroom detached house for sale in Elm Lane, Minster-On-Sea, Sheerness, Kent, ME12 — £500,000 • 4 bed • 1 bath • 1378 ft²
4 bedroom detached house for sale in Nelson Avenue, Minster On Sea, Sheerness, Kent, ME12 — £525,000 • 4 bed • 1 bath • 1637 ft²






































































