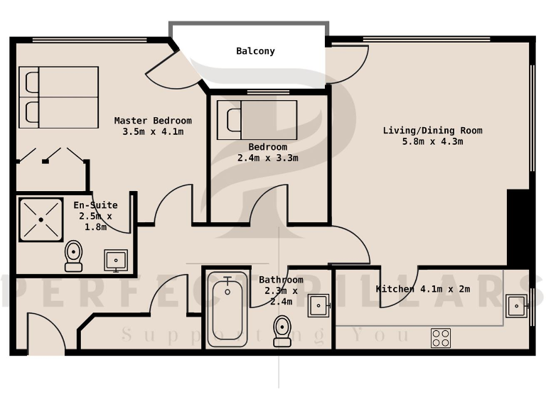
Sixth-floor flat with lift and private balcony overlooking the Thames
Spacious open-plan living/dining room with excellent natural light
Two double bedrooms; principal bedroom with en-suite shower
Modern separate kitchen and family bathroom included
Leasehold tenure — check remaining term and service charges
Above-average council tax; average-size (≈775 sq ft) for two-bed flats
Very low flood risk; mobile signal excellent and broadband fast
Average local crime; located in a very affluent inner-city area
A sixth-floor riverside apartment in Woolcombes Court that puts direct Thames views at the heart of daily life. The open-plan living and dining room is bright and generous, with a private balcony for fresh-air mornings and relaxed evenings. Both double bedrooms continue the water vistas; the principal bedroom includes an en-suite while a modern family bathroom serves the second bedroom.
Positioned for commuters, the flat benefits from lift access and excellent transport links to Canary Wharf and the City. The building sits in a very affluent, inner-city area with fast broadband and strong mobile signal, and local schools include several highly rated primaries and a good secondary option.
Practical points to note: the property is leasehold and council tax is above average. The apartment is an average size for a two-bedroom city flat (approximately 775 sq ft), so buyers looking for larger family accommodation should consider this. Crime levels are average for the area and flood risk is very low.
This home suits buyers seeking a comfortable, low-maintenance riverside base — ideal for city commuters, professional couples, or investors after a well-located rental asset. The clean, neutral interiors offer straightforward potential to personalise without major works.



























































