Eco-first single-storey living in private gated setting near Ascot.
Over 2,250 sq ft single-storey detached bungalow
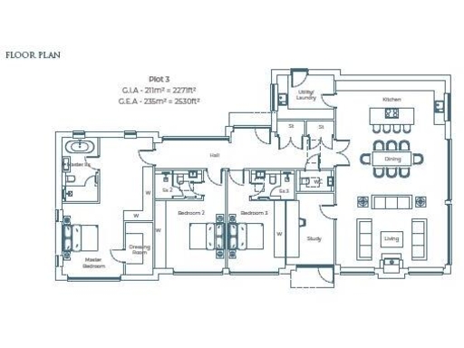
House 3 at The Walled Garden is a rare, single-storey detached home of over 2,250 sq ft, finished to a high eco-specification. The layout centres on a large, glass-fronted super room combining kitchen, dining and living spaces, with a principal suite and two further double bedrooms, each with en-suite facilities. Built in 2024, the property includes underfloor heating driven by an air source heat pump, solar PV with battery storage, MVHR and an EV charging point.
Occupying a substantial, private plot within a gated courtyard formed by an 18th‑century walled kitchen garden, the home benefits from allocated off-street parking for two cars plus visitor spaces. The design suits someone seeking level-living in a prestigious Ascot location close to Windsor Great Park, good schools and local amenities, with easy access to Heathrow and central London.
Buyers should note important factual points: this is the final unit in a four-house development and images include CGI/show-home photography; the rear lawn shown has been digitally enhanced and landscaping may be unfinished on completion. Broadband speeds are average locally, council tax band is not yet confirmed and crime levels are described as average. The property is freehold and offered as a new build with warranties as usual for recently constructed homes.
3 bedroom semi-detached bungalow for sale in Archbury Walk, Ascot, SL5 — £1,500,000 • 3 bed • 3 bath • 1790 ft²
3 bedroom detached house for sale in Kings Ride,
Ascot,
Berkshire,
SL5 7GB
, SL5 — £975,000 • 3 bed • 1 bath • 1255 ft²
3 bedroom terraced house for sale in Winkfield Manor, Forest Road, Ascot, Berkshire, SL5 — £825,000 • 3 bed • 2 bath • 1504 ft²
2 bedroom bungalow for sale in Linnet Drive, Ascot, Berkshire, SL5 — £1,095,000 • 2 bed • 2 bath • 1045 ft²
3 bedroom terraced house for sale in Winkfield Manor, Forest Road, Winkfield Row, Ascot SL5 — £825,000 • 3 bed • 2 bath • 1504 ft²
5 bedroom detached house for sale in Moat Farm Close, Winkfield, SL4 — £2,100,000 • 5 bed • 4 bath • 2890 ft²














































































































