**Standout Features:**
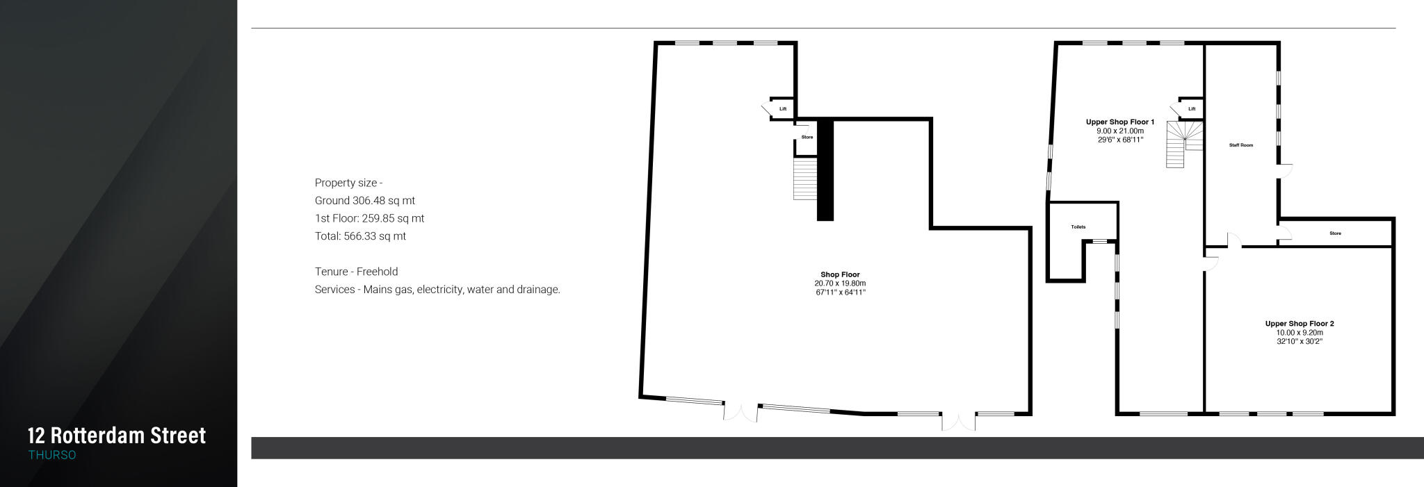
- Large commercial property: 6,092 sq. ft.
- Charming Victorian stone façade and high ceilings.
- Prime location in Thurso with excellent foot traffic.
- Ideal for varied uses: retail, gym, or restaurant.
- Freehold tenure, chain-free.
- Mains gas, electricity, water, and drainage services available.
- Full 4G mobile coverage; average broadband speeds.
**Summary Description:**
Discover this expansive commercial unit located in the bustling heart of Thurso, offering a unique blend of Victorian charm and substantial space with a total area of 6,092 sq. ft. With its striking stone facade and high ceilings, this property exudes character and invites numerous possibilities for renovation or repurposing. The ground floor features an open plan layout, while the returning staircase leads to additional first-floor space, perfect for a variety of commercial ventures like retail, a restaurant, or a gym.
Although the area may show signs of need for revitalization, the exceptional foot traffic and local amenities—including supermarkets, healthcare facilities, and leisure options—provide a solid foundation for profitable business operations. This freehold property is ready for an investor or entrepreneur to transform it into a thriving local hub. Don’t miss this opportunity to invest in a versatile space with immense potential in a community with growing demand. Act now to secure this unique investment!
High street retail property for sale in Wilson Street, Thurso, Highland. KW14 8AQ, KW14 — £130,000 • 1 bed • 1 bath
High street retail property for sale in Cards 'N' Things Gift Shop , 4 Sir Johns Square, Highland, KW14 — £225,000 • 1 bed • 1 bath • 2819 ft²
High street retail property for sale in Newsbeat Newsagents, 32 Princes Street, Highland, KW14 — £220,000 • 1 bed • 1 bath • 1421 ft²
Commercial property for sale in Harpers Fly Fishing Services, 57 High Street, Thurso, KW14 8AZ, KW14 — £175,000 • 1 bed • 1 bath • 3143 ft²
3 bedroom flat for sale in Bews Butchers Shop & Owners Accommodation, KW14 — £350,000 • 3 bed • 1 bath
Light industrial facility for sale in W&D Ross Hardware Store and Paint Spectrum, Thurso, Thurso, Highland, KW14 — £587,000 • 1 bed • 1 bath


























































